Property
Account |
| Property ID: | 14859 | Abbreviated Legal Description: | S31 T25 R2W TAX 82 |
| Parcel # / Geo ID: | 502313052 | Agent Code: | |
| Type: | Real | | |
| Tax Area: | 0441 - 1-46F4E4H2C1L1P2 | Land Use Code | 18 |
| Open Space: | N | DFL | N |
| Historic Property: | N | Remodel Property: | N |
| Multi-Family Redevelopment: | N | | |
| Township: | 25N | Section: | 31 |
| Range: | 2W |
Location |
| Address: | 148 FOREST DR BRINNON, WA 98320 | Mapsco: | 048/025 |
| Neighborhood: | S31 & S32 T25N R2W AKER, DUPUIS,MTC, & RUSS SHORT PLATS | Map ID: | |
| Neighborhood CD: | 1290 |
Owner |
| Name: | LORI & RON KREITZER | Owner ID: | 109932 |
| Mailing Address: | 365 WITHERBEE RD KELSO, WA 98626-9604 | % Ownership: | 100.0000000000% |
| | | Exemptions: | |
Pay Tax Due
There is currently No Amount Due on this property.
Taxes and Assessment Details
Property Tax Information as of
10/23/2025
Click on "Statement Details" to expand or collapse a tax statement.
* Please enter a valid date ** Please enter a valid date *
Statement Details |
| | TOTAL: | $0.00 | $0.00 | $0.00 | $0.00 | $0.00 | $0.00 |
|
| | $0.00 | $0.00 | $0.00 | $0.00 | $0.00 | $0.00 |
Values
| (+) Improvement Homesite Value: | + | $0 | |
| (+) Improvement Non-Homesite Value: | + | $83,571 | |
| (+) Land Homesite Value: | + | $0 | |
| (+) Land Non-Homesite Value: | + | $216,246 | |
| (+) Curr Use (HS): | + | $0 | $0 |
| (+) Curr Use (NHS): | + | $0 | $0 |
| | | -------------------------- | |
| (=) Market Value: | = | $299,817 | |
| (–) Productivity Loss: | – | $0 | |
| | | -------------------------- | |
| (=) Subtotal: | = | $299,817 | |
| (+) Senior Appraised Value: | + | $0 | |
| (+) Non-Senior Appraised Value: | + | $299,817 | |
| | | -------------------------- | |
| (=) Total Appraised Value: | = | $299,817 | |
| (–) Senior Exemption Loss: | – | $0 | |
| (–) Exemption Loss: | – | $0 | |
| | | -------------------------- | |
| (=) Taxable Value: | = | $299,817 | |
Taxing Jurisdiction
| Owner: | LORI & RON KREITZER | | |
| % Ownership: | 100.0000000000% | | |
| Total Value: | N/A | | |
| Tax Area: | 0441 - 1-46F4E4H2C1L1P2 |
| CE | COUNTY CURRENT EXPENSE | N/A | N/A | N/A | N/A | | |
| CNTYDD | DEVELOPMENTAL DISABILITIES | N/A | N/A | N/A | N/A | | |
| CNTYVET | VETERANS RELIEF | N/A | N/A | N/A | N/A | | |
| MENTAL | MENTAL HEALTH | N/A | N/A | N/A | N/A | | |
| ROADS | COUNTY ROADS | N/A | N/A | N/A | N/A | | |
| ROADSCU | COUNTY ROADS TO CUR EXP | N/A | N/A | N/A | N/A | | |
| HOSP2CASH | HOSP DIST #2 GENERAL | N/A | N/A | N/A | N/A | | |
| SCH46MO | SCHOOL DIST #46 EP & O | N/A | N/A | N/A | N/A | | |
| CEM1 | CEMETERY DIST #1 GENERAL | N/A | N/A | N/A | N/A | | |
| CONSERVE | CONSERVATION FUTURES | N/A | N/A | N/A | N/A | | |
| EMS4 | FIRE DIST #4 EMS | N/A | N/A | N/A | N/A | | |
| FD4 | FIRE DIST #4 GENERAL | N/A | N/A | N/A | N/A | | |
| FD4BOND | FIRE DIST #4 BOND 2019 | N/A | N/A | N/A | N/A | | |
| LIB1 | LIBRARY DIST #1 GENERAL | N/A | N/A | N/A | N/A | | |
| PORTPT | PORT OF PT GENERAL | N/A | N/A | N/A | N/A | | |
| PORTPTIDD | PORT OF PT IDD 2019 | N/A | N/A | N/A | N/A | | |
| PUD1 | PUD #1 GENERAL | N/A | N/A | N/A | N/A | | |
| STATE | STATE SCHOOL PART 1 | N/A | N/A | N/A | N/A | | |
| STATE2 | STATE SCHOOL PART 2 | N/A | N/A | N/A | N/A | | |
| | Total Tax Rate: | N/A | | | | | |
| | | | | Taxes w/Current Exemptions: | N/A | | |
| | | | | Taxes w/o Exemptions: | N/A | | |
Improvement / Building
| Improvement #1: | Residential Bldg | State Code: | 18 | 0.0 sqft | Value: | $67,471 |
| Improvement #2: | Residential Bldg | State Code: | 11 | 1536.0 sqft | Value: | $16,100 |
| Bathrooms (#): | 1 (FULL) | Bedrooms (#): | 1 | | Exterior Wall: | PL/T1 | Floor Construction: | FRAME | | Foundation: | CONPR | Heating/Cooling: | HPUMP | | Interior Finish: | FIN | Roof Cover: | COMP |
|
| | Type | Description | Class CD | Sub Class CD | Year Built | Area |
| | MA | Main Area | 4 | 1S | 2025 | 768.0 |
| | MA2 | Second Floor Main Area | 4 | 2S | 2025 | 768.0 |
| | HDECK | House Deck | 4 | 2S | 2025 | 256.0 |
| | HBAL | House Balcony | 4 | 2S | 2025 | 256.0 |
Sketch
Property Image
Land
| 1 | 1290-1545A | River Frtg or Good HC View Less than 6 Acres | 0.6700 | 29185.20 | 0.00 | 0.00 | 0.00 | $9,246 | $0 |
| 2 | 1290-1325S | Hood Canal Frtg Sites w/Comm Wtr/Drainfield | 1.0000 | 43560.00 | 0.00 | 0.00 | 1.00 | $207,000 | $0 |
Roll Value History
| 2025 | N/A | N/A | N/A | N/A | N/A |
| 2024 | $63,483 | $197,442 | $0 | $260,925 | $260,925 |
| 2023 | $34,269 | $183,040 | $0 | $217,309 | $217,309 |
| 2022 | $31,154 | $176,700 | $0 | $207,854 | $207,854 |
| 2021 | $25,747 | $167,675 | $0 | $193,422 | $193,422 |
Deed and Sales History
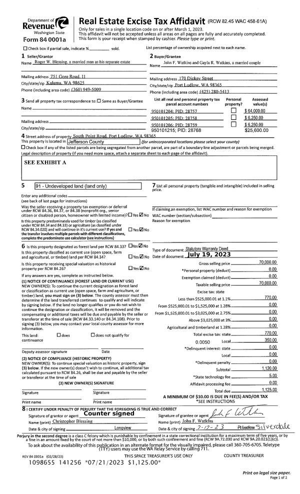
| 1 | 10/23/2023 | SWD | Statutory Warranty Deed | DAVID KRAFT | LORI & RON KREITZER | | | $300,000.00 | 141781 | |
| 2 | 07/31/2006 | SWD | Statutory Warranty Deed | EGAN, GRANVILLE PAUL BRIA | KRAFT, DAVID/MICHELLE | 0 | 0 | $145,000.00 | 107230 | 0 |
Payout Agreement
| No payout information available.. |