Property
Account |
| Property ID: | 15350 | Abbreviated Legal Description: | POINT WHITNEY TRACTS TRACT 8(ENLG BY TAX 34) |
| Parcel # / Geo ID: | 601075008 | Agent Code: | |
| Type: | Real | | |
| Tax Area: | 0441 - 1-46F4E4H2C1L1P2 | Land Use Code | 11 |
| Open Space: | N | DFL | N |
| Historic Property: | N | Remodel Property: | N |
| Multi-Family Redevelopment: | N | | |
| Township: | 26N | Section: | 7 |
| Range: | 1W |
Location |
| Address: | 535 CANYON CREEK RD BRINNON, WA 98320 | Mapsco: | 066/031 |
| Neighborhood: | S6,7,18,& 19 T26N R1W (PULALI PT) & CORN/CONNOLLY/STRAMPE SP | Map ID: | |
| Neighborhood CD: | 1330 |
Owner |
| Name: | DAVID G & RITA L NIELSEN | Owner ID: | 23540 |
| Mailing Address: | 1201 HANCOCK ST APT 224 PORT TOWNSEND, WA 98368-8515 | % Ownership: | 100.0000000000% |
| | | Exemptions: | |
Pay Tax Due
There is currently No Amount Due on this property.
Taxes and Assessment Details
Property Tax Information as of
10/23/2025
Click on "Statement Details" to expand or collapse a tax statement.
* Please enter a valid date ** Please enter a valid date *
Statement Details |
| | TOTAL: | $0.00 | $0.00 | $0.00 | $0.00 | $0.00 | $0.00 |
|
| | $0.00 | $0.00 | $0.00 | $0.00 | $0.00 | $0.00 |
Values
| (+) Improvement Homesite Value: | + | $0 | |
| (+) Improvement Non-Homesite Value: | + | $694,416 | |
| (+) Land Homesite Value: | + | $0 | |
| (+) Land Non-Homesite Value: | + | $179,596 | |
| (+) Curr Use (HS): | + | $0 | $0 |
| (+) Curr Use (NHS): | + | $0 | $0 |
| | | -------------------------- | |
| (=) Market Value: | = | $874,012 | |
| (–) Productivity Loss: | – | $0 | |
| | | -------------------------- | |
| (=) Subtotal: | = | $874,012 | |
| (+) Senior Appraised Value: | + | $0 | |
| (+) Non-Senior Appraised Value: | + | $874,012 | |
| | | -------------------------- | |
| (=) Total Appraised Value: | = | $874,012 | |
| (–) Senior Exemption Loss: | – | $0 | |
| (–) Exemption Loss: | – | $0 | |
| | | -------------------------- | |
| (=) Taxable Value: | = | $874,012 | |
Taxing Jurisdiction
| Owner: | DAVID G & RITA L NIELSEN | | |
| % Ownership: | 100.0000000000% | | |
| Total Value: | N/A | | |
| Tax Area: | 0441 - 1-46F4E4H2C1L1P2 |
| CE | COUNTY CURRENT EXPENSE | N/A | N/A | N/A | N/A | | |
| CNTYDD | DEVELOPMENTAL DISABILITIES | N/A | N/A | N/A | N/A | | |
| CNTYVET | VETERANS RELIEF | N/A | N/A | N/A | N/A | | |
| MENTAL | MENTAL HEALTH | N/A | N/A | N/A | N/A | | |
| ROADS | COUNTY ROADS | N/A | N/A | N/A | N/A | | |
| ROADSCU | COUNTY ROADS TO CUR EXP | N/A | N/A | N/A | N/A | | |
| HOSP2CASH | HOSP DIST #2 GENERAL | N/A | N/A | N/A | N/A | | |
| SCH46MO | SCHOOL DIST #46 EP & O | N/A | N/A | N/A | N/A | | |
| CEM1 | CEMETERY DIST #1 GENERAL | N/A | N/A | N/A | N/A | | |
| CONSERVE | CONSERVATION FUTURES | N/A | N/A | N/A | N/A | | |
| EMS4 | FIRE DIST #4 EMS | N/A | N/A | N/A | N/A | | |
| FD4 | FIRE DIST #4 GENERAL | N/A | N/A | N/A | N/A | | |
| FD4BOND | FIRE DIST #4 BOND 2019 | N/A | N/A | N/A | N/A | | |
| LIB1 | LIBRARY DIST #1 GENERAL | N/A | N/A | N/A | N/A | | |
| PORTPT | PORT OF PT GENERAL | N/A | N/A | N/A | N/A | | |
| PORTPTIDD | PORT OF PT IDD 2019 | N/A | N/A | N/A | N/A | | |
| PUD1 | PUD #1 GENERAL | N/A | N/A | N/A | N/A | | |
| STATE | STATE SCHOOL PART 1 | N/A | N/A | N/A | N/A | | |
| STATE2 | STATE SCHOOL PART 2 | N/A | N/A | N/A | N/A | | |
| | Total Tax Rate: | N/A | | | | | |
| | | | | Taxes w/Current Exemptions: | N/A | | |
| | | | | Taxes w/o Exemptions: | N/A | | |
Improvement / Building
| Improvement #1: | Residential Bldg | State Code: | 11 | 2348.0 sqft | Value: | $694,416 |
| Bathrooms (#): | 2 (FULL) | Bathrooms (#): | 1 (HALF) | | Bedrooms (#): | 2 | Exterior Wall: | SI/ST | | Fireplace: | WD ST-GOOD | Floor Construction: | FRAME | | Foundation: | CONPR | Heating/Cooling: | HTWTR | | Inside Verify: | YES-FIX | Roof Cover: | METAL |
|
| | Type | Description | Class CD | Sub Class CD | Year Built | Area |
| | MA | Main Area | 4+ | 1S | 2002 | 2348.0 |
| | HCPOR | House Concrete Porch | 4 | * | 2002 | 50.0 |
| | HDECK | House Deck | 4 | * | 2002 | 196.0 |
| | GATT | House Attached Garage | 4 | 1S | 2002 | 580.0 |
| | OTHER | Other | * | * | 2002 | 0.0 |
| | BSMTF | House basement finished | 3 | * | 2002 | 1885.0 |
| | GARAG | Garage (Table Not Dep) | 4 | * | 2002 | 1064.0 |
Sketch
| No sketches available for this property. |
Property Image
Land
| 1 | 1673A | Terr/Mtn/No View 6-15 Acres | 6.0200 | 262231.20 | 0.00 | 0.00 | 0.00 | $58,846 | $0 |
| 2 | 1330-1345S | Wtrfrt/Lagoon Frontage 1+/- Acre | 1.0000 | 43560.00 | 0.00 | 0.00 | 1.00 | $120,750 | $0 |
Roll Value History
| 2025 | N/A | N/A | N/A | N/A | N/A |
| 2024 | $664,224 | $171,787 | $0 | $836,011 | $836,011 |
| 2023 | $664,224 | $155,568 | $0 | $819,792 | $819,792 |
| 2022 | $603,840 | $134,130 | $0 | $737,970 | $737,970 |
| 2021 | $499,041 | $116,699 | $0 | $615,740 | $615,740 |
Deed and Sales History
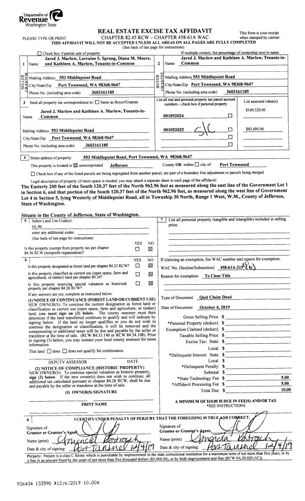
| 1 | 06/09/2005 | QCD | Quit Claim Deed | NIELSEN, DAVID GREER/RITA | NIELSEN, DAVID GREER/RITA L | | | $0.00 | 103805 | 0 |
| 2 | 04/26/1994 | SWD | Statutory Warranty Deed | LORENZEN, MARVIN V/ADELAI | NIELSEN, DAVID GREER | 0 | 0 | $87,000.00 | 74056 | 0 |
| 3 | 04/13/1994 | BLA | Boundary Line Adjustment | LORENZEN, MARVIN/GARDINER | LORENZEN, MARVIN/GARDINER, L K | 0 | 0 | $0.00 | 73936 | 0 |
Payout Agreement
| No payout information available.. |