Property
Account |
| Property ID: | 15420 | Abbreviated Legal Description: | S11 T26 R1W NW NW (LS SW NW NW) LYING BTWN OLD COYLE & NEW COYLE RDS |
| Parcel # / Geo ID: | 601112007 | Agent Code: | |
| Type: | Real | | |
| Tax Area: | 0323 - 1-48F2E2P1H2C2L1 | Land Use Code | 18 |
| Open Space: | N | DFL | N |
| Historic Property: | N | Remodel Property: | N |
| Multi-Family Redevelopment: | N | | |
| Township: | 26N | Section: | 11 |
| Range: | 1W |
Location |
| Address: | 127 OLD COYLE RD QUILCENE, WA 98376 | Mapsco: | 119/048 |
| Neighborhood: | S1, S2, & S11 T26N R1W | Map ID: | |
| Neighborhood CD: | 2220 |
Owner |
| Name: | STUART BEZANSON | Owner ID: | 109347 |
| Mailing Address: | LEW & KAREN BEZANSON 81 VICTORIA LOOP PORT TOWNSEND, WA 98368-9474 | % Ownership: | 100.0000000000% |
| | | Exemptions: | |
Pay Tax Due
There is currently No Amount Due on this property.
Taxes and Assessment Details
Property Tax Information as of
10/23/2025
Click on "Statement Details" to expand or collapse a tax statement.
* Please enter a valid date ** Please enter a valid date *
Statement Details |
| | TOTAL: | $0.00 | $0.00 | $0.00 | $0.00 | $0.00 | $0.00 |
|
| | $0.00 | $0.00 | $0.00 | $0.00 | $0.00 | $0.00 |
Values
| (+) Improvement Homesite Value: | + | $0 | |
| (+) Improvement Non-Homesite Value: | + | $0 | |
| (+) Land Homesite Value: | + | $0 | |
| (+) Land Non-Homesite Value: | + | $121,634 | |
| (+) Curr Use (HS): | + | $0 | $0 |
| (+) Curr Use (NHS): | + | $0 | $0 |
| | | -------------------------- | |
| (=) Market Value: | = | $121,634 | |
| (–) Productivity Loss: | – | $0 | |
| | | -------------------------- | |
| (=) Subtotal: | = | $121,634 | |
| (+) Senior Appraised Value: | + | $0 | |
| (+) Non-Senior Appraised Value: | + | $121,634 | |
| | | -------------------------- | |
| (=) Total Appraised Value: | = | $121,634 | |
| (–) Senior Exemption Loss: | – | $0 | |
| (–) Exemption Loss: | – | $0 | |
| | | -------------------------- | |
| (=) Taxable Value: | = | $121,634 | |
Taxing Jurisdiction
| Owner: | STUART BEZANSON | | |
| % Ownership: | 100.0000000000% | | |
| Total Value: | N/A | | |
| Tax Area: | 0323 - 1-48F2E2P1H2C2L1 |
| CE | COUNTY CURRENT EXPENSE | N/A | N/A | N/A | N/A | | |
| CNTYDD | DEVELOPMENTAL DISABILITIES | N/A | N/A | N/A | N/A | | |
| CNTYVET | VETERANS RELIEF | N/A | N/A | N/A | N/A | | |
| MENTAL | MENTAL HEALTH | N/A | N/A | N/A | N/A | | |
| ROADS | COUNTY ROADS | N/A | N/A | N/A | N/A | | |
| ROADSCU | COUNTY ROADS TO CUR EXP | N/A | N/A | N/A | N/A | | |
| HOSP2CASH | HOSP DIST #2 GENERAL | N/A | N/A | N/A | N/A | | |
| SCH48MO | SCHOOL DIST #48 EP & O | N/A | N/A | N/A | N/A | | |
| CEM2 | CEMETERY DIST #2 GENERAL | N/A | N/A | N/A | N/A | | |
| CONSERVE | CONSERVATION FUTURES | N/A | N/A | N/A | N/A | | |
| FD2 | FIRE DIST #2 GENERAL | N/A | N/A | N/A | N/A | | |
| LIB1 | LIBRARY DIST #1 GENERAL | N/A | N/A | N/A | N/A | | |
| PARK1 | PARK & REC DIST #1 GENERAL | N/A | N/A | N/A | N/A | | |
| PORTPT | PORT OF PT GENERAL | N/A | N/A | N/A | N/A | | |
| PORTPTIDD | PORT OF PT IDD 2019 | N/A | N/A | N/A | N/A | | |
| PUD1 | PUD #1 GENERAL | N/A | N/A | N/A | N/A | | |
| STATE | STATE SCHOOL PART 1 | N/A | N/A | N/A | N/A | | |
| STATE2 | STATE SCHOOL PART 2 | N/A | N/A | N/A | N/A | | |
| EMS2 | FIRE DIST #2 EMS | N/A | N/A | N/A | N/A | | |
| | Total Tax Rate: | N/A | | | | | |
| | | | | Taxes w/Current Exemptions: | N/A | | |
| | | | | Taxes w/o Exemptions: | N/A | | |
Improvement / Building
Sketch
| No sketches available for this property. |
Property Image
Land
| 1 | 2220-1375S | Terr/Mtn/No View Sites 1+/- Acre | 1.0000 | 43560.00 | 0.00 | 0.00 | 1.00 | $85,100 | $0 |
| 2 | 1571A | Terr/Mtn/No View <6 Acres | 1.7000 | 74052.00 | 0.00 | 0.00 | 0.00 | $36,534 | $0 |
Roll Value History
| 2025 | N/A | N/A | N/A | N/A | N/A |
| 2024 | $0 | $121,634 | $0 | $121,634 | $121,634 |
| 2023 | $0 | $111,433 | $0 | $111,433 | $111,433 |
| 2022 | $0 | $76,800 | $0 | $76,800 | $76,800 |
| 2021 | $0 | $44,160 | $0 | $44,160 | $44,160 |
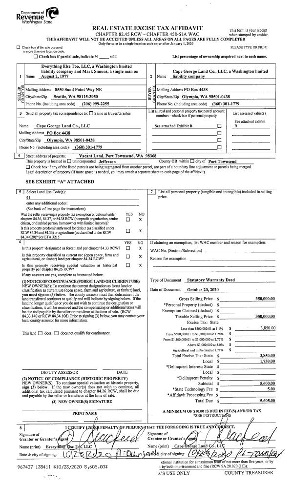
Deed and Sales History
| 1 | 07/17/2023 | SWD | Statutory Warranty Deed | MARK V BAILEY | STUART BEZANSON | | | $115,000.00 | 141257 | |
| 2 | 04/05/2023 | SWD | Statutory Warranty Deed | D'ANN GONZALES | MARK V BAILEY | | | $139,000.00 | 140740 | |
| 3 | 06/27/2022 | SWD | Statutory Warranty Deed | REBECA L MARSHALL | D'ANN GONZALES | | | $125,000.00 | 139407 | |
| 4 | 05/28/2021 | SWD | Statutory Warranty Deed | ELIZABETH HARTZELL | REBECA L MARSHALL | | | $90,000.00 | 136903 | |
| 5 | 01/23/2019 | SWD | Statutory Warranty Deed | OPG PROPERTIES LLC | ELIZABETH HARTZELL | | | $21,750.00 | 131764 | |
| 6 | 03/28/2007 | QCD | Quit Claim Deed | POPE RESOURCES | OPG PROPERTIES LLC | | | $0.00 | 109015 | 0 |
| 7 | 03/28/2007 | QCD | Quit Claim Deed | POPE RESOURCES, A DELAWAR | OPG PROPERTIES LLC | | | $0.00 | 108927 | 0 |
Payout Agreement
| No payout information available.. |