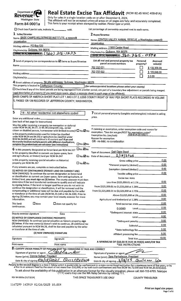
Property
Account |
| Property ID: | 15447 | Abbreviated Legal Description: | S16 T26 R1W TAX 6 (ENLGD BY TX 9) TL TX C1 |
| Parcel # / Geo ID: | 601161011 | Agent Code: | |
| Type: | Real | | |
| Tax Area: | 0323 - 1-48F2E2P1H2C2L1 | Land Use Code | 11 |
| Open Space: | N | DFL | N |
| Historic Property: | N | Remodel Property: | N |
| Multi-Family Redevelopment: | N | | |
| Township: | 26N | Section: | 16 |
| Range: | 1W |
Location |
| Address: | 595 CAMP HARMONY RD QUILCENE, WA 98376 | Mapsco: | 120/038 |
| Neighborhood: | S 14 - 16 T26N R1W | Map ID: | |
| Neighborhood CD: | 2230 |
Owner |
| Name: | CAMP HARMONY LLC | Owner ID: | 112598 |
| Mailing Address: | 104 W 12TH ST PORT ANGELES, WA 98362-7714 | % Ownership: | 100.0000000000% |
| | | Exemptions: | |
Pay Tax Due
There is currently No Amount Due on this property.
Taxes and Assessment Details
Property Tax Information as of
10/23/2025
Click on "Statement Details" to expand or collapse a tax statement.
* Please enter a valid date ** Please enter a valid date *
Statement Details |
| | TOTAL: | $0.00 | $0.00 | $0.00 | $0.00 | $0.00 | $0.00 |
|
| | $0.00 | $0.00 | $0.00 | $0.00 | $0.00 | $0.00 |
Values
| (+) Improvement Homesite Value: | + | $0 | |
| (+) Improvement Non-Homesite Value: | + | $328,995 | |
| (+) Land Homesite Value: | + | $0 | |
| (+) Land Non-Homesite Value: | + | $145,015 | |
| (+) Curr Use (HS): | + | $0 | $0 |
| (+) Curr Use (NHS): | + | $0 | $0 |
| | | -------------------------- | |
| (=) Market Value: | = | $474,010 | |
| (–) Productivity Loss: | – | $0 | |
| | | -------------------------- | |
| (=) Subtotal: | = | $474,010 | |
| (+) Senior Appraised Value: | + | $0 | |
| (+) Non-Senior Appraised Value: | + | $474,010 | |
| | | -------------------------- | |
| (=) Total Appraised Value: | = | $474,010 | |
| (–) Senior Exemption Loss: | – | $0 | |
| (–) Exemption Loss: | – | $0 | |
| | | -------------------------- | |
| (=) Taxable Value: | = | $474,010 | |
Taxing Jurisdiction
| Owner: | CAMP HARMONY LLC | | |
| % Ownership: | 100.0000000000% | | |
| Total Value: | N/A | | |
| Tax Area: | 0323 - 1-48F2E2P1H2C2L1 |
| CE | COUNTY CURRENT EXPENSE | N/A | N/A | N/A | N/A | | |
| CNTYDD | DEVELOPMENTAL DISABILITIES | N/A | N/A | N/A | N/A | | |
| CNTYVET | VETERANS RELIEF | N/A | N/A | N/A | N/A | | |
| MENTAL | MENTAL HEALTH | N/A | N/A | N/A | N/A | | |
| ROADS | COUNTY ROADS | N/A | N/A | N/A | N/A | | |
| ROADSCU | COUNTY ROADS TO CUR EXP | N/A | N/A | N/A | N/A | | |
| HOSP2CASH | HOSP DIST #2 GENERAL | N/A | N/A | N/A | N/A | | |
| SCH48MO | SCHOOL DIST #48 EP & O | N/A | N/A | N/A | N/A | | |
| CEM2 | CEMETERY DIST #2 GENERAL | N/A | N/A | N/A | N/A | | |
| CONSERVE | CONSERVATION FUTURES | N/A | N/A | N/A | N/A | | |
| FD2 | FIRE DIST #2 GENERAL | N/A | N/A | N/A | N/A | | |
| LIB1 | LIBRARY DIST #1 GENERAL | N/A | N/A | N/A | N/A | | |
| PARK1 | PARK & REC DIST #1 GENERAL | N/A | N/A | N/A | N/A | | |
| PORTPT | PORT OF PT GENERAL | N/A | N/A | N/A | N/A | | |
| PORTPTIDD | PORT OF PT IDD 2019 | N/A | N/A | N/A | N/A | | |
| PUD1 | PUD #1 GENERAL | N/A | N/A | N/A | N/A | | |
| STATE | STATE SCHOOL PART 1 | N/A | N/A | N/A | N/A | | |
| STATE2 | STATE SCHOOL PART 2 | N/A | N/A | N/A | N/A | | |
| EMS2 | FIRE DIST #2 EMS | N/A | N/A | N/A | N/A | | |
| | Total Tax Rate: | N/A | | | | | |
| | | | | Taxes w/Current Exemptions: | N/A | | |
| | | | | Taxes w/o Exemptions: | N/A | | |
Improvement / Building
| Improvement #1: | Residential Bldg | State Code: | 11 | 2108.0 sqft | Value: | $328,995 |
| Bathrooms (#): | 2 (FULL) | Bedrooms (#): | 3 | | Exterior Wall: | SI/ST | Fireplace: | SIN 1-GOOD | | Floor Construction: | FRAME | Foundation: | CONPR | | Heating/Cooling: | ELBB | Inside Verify: | YES-FIX | | Roof Cover: | COMP |   |   |
|
| | Type | Description | Class CD | Sub Class CD | Year Built | Area |
| | MA | Main Area | 4- | 1S | 1980 | 1820.0 |
| | MA2 | Second Floor Main Area | 4- | 1S | 1980 | 288.0 |
| | HBAL | House Balcony | 4 | * | 1980 | 108.0 |
| | HCPOR | House Concrete Porch | 4 | * | 1980 | 120.0 |
| | HDECK | House Deck | 4 | * | 1980 | 728.0 |
| | GATT | House Attached Garage | 3 | 1S | 1980 | 300.0 |
| | CARPT | Carport (Table Not Dep) | 4 | * | 1980 | 220.0 |
Sketch
Property Image
Land
| 1 | 2230-1355S | Avg View Sites of Hood Cnl/Dabob 1+/- Acre | 1.0000 | 43560.00 | 0.00 | 0.00 | 1.00 | $97,750 | $0 |
| 2 | 2230-1515F | Low Bank Wtrfrt on Dabob Bay/Hood Canal | 0.0000 | 0.00 | 0.00 | 0.00 | 0.00 | $46,000 | $0 |
| 3 | 9301F | Tidelands | 0.0000 | 0.00 | 0.00 | 0.00 | 0.00 | $1,265 | $0 |
Roll Value History
| 2025 | N/A | N/A | N/A | N/A | N/A |
| 2024 | $328,995 | $145,015 | $0 | $474,010 | $474,010 |
| 2023 | $314,691 | $133,210 | $0 | $447,901 | $447,901 |
| 2022 | $286,083 | $116,100 | $0 | $402,183 | $402,183 |
| 2021 | $238,055 | $103,056 | $0 | $341,111 | $341,111 |
Deed and Sales History
| 1 | 05/09/2025 | QCD | Quit Claim Deed | ROBERT T MCCARTNEY TRST | CAMP HARMONY LLC | | | | 144311 | |
| 2 | 11/21/1996 | QCD | Quit Claim Deed | MCCARTNEY, ROBERT T/ANNA | MCCARTNEY FAMILY TRUST | 0 | 0 | $0.00 | 80977 | 0 |
Payout Agreement
| No payout information available.. |