Property
Account |
| Property ID: | 15556 | Abbreviated Legal Description: | S22 T26 R1W TAX 19 1/50TH INT IN TAX 22(COMM BEACH) |
| Parcel # / Geo ID: | 601222017 | Agent Code: | |
| Type: | Real | | |
| Tax Area: | 0323 - 1-48F2E2P1H2C2L1 | Land Use Code | 11 |
| Open Space: | N | DFL | N |
| Historic Property: | N | Remodel Property: | N |
| Multi-Family Redevelopment: | N | | |
| Township: | 26N | Section: | 22 |
| Range: | 1W |
Location |
| Address: | 183 PIZMO BEACH DR QUILCENE, WA 98376 | Mapsco: | 121/046 |
| Neighborhood: | S22 & S23 & S27 T26N R1W + KIPP S.P. & BRYANT S.P. #2 | Map ID: | |
| Neighborhood CD: | 2250 |
Owner |
| Name: | HOLLY GRENKAVICH | Owner ID: | 99313 |
| Mailing Address: | 1719 WALNUT AVE SW SEATTLE, WA 98116-2019 | % Ownership: | 100.0000000000% |
| | | Exemptions: | |
Pay Tax Due
There is currently No Amount Due on this property.
Taxes and Assessment Details
Property Tax Information as of
10/23/2025
Click on "Statement Details" to expand or collapse a tax statement.
* Please enter a valid date ** Please enter a valid date *
Statement Details |
| | TOTAL: | $0.00 | $0.00 | $0.00 | $0.00 | $0.00 | $0.00 |
|
| | $0.00 | $0.00 | $0.00 | $0.00 | $0.00 | $0.00 |
Values
| (+) Improvement Homesite Value: | + | $0 | |
| (+) Improvement Non-Homesite Value: | + | $216,938 | |
| (+) Land Homesite Value: | + | $0 | |
| (+) Land Non-Homesite Value: | + | $77,146 | |
| (+) Curr Use (HS): | + | $0 | $0 |
| (+) Curr Use (NHS): | + | $0 | $0 |
| | | -------------------------- | |
| (=) Market Value: | = | $294,084 | |
| (–) Productivity Loss: | – | $0 | |
| | | -------------------------- | |
| (=) Subtotal: | = | $294,084 | |
| (+) Senior Appraised Value: | + | $0 | |
| (+) Non-Senior Appraised Value: | + | $294,084 | |
| | | -------------------------- | |
| (=) Total Appraised Value: | = | $294,084 | |
| (–) Senior Exemption Loss: | – | $0 | |
| (–) Exemption Loss: | – | $0 | |
| | | -------------------------- | |
| (=) Taxable Value: | = | $294,084 | |
Taxing Jurisdiction
| Owner: | HOLLY GRENKAVICH | | |
| % Ownership: | 100.0000000000% | | |
| Total Value: | N/A | | |
| Tax Area: | 0323 - 1-48F2E2P1H2C2L1 |
| CE | COUNTY CURRENT EXPENSE | N/A | N/A | N/A | N/A | | |
| CNTYDD | DEVELOPMENTAL DISABILITIES | N/A | N/A | N/A | N/A | | |
| CNTYVET | VETERANS RELIEF | N/A | N/A | N/A | N/A | | |
| MENTAL | MENTAL HEALTH | N/A | N/A | N/A | N/A | | |
| ROADS | COUNTY ROADS | N/A | N/A | N/A | N/A | | |
| ROADSCU | COUNTY ROADS TO CUR EXP | N/A | N/A | N/A | N/A | | |
| HOSP2CASH | HOSP DIST #2 GENERAL | N/A | N/A | N/A | N/A | | |
| SCH48MO | SCHOOL DIST #48 EP & O | N/A | N/A | N/A | N/A | | |
| CEM2 | CEMETERY DIST #2 GENERAL | N/A | N/A | N/A | N/A | | |
| CONSERVE | CONSERVATION FUTURES | N/A | N/A | N/A | N/A | | |
| FD2 | FIRE DIST #2 GENERAL | N/A | N/A | N/A | N/A | | |
| LIB1 | LIBRARY DIST #1 GENERAL | N/A | N/A | N/A | N/A | | |
| PARK1 | PARK & REC DIST #1 GENERAL | N/A | N/A | N/A | N/A | | |
| PORTPT | PORT OF PT GENERAL | N/A | N/A | N/A | N/A | | |
| PORTPTIDD | PORT OF PT IDD 2019 | N/A | N/A | N/A | N/A | | |
| PUD1 | PUD #1 GENERAL | N/A | N/A | N/A | N/A | | |
| STATE | STATE SCHOOL PART 1 | N/A | N/A | N/A | N/A | | |
| STATE2 | STATE SCHOOL PART 2 | N/A | N/A | N/A | N/A | | |
| EMS2 | FIRE DIST #2 EMS | N/A | N/A | N/A | N/A | | |
| | Total Tax Rate: | N/A | | | | | |
| | | | | Taxes w/Current Exemptions: | N/A | | |
| | | | | Taxes w/o Exemptions: | N/A | | |
Improvement / Building
| Improvement #1: | Residential Bldg | State Code: | 11 | 1200.0 sqft | Value: | $216,938 |
| Bathrooms (#): | 2 (FULL) | Bedrooms (#): | 2 | | Exterior Wall: | SI/ST | Floor Construction: | FRAME | | Foundation: | CONPR | Heating/Cooling: | HPUMP | | Interior Finish: | FIN | Roof Cover: | METAL |
|
Sketch
Property Image
Land
| 1 | 2250-1515F | Low Bank Wtrfrt on Dabob Bay/Hood Canal | 0.0000 | 0.00 | 0.00 | 0.00 | 0.00 | $5,146 | $0 |
| 2 | 2250-1375S | Terr/Mtn/No View Sites 1+/- Acre | 0.0000 | 0.00 | 0.00 | 0.00 | 1.00 | $72,000 | $0 |
Roll Value History
| 2025 | N/A | N/A | N/A | N/A | N/A |
| 2024 | $131,480 | $73,931 | $0 | $205,411 | $205,411 |
| 2023 | $0 | $39,288 | $0 | $39,288 | $39,288 |
| 2022 | $0 | $38,288 | $0 | $38,288 | $38,288 |
| 2021 | $0 | $29,059 | $0 | $29,059 | $29,059 |
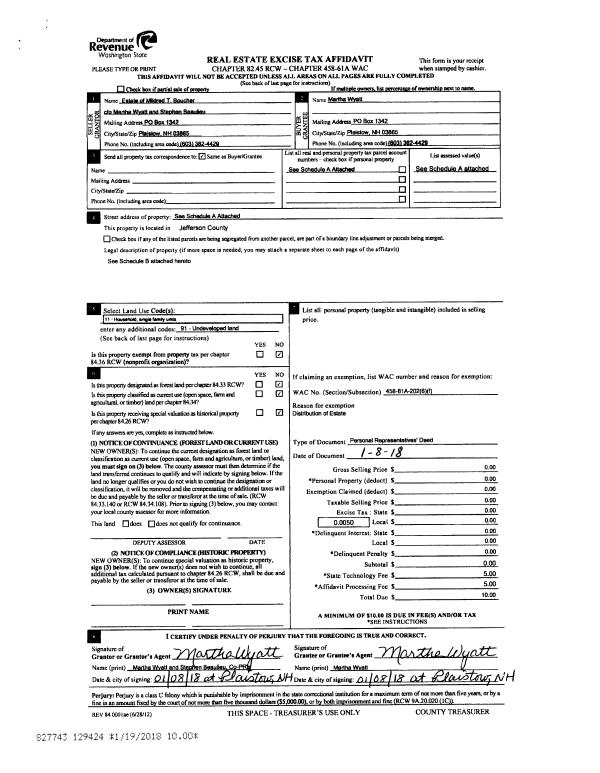
Deed and Sales History
| 1 | 05/17/2018 | SWD | Statutory Warranty Deed | RICHARD J GRANDY | HOLLY GRENKAVICH | | | $49,000.00 | 130219 | |
|   | |
| 2 | 11/14/1996 | REC | Real Estate Contract | SPENCER, GENE L/CAROL A | GRANDY, RICHARD J | 0 | 0 | $10,000.00 | 80795 | 0 |
Payout Agreement
| No payout information available.. |