Property
Account |
| Property ID: | 15697 | Abbreviated Legal Description: | S28 T26 R1W TAX 39 (TR 23) |
| Parcel # / Geo ID: | 601283021 | Agent Code: | |
| Type: | Real | | |
| Tax Area: | 0323 - 1-48F2E2P1H2C2L1 | Land Use Code | 11 |
| Open Space: | N | DFL | N |
| Historic Property: | N | Remodel Property: | N |
| Multi-Family Redevelopment: | N | | |
| Township: | 26N | Section: | 28 |
| Range: | 1W |
Location |
| Address: | 655 PAYNE RD QUILCENE, WA 98376 | Mapsco: | 123/050 |
| Neighborhood: | ZELATCHED POINT 5 ACRE TRACTS(V3/P78/79)(S28&33T26R1W)LS BLA | Map ID: | |
| Neighborhood CD: | 2253 |
Owner |
| Name: | ROBERT DAVIS | Owner ID: | 14225 |
| Mailing Address: | GRETCHEN DAVIS 141 LAUREL ST PORT HADLOCK, WA 98339-9756 | % Ownership: | 100.0000000000% |
| | | Exemptions: | |
Pay Tax Due
There is currently No Amount Due on this property.
Taxes and Assessment Details
Property Tax Information as of
10/23/2025
Click on "Statement Details" to expand or collapse a tax statement.
* Please enter a valid date ** Please enter a valid date *
Statement Details |
| | TOTAL: | $0.00 | $0.00 | $0.00 | $0.00 | $0.00 | $0.00 |
|
| | $0.00 | $0.00 | $0.00 | $0.00 | $0.00 | $0.00 |
Values
| (+) Improvement Homesite Value: | + | $0 | |
| (+) Improvement Non-Homesite Value: | + | $52,399 | |
| (+) Land Homesite Value: | + | $0 | |
| (+) Land Non-Homesite Value: | + | $113,767 | |
| (+) Curr Use (HS): | + | $0 | $0 |
| (+) Curr Use (NHS): | + | $0 | $0 |
| | | -------------------------- | |
| (=) Market Value: | = | $166,166 | |
| (–) Productivity Loss: | – | $0 | |
| | | -------------------------- | |
| (=) Subtotal: | = | $166,166 | |
| (+) Senior Appraised Value: | + | $0 | |
| (+) Non-Senior Appraised Value: | + | $166,166 | |
| | | -------------------------- | |
| (=) Total Appraised Value: | = | $166,166 | |
| (–) Senior Exemption Loss: | – | $0 | |
| (–) Exemption Loss: | – | $0 | |
| | | -------------------------- | |
| (=) Taxable Value: | = | $166,166 | |
Taxing Jurisdiction
| Owner: | ROBERT DAVIS | | |
| % Ownership: | 100.0000000000% | | |
| Total Value: | N/A | | |
| Tax Area: | 0323 - 1-48F2E2P1H2C2L1 |
| CE | COUNTY CURRENT EXPENSE | N/A | N/A | N/A | N/A | | |
| CNTYDD | DEVELOPMENTAL DISABILITIES | N/A | N/A | N/A | N/A | | |
| CNTYVET | VETERANS RELIEF | N/A | N/A | N/A | N/A | | |
| MENTAL | MENTAL HEALTH | N/A | N/A | N/A | N/A | | |
| ROADS | COUNTY ROADS | N/A | N/A | N/A | N/A | | |
| ROADSCU | COUNTY ROADS TO CUR EXP | N/A | N/A | N/A | N/A | | |
| HOSP2CASH | HOSP DIST #2 GENERAL | N/A | N/A | N/A | N/A | | |
| SCH48MO | SCHOOL DIST #48 EP & O | N/A | N/A | N/A | N/A | | |
| CEM2 | CEMETERY DIST #2 GENERAL | N/A | N/A | N/A | N/A | | |
| CONSERVE | CONSERVATION FUTURES | N/A | N/A | N/A | N/A | | |
| FD2 | FIRE DIST #2 GENERAL | N/A | N/A | N/A | N/A | | |
| LIB1 | LIBRARY DIST #1 GENERAL | N/A | N/A | N/A | N/A | | |
| PARK1 | PARK & REC DIST #1 GENERAL | N/A | N/A | N/A | N/A | | |
| PORTPT | PORT OF PT GENERAL | N/A | N/A | N/A | N/A | | |
| PORTPTIDD | PORT OF PT IDD 2019 | N/A | N/A | N/A | N/A | | |
| PUD1 | PUD #1 GENERAL | N/A | N/A | N/A | N/A | | |
| STATE | STATE SCHOOL PART 1 | N/A | N/A | N/A | N/A | | |
| STATE2 | STATE SCHOOL PART 2 | N/A | N/A | N/A | N/A | | |
| EMS2 | FIRE DIST #2 EMS | N/A | N/A | N/A | N/A | | |
| | Total Tax Rate: | N/A | | | | | |
| | | | | Taxes w/Current Exemptions: | N/A | | |
| | | | | Taxes w/o Exemptions: | N/A | | |
Improvement / Building
| Improvement #1: | Residential Bldg | State Code: | 11 | 120.0 sqft | Value: | $52,399 |
| Exterior Wall: | PL/T1 | Floor Construction: | FRAME | | Foundation: | CONBL | Heating/Cooling: | WD/NO | | Inside Verify: | YES-FIX | Interior Finish: | FIN | | Roof Cover: | METAL |   |   |
|
| | Type | Description | Class CD | Sub Class CD | Year Built | Area |
| | MA | Main Area | 3+ | C15F | 2006 | 120.0 |
| | CLOFT | Cabin Loft | 3 | C15F | 2006 | 120.0 |
| | CWPOR | Cabin Wood Porch | 3 | * | 2006 | 176.0 |
| | CDECK | Cabin Deck | 3 | * | 2006 | 210.0 |
| | OTHER | Other | * | * | 2006 | 0.0 |
| | OTHER | Other | 3 | * | 2006 | 0.0 |
Sketch
Property Image
Land
| 1 | 1575A | Terr/Mtn/No View <6 Acres | 5.2100 | 226947.60 | 0.00 | 0.00 | 0.00 | $40,742 | $0 |
| 2 | 2253-1372S | V Good Terr View Sites 1+/- Acre | 1.0000 | 43560.00 | 0.00 | 0.00 | 1.00 | $68,425 | $0 |
| 3 | 9801 | Power Only | 1.0000 | 43560.00 | 0.00 | 0.00 | 1.00 | $4,600 | $0 |
Roll Value History
| 2025 | N/A | N/A | N/A | N/A | N/A |
| 2024 | $52,399 | $113,767 | $0 | $166,166 | $166,166 |
| 2023 | $50,120 | $96,714 | $0 | $146,834 | $146,834 |
| 2022 | $45,564 | $93,393 | $0 | $138,957 | $138,957 |
| 2021 | $39,720 | $78,772 | $0 | $118,492 | $118,492 |
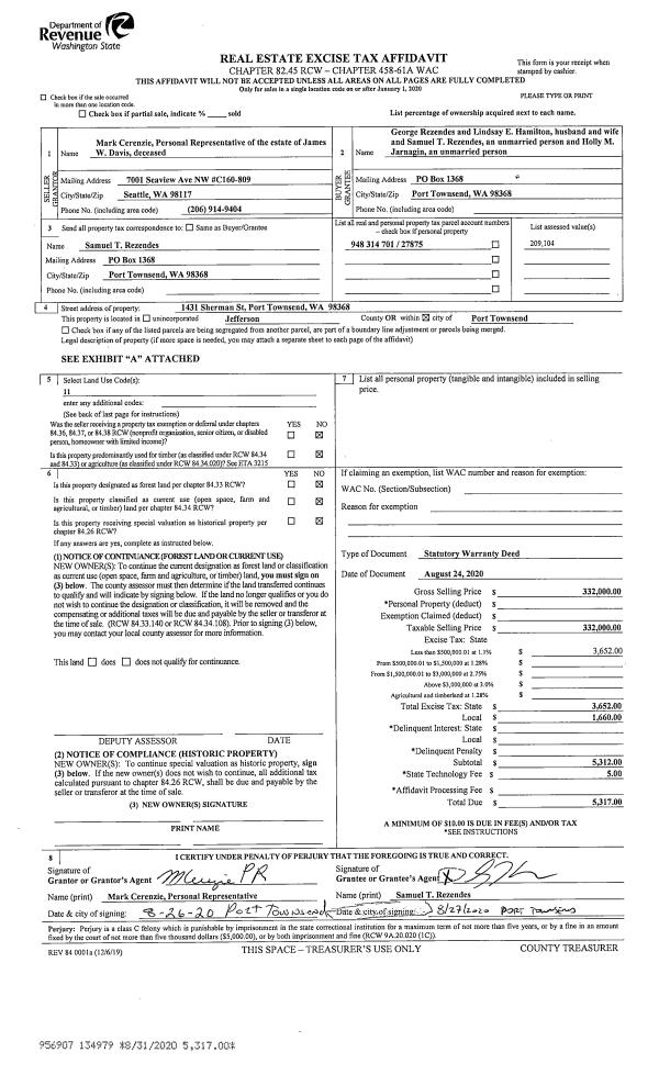
Deed and Sales History
| 1 | 08/24/2001 | SWD | Statutory Warranty Deed | INGEBRITSON, JOEL F/PAULA | DAVIS, ROBERT, GRETCHEN | 0 | 0 | $60,000.00 | 92967 | 0 |
Payout Agreement
| No payout information available.. |