Property
Account |
| Property ID: | 15794 | Abbreviated Legal Description: | S33 T26 R1W E1/2 SW NW SW SUBJ/EASE #112259 |
| Parcel # / Geo ID: | 601333008 | Agent Code: | |
| Type: | Real | | |
| Tax Area: | 0323 - 1-48F2E2P1H2C2L1 | Land Use Code | 91 |
| Open Space: | N | DFL | N |
| Historic Property: | N | Remodel Property: | N |
| Multi-Family Redevelopment: | N | | |
| Township: | 26N | Section: | 33 |
| Range: | 1W |
Location |
| Address: | | Mapsco: | 125/009 |
| Neighborhood: | PORTION OF S32 & 33 T26 R1W COYLE | Map ID: | |
| Neighborhood CD: | 2260 |
Owner |
| Name: | JAMES A MACKAY IV | Owner ID: | 107808 |
| Mailing Address: | 5145 NE HENDRICKSON RD POULSBO, WA 98370-7812 | % Ownership: | 100.0000000000% |
| | | Exemptions: | |
Pay Tax Due
There is currently No Amount Due on this property.
Taxes and Assessment Details
Property Tax Information as of
10/23/2025
Click on "Statement Details" to expand or collapse a tax statement.
* Please enter a valid date ** Please enter a valid date *
Statement Details |
| | TOTAL: | $0.00 | $0.00 | $0.00 | $0.00 | $0.00 | $0.00 |
|
| | $0.00 | $0.00 | $0.00 | $0.00 | $0.00 | $0.00 |
Values
| (+) Improvement Homesite Value: | + | $0 | |
| (+) Improvement Non-Homesite Value: | + | $0 | |
| (+) Land Homesite Value: | + | $0 | |
| (+) Land Non-Homesite Value: | + | $55,562 | |
| (+) Curr Use (HS): | + | $0 | $0 |
| (+) Curr Use (NHS): | + | $0 | $0 |
| | | -------------------------- | |
| (=) Market Value: | = | $55,562 | |
| (–) Productivity Loss: | – | $0 | |
| | | -------------------------- | |
| (=) Subtotal: | = | $55,562 | |
| (+) Senior Appraised Value: | + | $0 | |
| (+) Non-Senior Appraised Value: | + | $55,562 | |
| | | -------------------------- | |
| (=) Total Appraised Value: | = | $55,562 | |
| (–) Senior Exemption Loss: | – | $0 | |
| (–) Exemption Loss: | – | $0 | |
| | | -------------------------- | |
| (=) Taxable Value: | = | $55,562 | |
Taxing Jurisdiction
| Owner: | JAMES A MACKAY IV | | |
| % Ownership: | 100.0000000000% | | |
| Total Value: | N/A | | |
| Tax Area: | 0323 - 1-48F2E2P1H2C2L1 |
| CE | COUNTY CURRENT EXPENSE | N/A | N/A | N/A | N/A | | |
| CNTYDD | DEVELOPMENTAL DISABILITIES | N/A | N/A | N/A | N/A | | |
| CNTYVET | VETERANS RELIEF | N/A | N/A | N/A | N/A | | |
| MENTAL | MENTAL HEALTH | N/A | N/A | N/A | N/A | | |
| ROADS | COUNTY ROADS | N/A | N/A | N/A | N/A | | |
| ROADSCU | COUNTY ROADS TO CUR EXP | N/A | N/A | N/A | N/A | | |
| HOSP2CASH | HOSP DIST #2 GENERAL | N/A | N/A | N/A | N/A | | |
| SCH48MO | SCHOOL DIST #48 EP & O | N/A | N/A | N/A | N/A | | |
| CEM2 | CEMETERY DIST #2 GENERAL | N/A | N/A | N/A | N/A | | |
| CONSERVE | CONSERVATION FUTURES | N/A | N/A | N/A | N/A | | |
| FD2 | FIRE DIST #2 GENERAL | N/A | N/A | N/A | N/A | | |
| LIB1 | LIBRARY DIST #1 GENERAL | N/A | N/A | N/A | N/A | | |
| PARK1 | PARK & REC DIST #1 GENERAL | N/A | N/A | N/A | N/A | | |
| PORTPT | PORT OF PT GENERAL | N/A | N/A | N/A | N/A | | |
| PORTPTIDD | PORT OF PT IDD 2019 | N/A | N/A | N/A | N/A | | |
| PUD1 | PUD #1 GENERAL | N/A | N/A | N/A | N/A | | |
| STATE | STATE SCHOOL PART 1 | N/A | N/A | N/A | N/A | | |
| STATE2 | STATE SCHOOL PART 2 | N/A | N/A | N/A | N/A | | |
| EMS2 | FIRE DIST #2 EMS | N/A | N/A | N/A | N/A | | |
| | Total Tax Rate: | N/A | | | | | |
| | | | | Taxes w/Current Exemptions: | N/A | | |
| | | | | Taxes w/o Exemptions: | N/A | | |
Improvement / Building
Sketch
| No sketches available for this property. |
Property Image
Land
| 1 | 1575A | Terr/Mtn/No View <6 Acres | 3.9800 | 173368.80 | 0.00 | 0.00 | 0.00 | $31,124 | $0 |
| 2 | 2260-1385S | Limited/No View Sites 1 +/- Acre | 1.0000 | 43560.00 | 0.00 | 0.00 | 1.00 | $24,438 | $0 |
Roll Value History
| 2025 | N/A | N/A | N/A | N/A | N/A |
| 2024 | $0 | $55,562 | $0 | $55,562 | $55,562 |
| 2023 | $0 | $48,955 | $0 | $48,955 | $48,955 |
| 2022 | $0 | $44,085 | $0 | $44,085 | $44,085 |
| 2021 | $0 | $35,598 | $0 | $35,598 | $35,598 |
Deed and Sales History
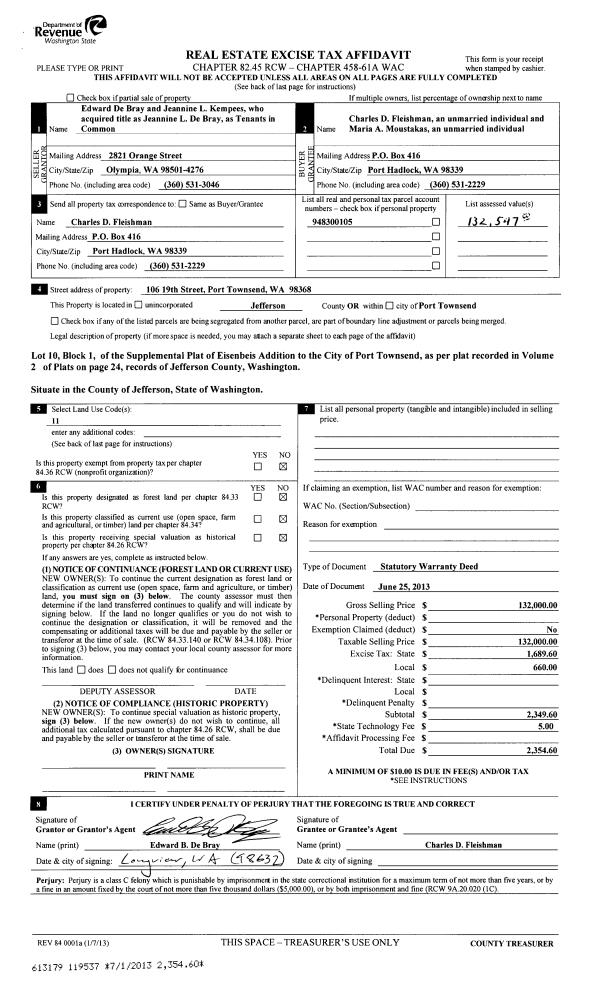
| 1 | 10/06/2022 | SWD | Statutory Warranty Deed | VACANT LAND GUYS LLC | JAMES A MACKAY IV | | | $49,700.00 | 139971 | |
| 2 | 06/13/2019 | SWD | Statutory Warranty Deed | GLENN R SANDT | VACANT LAND GUYS LLC | | | $29,066.00 | 132557 | |
| 3 | 01/14/2015 | QCD | Quit Claim Deed | JANICE PYGOTT | GLENN R SANDT | | | | 122563 | |
| 4 | 12/08/2008 | EASE | Assignment of Easement | BAILEY, RAY R/KAREN, PYGO | CLAYTON, LINDA M TRUSTEE OF TH | 0 | 0 | $12,500.00 | 112259 | 0 |
| 5 | 12/02/2008 | EASE | Assignment of Easement | BAILEY, RAY/KAREN ET AL | CLAYTON, LINDA M TRUSTEE | 0 | 0 | $0.00 | 112580 | 0 |
| 6 | 02/24/1999 | QCD | Quit Claim Deed | BAILEY, RAY R | PYGOTT, JANICE | 0 | 0 | $0.00 | 86381 | 0 |
Payout Agreement
| No payout information available.. |