Property
Account |
| Property ID: | 15820 | Abbreviated Legal Description: | S33 T26 R1W TAX 21 TRACT 10 |
| Parcel # / Geo ID: | 601334016 | Agent Code: | |
| Type: | Real | | |
| Tax Area: | 0323 - 1-48F2E2P1H2C2L1 | Land Use Code | 11 |
| Open Space: | N | DFL | N |
| Historic Property: | N | Remodel Property: | N |
| Multi-Family Redevelopment: | N | | |
| Township: | 26N | Section: | 33 |
| Range: | 1W |
Location |
| Address: | 55 WOLF RD QUILCENE, WA 98376 | Mapsco: | 126/010 |
| Neighborhood: | CHURCHILL TRACTS S33 T26 R1W & S4 T25 R1W | Map ID: | |
| Neighborhood CD: | 2265 |
Owner |
| Name: | DAVID S JR & SARAH N HOUSEBERG | Owner ID: | 99956 |
| Mailing Address: | PO BOX 789 CLE ELUM, WA 98922-0789 | % Ownership: | 100.0000000000% |
| | | Exemptions: | |
Pay Tax Due
There is currently No Amount Due on this property.
Taxes and Assessment Details
Property Tax Information as of
10/23/2025
Click on "Statement Details" to expand or collapse a tax statement.
* Please enter a valid date ** Please enter a valid date *
Statement Details |
| | TOTAL: | $0.00 | $0.00 | $0.00 | $0.00 | $0.00 | $0.00 |
|
| | $0.00 | $0.00 | $0.00 | $0.00 | $0.00 | $0.00 |
Values
| (+) Improvement Homesite Value: | + | $0 | |
| (+) Improvement Non-Homesite Value: | + | $180,173 | |
| (+) Land Homesite Value: | + | $0 | |
| (+) Land Non-Homesite Value: | + | $161,000 | |
| (+) Curr Use (HS): | + | $0 | $0 |
| (+) Curr Use (NHS): | + | $0 | $0 |
| | | -------------------------- | |
| (=) Market Value: | = | $341,173 | |
| (–) Productivity Loss: | – | $0 | |
| | | -------------------------- | |
| (=) Subtotal: | = | $341,173 | |
| (+) Senior Appraised Value: | + | $0 | |
| (+) Non-Senior Appraised Value: | + | $341,173 | |
| | | -------------------------- | |
| (=) Total Appraised Value: | = | $341,173 | |
| (–) Senior Exemption Loss: | – | $0 | |
| (–) Exemption Loss: | – | $0 | |
| | | -------------------------- | |
| (=) Taxable Value: | = | $341,173 | |
Taxing Jurisdiction
| Owner: | DAVID S JR & SARAH N HOUSEBERG | | |
| % Ownership: | 100.0000000000% | | |
| Total Value: | N/A | | |
| Tax Area: | 0323 - 1-48F2E2P1H2C2L1 |
| CE | COUNTY CURRENT EXPENSE | N/A | N/A | N/A | N/A | | |
| CNTYDD | DEVELOPMENTAL DISABILITIES | N/A | N/A | N/A | N/A | | |
| CNTYVET | VETERANS RELIEF | N/A | N/A | N/A | N/A | | |
| MENTAL | MENTAL HEALTH | N/A | N/A | N/A | N/A | | |
| ROADS | COUNTY ROADS | N/A | N/A | N/A | N/A | | |
| ROADSCU | COUNTY ROADS TO CUR EXP | N/A | N/A | N/A | N/A | | |
| HOSP2CASH | HOSP DIST #2 GENERAL | N/A | N/A | N/A | N/A | | |
| SCH48MO | SCHOOL DIST #48 EP & O | N/A | N/A | N/A | N/A | | |
| CEM2 | CEMETERY DIST #2 GENERAL | N/A | N/A | N/A | N/A | | |
| CONSERVE | CONSERVATION FUTURES | N/A | N/A | N/A | N/A | | |
| FD2 | FIRE DIST #2 GENERAL | N/A | N/A | N/A | N/A | | |
| LIB1 | LIBRARY DIST #1 GENERAL | N/A | N/A | N/A | N/A | | |
| PARK1 | PARK & REC DIST #1 GENERAL | N/A | N/A | N/A | N/A | | |
| PORTPT | PORT OF PT GENERAL | N/A | N/A | N/A | N/A | | |
| PORTPTIDD | PORT OF PT IDD 2019 | N/A | N/A | N/A | N/A | | |
| PUD1 | PUD #1 GENERAL | N/A | N/A | N/A | N/A | | |
| STATE | STATE SCHOOL PART 1 | N/A | N/A | N/A | N/A | | |
| STATE2 | STATE SCHOOL PART 2 | N/A | N/A | N/A | N/A | | |
| EMS2 | FIRE DIST #2 EMS | N/A | N/A | N/A | N/A | | |
| | Total Tax Rate: | N/A | | | | | |
| | | | | Taxes w/Current Exemptions: | N/A | | |
| | | | | Taxes w/o Exemptions: | N/A | | |
Improvement / Building
| Improvement #1: | Residential Bldg | State Code: | 11 | 931.5 sqft | Value: | $180,173 |
| Bathrooms (#): | 1 (FULL) | Bathrooms (#): | 1 (FULL) | | Bedrooms (#): | 2 | Exterior Wall: | SI/ST | | Floor Construction: | FRAME | Foundation: | CONPR | | Heating/Cooling: | ELBB | Roof Cover: | COMP |
|
| | Type | Description | Class CD | Sub Class CD | Year Built | Area |
| | MA | Main Area | 3- | 1S | 2009 | 931.5 |
| | HWPOR | House Wood Porch | 2 | * | 2009 | 67.5 |
| | HDECK | House Deck | 3 | * | 2009 | 270.0 |
| | SHED | Shed (Table Not Dep) | 3 | * | 2009 | 0.0 |
Sketch
Property Image
Land
| 1 | 2265-1135S | Lots Along Fishermans Harbor | 0.0000 | 0.00 | 0.00 | 0.00 | 1.00 | $161,000 | $0 |
Roll Value History
| 2025 | N/A | N/A | N/A | N/A | N/A |
| 2024 | $172,666 | $161,000 | $0 | $333,666 | $333,666 |
| 2023 | $165,158 | $141,750 | $0 | $306,908 | $306,908 |
| 2022 | $150,144 | $130,000 | $0 | $280,144 | $280,144 |
| 2021 | $124,938 | $120,000 | $0 | $244,938 | $244,938 |
Deed and Sales History
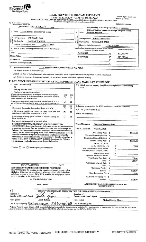
| 1 | 09/19/2018 | SWD | Statutory Warranty Deed | LAWRENCE BALINGIT & JENNIFER HAYMORE | DAVID S JR & SARAH N HOUSEBERG | | | $258,000.00 | 131091 | |
| 2 | 05/24/2016 | SWD | Statutory Warranty Deed | J CARY VINE | LAWRENCE BALINGIT & JENNIFER HAYMORE | | | $220,000.00 | 125500 | |
| 3 | 12/24/1996 | SWD | Statutory Warranty Deed | SEIDELHUBER, HENRY R/ELSI | VINE, J CARY/PAULA M | 0 | 0 | $0.00 | 81235 | 0 |
| 4 | 12/24/1996 | SWD | Statutory Warranty Deed | SEIDELHUBER, HENRY R/ELSI | VINE, J CARY/PAULA M | 0 | 0 | $27,500.00 | 81140 | 0 |
Payout Agreement
| No payout information available.. |