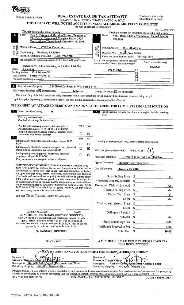
Property
Account |
| Property ID: | 15837 | Abbreviated Legal Description: | S33 T26 R1W TAX 39 TRACT 28 |
| Parcel # / Geo ID: | 601334034 | Agent Code: | |
| Type: | Real | | |
| Tax Area: | 0323 - 1-48F2E2P1H2C2L1 | Land Use Code | 11 |
| Open Space: | N | DFL | N |
| Historic Property: | N | Remodel Property: | N |
| Multi-Family Redevelopment: | N | | |
| Township: | 26N | Section: | 33 |
| Range: | 1W |
Location |
| Address: | 111 ALDER ST QUILCENE, WA 98376 | Mapsco: | 126/028 |
| Neighborhood: | CHURCHILL TRACTS S33 T26 R1W & S4 T25 R1W | Map ID: | |
| Neighborhood CD: | 2265 |
Owner |
| Name: | AARON W HARRISON | Owner ID: | 101391 |
| Mailing Address: | 111 ALDER ST QUILCENE, WA 98376-9601 | % Ownership: | 100.0000000000% |
| | | Exemptions: | SNR/DSBL |
Pay Tax Due
There is currently No Amount Due on this property.
Taxes and Assessment Details
Property Tax Information as of
10/23/2025
Click on "Statement Details" to expand or collapse a tax statement.
* Please enter a valid date ** Please enter a valid date *
Statement Details |
| | TOTAL: | $0.00 | $0.00 | $0.00 | $0.00 | $0.00 | $0.00 |
|
| | $0.00 | $0.00 | $0.00 | $0.00 | $0.00 | $0.00 |
Values
| (+) Improvement Homesite Value: | + | $127,577 | |
| (+) Improvement Non-Homesite Value: | + | $0 | |
| (+) Land Homesite Value: | + | $63,250 | |
| (+) Land Non-Homesite Value: | + | $0 | |
| (+) Curr Use (HS): | + | $0 | $0 |
| (+) Curr Use (NHS): | + | $0 | $0 |
| | | -------------------------- | |
| (=) Market Value: | = | $190,827 | |
| (–) Productivity Loss: | – | $0 | |
| | | -------------------------- | |
| (=) Subtotal: | = | $190,827 | |
| (+) Senior Appraised Value: | + | $113,168 | |
| (+) Non-Senior Appraised Value: | + | $0 | |
| | | -------------------------- | |
| (=) Total Appraised Value: | = | $113,168 | |
| (–) Senior Exemption Loss: | – | $67,901 | |
| (–) Exemption Loss: | – | $0 | |
| | | -------------------------- | |
| (=) Taxable Value: | = | $45,267 | |
Taxing Jurisdiction
| Owner: | AARON W HARRISON | | |
| % Ownership: | 100.0000000000% | | |
| Total Value: | N/A | | |
| Tax Area: | 0323 - 1-48F2E2P1H2C2L1 |
| CE | COUNTY CURRENT EXPENSE | N/A | N/A | N/A | N/A | | |
| CNTYDD | DEVELOPMENTAL DISABILITIES | N/A | N/A | N/A | N/A | | |
| CNTYVET | VETERANS RELIEF | N/A | N/A | N/A | N/A | | |
| MENTAL | MENTAL HEALTH | N/A | N/A | N/A | N/A | | |
| ROADS | COUNTY ROADS | N/A | N/A | N/A | N/A | | |
| ROADSCU | COUNTY ROADS TO CUR EXP | N/A | N/A | N/A | N/A | | |
| HOSP2CASH | HOSP DIST #2 GENERAL | N/A | N/A | N/A | N/A | | |
| SCH48MO | SCHOOL DIST #48 EP & O | N/A | N/A | N/A | N/A | | |
| CEM2 | CEMETERY DIST #2 GENERAL | N/A | N/A | N/A | N/A | | |
| CONSERVE | CONSERVATION FUTURES | N/A | N/A | N/A | N/A | | |
| FD2 | FIRE DIST #2 GENERAL | N/A | N/A | N/A | N/A | | |
| LIB1 | LIBRARY DIST #1 GENERAL | N/A | N/A | N/A | N/A | | |
| PARK1 | PARK & REC DIST #1 GENERAL | N/A | N/A | N/A | N/A | | |
| PORTPT | PORT OF PT GENERAL | N/A | N/A | N/A | N/A | | |
| PORTPTIDD | PORT OF PT IDD 2019 | N/A | N/A | N/A | N/A | | |
| PUD1 | PUD #1 GENERAL | N/A | N/A | N/A | N/A | | |
| STATE | STATE SCHOOL PART 1 | N/A | N/A | N/A | N/A | | |
| STATE2 | STATE SCHOOL PART 2 | N/A | N/A | N/A | N/A | | |
| EMS2 | FIRE DIST #2 EMS | N/A | N/A | N/A | N/A | | |
| | Total Tax Rate: | N/A | | | | | |
| | | | | Taxes w/Current Exemptions: | N/A | | |
| | | | | Taxes w/o Exemptions: | N/A | | |
Improvement / Building
| Improvement #1: | Manufactured Home | State Code: | 11 | 1620.0 sqft | Value: | $127,577 |
| Bathrooms (#): | 2 (FULL) | Bedrooms (#): | 2 | | Exterior Wall: | PL/T1 | Foundation: | PO&BL | | Heating/Cooling: | F/A | Inside Verify: | YES-FIX | | Roof Cover: | COMP |   |   |
|
| | Type | Description | Class CD | Sub Class CD | Year Built | Area |
| | MA | Main Area | 3 | MDBL | 1995 | 1620.0 |
| | MDECK | MH Deck | 4 | * | 1995 | 144.0 |
| | CARPTN | Carport W/O Floor | 3 | * | 1995 | 736.0 |
| | MRPO | MH Roof Porch | 4 | * | 1995 | 216.0 |
Sketch
Property Image
Land
| 1 | 2265-1184S | Lots in Churchill Tracts, Typically above Road | 0.0000 | 0.00 | 0.00 | 0.00 | 1.00 | $63,250 | $0 |
Roll Value History
| 2025 | N/A | N/A | N/A | N/A | N/A |
| 2024 | $122,261 | $63,250 | $0 | $185,511 | $45,267 |
| 2023 | $116,945 | $52,500 | $0 | $169,445 | $45,267 |
| 2022 | $106,314 | $45,000 | $0 | $151,314 | $45,267 |
| 2021 | $88,466 | $36,000 | $0 | $124,466 | $45,267 |
Deed and Sales History
| 1 | 07/11/2019 | QCD | Quit Claim Deed | PATRICIA BADIA JOHNSON | AARON W HARRISON | | | | 132770 | |
| 2 | 03/07/2017 | SWD | Statutory Warranty Deed | FRANCES V HORAN TRUSTEE | PATRICIA BADIA JOHNSON | | | $120,000.00 | 127307 | |
| 3 | 12/04/2000 | QCD | Quit Claim Deed | HORAN, RUSSELL/FRANCES | HORAN TRUSTEES, RUSSELL/FRANCE | 0 | 0 | $0.00 | 91180 | 0 |
Payout Agreement
| No payout information available.. |