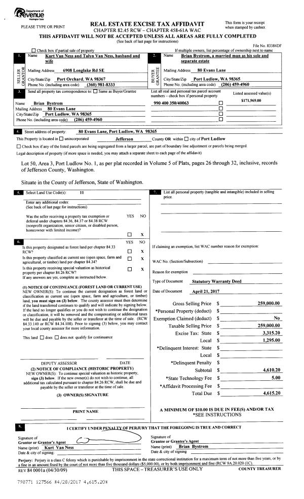
Property
Account |
| Property ID: | 15928 | Abbreviated Legal Description: | S33 T26 R1W TAX 136 TRACT 125 SUBJ TO EASE |
| Parcel # / Geo ID: | 601334131 | Agent Code: | |
| Type: | Real | | |
| Tax Area: | 0323 - 1-48F2E2P1H2C2L1 | Land Use Code | 91 |
| Open Space: | N | DFL | N |
| Historic Property: | N | Remodel Property: | N |
| Multi-Family Redevelopment: | N | | |
| Township: | 26N | Section: | 33 |
| Range: | 1W |
Location |
| Address: | | Mapsco: | 128/037 |
| Neighborhood: | CHURCHILL TRACTS S33 T26 R1W & S4 T25 R1W | Map ID: | |
| Neighborhood CD: | 2265 |
Owner |
| Name: | CHRISTOPHER EVANS | Owner ID: | 107034 |
| Mailing Address: | 171 FOX RD QUILCENE, WA 98376-9648 | % Ownership: | 100.0000000000% |
| | | Exemptions: | |
Pay Tax Due
There is currently No Amount Due on this property.
Taxes and Assessment Details
Property Tax Information as of
10/23/2025
Click on "Statement Details" to expand or collapse a tax statement.
* Please enter a valid date ** Please enter a valid date *
Statement Details |
| | TOTAL: | $0.00 | $0.00 | $0.00 | $0.00 | $0.00 | $0.00 |
|
| | $0.00 | $0.00 | $0.00 | $0.00 | $0.00 | $0.00 |
Values
| (+) Improvement Homesite Value: | + | $0 | |
| (+) Improvement Non-Homesite Value: | + | $0 | |
| (+) Land Homesite Value: | + | $0 | |
| (+) Land Non-Homesite Value: | + | $28,750 | |
| (+) Curr Use (HS): | + | $0 | $0 |
| (+) Curr Use (NHS): | + | $0 | $0 |
| | | -------------------------- | |
| (=) Market Value: | = | $28,750 | |
| (–) Productivity Loss: | – | $0 | |
| | | -------------------------- | |
| (=) Subtotal: | = | $28,750 | |
| (+) Senior Appraised Value: | + | $0 | |
| (+) Non-Senior Appraised Value: | + | $28,750 | |
| | | -------------------------- | |
| (=) Total Appraised Value: | = | $28,750 | |
| (–) Senior Exemption Loss: | – | $0 | |
| (–) Exemption Loss: | – | $0 | |
| | | -------------------------- | |
| (=) Taxable Value: | = | $28,750 | |
Taxing Jurisdiction
| Owner: | CHRISTOPHER EVANS | | |
| % Ownership: | 100.0000000000% | | |
| Total Value: | N/A | | |
| Tax Area: | 0323 - 1-48F2E2P1H2C2L1 |
| CE | COUNTY CURRENT EXPENSE | N/A | N/A | N/A | N/A | | |
| CNTYDD | DEVELOPMENTAL DISABILITIES | N/A | N/A | N/A | N/A | | |
| CNTYVET | VETERANS RELIEF | N/A | N/A | N/A | N/A | | |
| MENTAL | MENTAL HEALTH | N/A | N/A | N/A | N/A | | |
| ROADS | COUNTY ROADS | N/A | N/A | N/A | N/A | | |
| ROADSCU | COUNTY ROADS TO CUR EXP | N/A | N/A | N/A | N/A | | |
| HOSP2CASH | HOSP DIST #2 GENERAL | N/A | N/A | N/A | N/A | | |
| SCH48MO | SCHOOL DIST #48 EP & O | N/A | N/A | N/A | N/A | | |
| CEM2 | CEMETERY DIST #2 GENERAL | N/A | N/A | N/A | N/A | | |
| CONSERVE | CONSERVATION FUTURES | N/A | N/A | N/A | N/A | | |
| FD2 | FIRE DIST #2 GENERAL | N/A | N/A | N/A | N/A | | |
| LIB1 | LIBRARY DIST #1 GENERAL | N/A | N/A | N/A | N/A | | |
| PARK1 | PARK & REC DIST #1 GENERAL | N/A | N/A | N/A | N/A | | |
| PORTPT | PORT OF PT GENERAL | N/A | N/A | N/A | N/A | | |
| PORTPTIDD | PORT OF PT IDD 2019 | N/A | N/A | N/A | N/A | | |
| PUD1 | PUD #1 GENERAL | N/A | N/A | N/A | N/A | | |
| STATE | STATE SCHOOL PART 1 | N/A | N/A | N/A | N/A | | |
| STATE2 | STATE SCHOOL PART 2 | N/A | N/A | N/A | N/A | | |
| EMS2 | FIRE DIST #2 EMS | N/A | N/A | N/A | N/A | | |
| | Total Tax Rate: | N/A | | | | | |
| | | | | Taxes w/Current Exemptions: | N/A | | |
| | | | | Taxes w/o Exemptions: | N/A | | |
Improvement / Building
Sketch
| No sketches available for this property. |
Property Image
Land
| 1 | 2265-1184S | Lots in Churchill Tracts, Typically above Road | 0.0000 | 0.00 | 0.00 | 0.00 | 1.00 | $28,750 | $0 |
Roll Value History
| 2025 | N/A | N/A | N/A | N/A | N/A |
| 2024 | $0 | $28,750 | $0 | $28,750 | $28,750 |
| 2023 | $0 | $26,250 | $0 | $26,250 | $26,250 |
| 2022 | $0 | $25,000 | $0 | $25,000 | $25,000 |
| 2021 | $0 | $7,200 | $0 | $7,200 | $7,200 |
Deed and Sales History
| 1 | 05/05/2022 | SWD | Statutory Warranty Deed | ROBERT J & GAYLA Y RUBLE | CHRISTOPHER EVANS | | | $300,000.00 | 139166 | |
|   | |
| 2 | 08/10/2017 | SWD | Statutory Warranty Deed | CHARLES C VAN ZEE | ROBERT J & GAYLA Y RUBLE | | | $82,167.00 | 128329 | |
|   | |
| 3 | 01/08/2014 | SWD | Statutory Warranty Deed | ANDREW A OLIVAS | CHARLES C VAN ZEE | | | $70,000.00 | 0 | |
|   | |
| 4 | 05/01/2012 | QCD | Quit Claim Deed | MURPHY, GEARY | OLIVAS, ANDREW/WENDY | 0 | 0 | $0.00 | 117508 | 0 |
| 5 | 07/27/2010 | SWD | Statutory Warranty Deed | OLIVAS, ANDREW AWENDY A | MURPHY, GEARY S | | | $125,000.00 | 114689 | 0 |
| 6 | 11/15/2005 | SWD | Statutory Warranty Deed | ANDREWS, GLENN/RUBY E | OLIVAS, ANDREW A/WENDY A | 0 | 0 | $0.00 | 105386 | 0 |
Payout Agreement
| No payout information available.. |