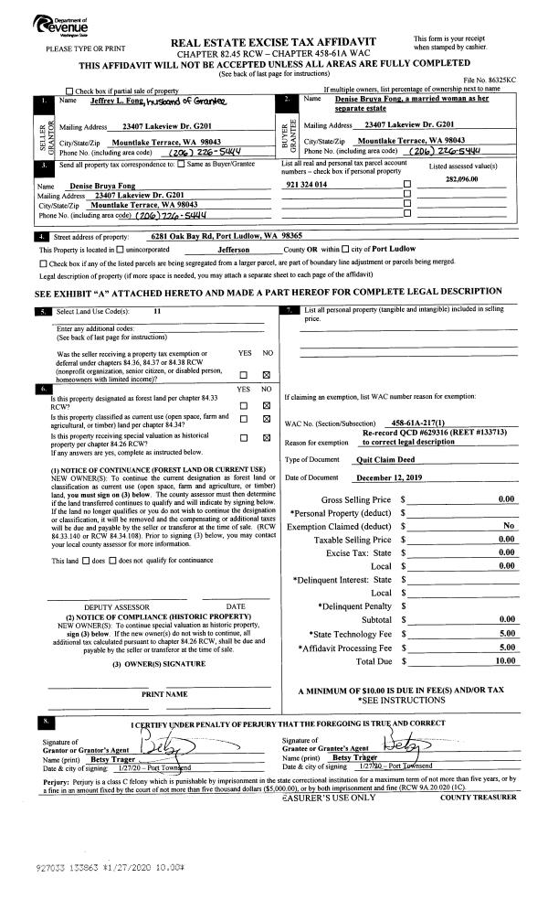
Property
Account |
| Property ID: | 15939 | Abbreviated Legal Description: | S33 T26 R1W TAX 147 & 148 |
| Parcel # / Geo ID: | 601334142 | Agent Code: | |
| Type: | Real | | |
| Tax Area: | 0323 - 1-48F2E2P1H2C2L1 | Land Use Code | 11 |
| Open Space: | N | DFL | N |
| Historic Property: | N | Remodel Property: | N |
| Multi-Family Redevelopment: | N | | |
| Township: | 26N | Section: | 33 |
| Range: | 1W |
Location |
| Address: | 81 OAK ST QUILCENE, WA 98376 | Mapsco: | 128/048 |
| Neighborhood: | CHURCHILL TRACTS S33 T26 R1W & S4 T25 R1W | Map ID: | |
| Neighborhood CD: | 2265 |
Owner |
| Name: | GERARD & CHERYL BOUTHILLIER | Owner ID: | 104659 |
| Mailing Address: | 81 OAK ST QUILCENE, WA 98376-9640 | % Ownership: | 100.0000000000% |
| | | Exemptions: | |
Pay Tax Due
There is currently No Amount Due on this property.
Taxes and Assessment Details
Property Tax Information as of
10/23/2025
Click on "Statement Details" to expand or collapse a tax statement.
* Please enter a valid date ** Please enter a valid date *
Statement Details |
| | TOTAL: | $0.00 | $0.00 | $0.00 | $0.00 | $0.00 | $0.00 |
|
| | $0.00 | $0.00 | $0.00 | $0.00 | $0.00 | $0.00 |
Values
| (+) Improvement Homesite Value: | + | $0 | |
| (+) Improvement Non-Homesite Value: | + | $110,621 | |
| (+) Land Homesite Value: | + | $0 | |
| (+) Land Non-Homesite Value: | + | $71,156 | |
| (+) Curr Use (HS): | + | $0 | $0 |
| (+) Curr Use (NHS): | + | $0 | $0 |
| | | -------------------------- | |
| (=) Market Value: | = | $181,777 | |
| (–) Productivity Loss: | – | $0 | |
| | | -------------------------- | |
| (=) Subtotal: | = | $181,777 | |
| (+) Senior Appraised Value: | + | $0 | |
| (+) Non-Senior Appraised Value: | + | $181,777 | |
| | | -------------------------- | |
| (=) Total Appraised Value: | = | $181,777 | |
| (–) Senior Exemption Loss: | – | $0 | |
| (–) Exemption Loss: | – | $0 | |
| | | -------------------------- | |
| (=) Taxable Value: | = | $181,777 | |
Taxing Jurisdiction
| Owner: | GERARD & CHERYL BOUTHILLIER | | |
| % Ownership: | 100.0000000000% | | |
| Total Value: | N/A | | |
| Tax Area: | 0323 - 1-48F2E2P1H2C2L1 |
| CE | COUNTY CURRENT EXPENSE | N/A | N/A | N/A | N/A | | |
| CNTYDD | DEVELOPMENTAL DISABILITIES | N/A | N/A | N/A | N/A | | |
| CNTYVET | VETERANS RELIEF | N/A | N/A | N/A | N/A | | |
| MENTAL | MENTAL HEALTH | N/A | N/A | N/A | N/A | | |
| ROADS | COUNTY ROADS | N/A | N/A | N/A | N/A | | |
| ROADSCU | COUNTY ROADS TO CUR EXP | N/A | N/A | N/A | N/A | | |
| HOSP2CASH | HOSP DIST #2 GENERAL | N/A | N/A | N/A | N/A | | |
| SCH48MO | SCHOOL DIST #48 EP & O | N/A | N/A | N/A | N/A | | |
| CEM2 | CEMETERY DIST #2 GENERAL | N/A | N/A | N/A | N/A | | |
| CONSERVE | CONSERVATION FUTURES | N/A | N/A | N/A | N/A | | |
| FD2 | FIRE DIST #2 GENERAL | N/A | N/A | N/A | N/A | | |
| LIB1 | LIBRARY DIST #1 GENERAL | N/A | N/A | N/A | N/A | | |
| PARK1 | PARK & REC DIST #1 GENERAL | N/A | N/A | N/A | N/A | | |
| PORTPT | PORT OF PT GENERAL | N/A | N/A | N/A | N/A | | |
| PORTPTIDD | PORT OF PT IDD 2019 | N/A | N/A | N/A | N/A | | |
| PUD1 | PUD #1 GENERAL | N/A | N/A | N/A | N/A | | |
| STATE | STATE SCHOOL PART 1 | N/A | N/A | N/A | N/A | | |
| STATE2 | STATE SCHOOL PART 2 | N/A | N/A | N/A | N/A | | |
| EMS2 | FIRE DIST #2 EMS | N/A | N/A | N/A | N/A | | |
| | Total Tax Rate: | N/A | | | | | |
| | | | | Taxes w/Current Exemptions: | N/A | | |
| | | | | Taxes w/o Exemptions: | N/A | | |
Improvement / Building
| Improvement #1: | Manufactured Home | State Code: | 11 | 1440.0 sqft | Value: | $110,621 |
| Bathrooms (#): | 2 (FULL) | Bedrooms (#): | 3 | | Exterior Wall: | SI/ST | Fireplace: | WD ST-AVG | | Floor Construction: | FRAME | Foundation: | PO&BL | | Heating/Cooling: | F/A | Roof Cover: | METAL |
|
| | Type | Description | Class CD | Sub Class CD | Year Built | Area |
| | MA | Main Area | 2 | MDBL | 1976 | 1440.0 |
| | MSKIRT_MTL | MH Skirting - Metal/Vinyl | 2 | * | 1976 | 168.0 |
| | MDECK | MH Deck | 1 | MDBL | 1976 | 216.0 |
| | MBSMTU | MH Basement Unfinished | 2 | MDBL | 1976 | 1440.0 |
| | OTHER | Other | 1 | * | 1976 | 0.0 |
Sketch
Property Image
Land
| 1 | 2265-1184S | Lots in Churchill Tracts, Typically above Road | 2.0000 | 87120.00 | 0.00 | 0.00 | 2.00 | $71,156 | $0 |
Roll Value History
| 2025 | N/A | N/A | N/A | N/A | N/A |
| 2024 | $106,012 | $71,156 | $0 | $177,168 | $177,168 |
| 2023 | $101,402 | $59,719 | $0 | $161,121 | $161,121 |
| 2022 | $92,184 | $51,875 | $0 | $144,059 | $144,059 |
| 2021 | $76,708 | $40,950 | $0 | $117,658 | $117,658 |
Deed and Sales History
| 1 | 04/22/2021 | SWD | Statutory Warranty Deed | TIM C MC KEE | GERARD & CHERYL BOUTHILLIER | | | $140,000.00 | 136612 | |
| 2 | 01/27/2007 | QCD | Quit Claim Deed | MC LAUGHLIN, ARLENE V | MC KEE, TIM C | | | $0.00 | 109317 | 0 |
| 3 | 12/03/2004 | SWD | Statutory Warranty Deed | DAVID R VINSON | MCKEE, T/MCLAUGHLIN, ARLENE | 0 | 0 | $25,000.00 | 102198 | 0 |
| 4 | 07/23/1998 | SWD | Statutory Warranty Deed | VINSON, DAVID J/EST | VINSON, DAVID/ET AL | 0 | 0 | $0.00 | 85210 | 0 |
Payout Agreement
| No payout information available.. |