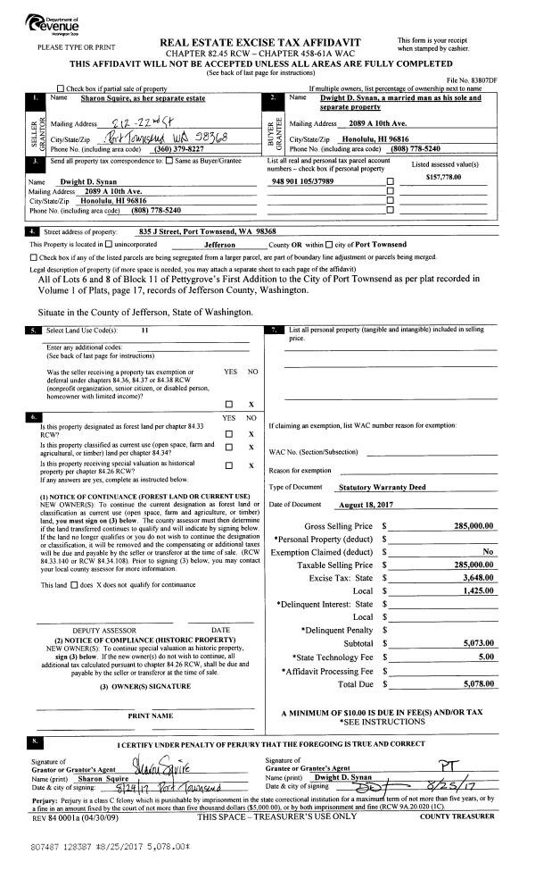
Property
Account |
| Property ID: | 16008 | Abbreviated Legal Description: | S33 T26 R1W TAX 222 TRACT 211 |
| Parcel # / Geo ID: | 601334226 | Agent Code: | |
| Type: | Real | | |
| Tax Area: | 0323 - 1-48F2E2P1H2C2L1 | Land Use Code | 11 |
| Open Space: | N | DFL | N |
| Historic Property: | N | Remodel Property: | N |
| Multi-Family Redevelopment: | N | | |
| Township: | 26N | Section: | 33 |
| Range: | 1W |
Location |
| Address: | 91 MAPLE ST QUILCENE, WA 98376 | Mapsco: | 130/022 |
| Neighborhood: | CHURCHILL TRACTS S33 T26 R1W & S4 T25 R1W | Map ID: | |
| Neighborhood CD: | 2265 |
Owner |
| Name: | CRAIG ALLEN | Owner ID: | 110876 |
| Mailing Address: | 91 MAPLE ST QUILCENE, WA 98376-9633 | % Ownership: | 100.0000000000% |
| | | Exemptions: | |
Pay Tax Due
There is currently No Amount Due on this property.
Taxes and Assessment Details
Property Tax Information as of
10/23/2025
Click on "Statement Details" to expand or collapse a tax statement.
* Please enter a valid date ** Please enter a valid date *
Statement Details |
| | TOTAL: | $0.00 | $0.00 | $0.00 | $0.00 | $0.00 | $0.00 |
|
| | $0.00 | $0.00 | $0.00 | $0.00 | $0.00 | $0.00 |
Values
| (+) Improvement Homesite Value: | + | $97,897 | |
| (+) Improvement Non-Homesite Value: | + | $0 | |
| (+) Land Homesite Value: | + | $63,250 | |
| (+) Land Non-Homesite Value: | + | $0 | |
| (+) Curr Use (HS): | + | $0 | $0 |
| (+) Curr Use (NHS): | + | $0 | $0 |
| | | -------------------------- | |
| (=) Market Value: | = | $161,147 | |
| (–) Productivity Loss: | – | $0 | |
| | | -------------------------- | |
| (=) Subtotal: | = | $161,147 | |
| (+) Senior Appraised Value: | + | $0 | |
| (+) Non-Senior Appraised Value: | + | $161,147 | |
| | | -------------------------- | |
| (=) Total Appraised Value: | = | $161,147 | |
| (–) Senior Exemption Loss: | – | $0 | |
| (–) Exemption Loss: | – | $0 | |
| | | -------------------------- | |
| (=) Taxable Value: | = | $161,147 | |
Taxing Jurisdiction
| Owner: | CRAIG ALLEN | | |
| % Ownership: | 100.0000000000% | | |
| Total Value: | N/A | | |
| Tax Area: | 0323 - 1-48F2E2P1H2C2L1 |
| CE | COUNTY CURRENT EXPENSE | N/A | N/A | N/A | N/A | | |
| CNTYDD | DEVELOPMENTAL DISABILITIES | N/A | N/A | N/A | N/A | | |
| CNTYVET | VETERANS RELIEF | N/A | N/A | N/A | N/A | | |
| MENTAL | MENTAL HEALTH | N/A | N/A | N/A | N/A | | |
| ROADS | COUNTY ROADS | N/A | N/A | N/A | N/A | | |
| ROADSCU | COUNTY ROADS TO CUR EXP | N/A | N/A | N/A | N/A | | |
| HOSP2CASH | HOSP DIST #2 GENERAL | N/A | N/A | N/A | N/A | | |
| SCH48MO | SCHOOL DIST #48 EP & O | N/A | N/A | N/A | N/A | | |
| CEM2 | CEMETERY DIST #2 GENERAL | N/A | N/A | N/A | N/A | | |
| CONSERVE | CONSERVATION FUTURES | N/A | N/A | N/A | N/A | | |
| FD2 | FIRE DIST #2 GENERAL | N/A | N/A | N/A | N/A | | |
| LIB1 | LIBRARY DIST #1 GENERAL | N/A | N/A | N/A | N/A | | |
| PARK1 | PARK & REC DIST #1 GENERAL | N/A | N/A | N/A | N/A | | |
| PORTPT | PORT OF PT GENERAL | N/A | N/A | N/A | N/A | | |
| PORTPTIDD | PORT OF PT IDD 2019 | N/A | N/A | N/A | N/A | | |
| PUD1 | PUD #1 GENERAL | N/A | N/A | N/A | N/A | | |
| STATE | STATE SCHOOL PART 1 | N/A | N/A | N/A | N/A | | |
| STATE2 | STATE SCHOOL PART 2 | N/A | N/A | N/A | N/A | | |
| EMS2 | FIRE DIST #2 EMS | N/A | N/A | N/A | N/A | | |
| | Total Tax Rate: | N/A | | | | | |
| | | | | Taxes w/Current Exemptions: | N/A | | |
| | | | | Taxes w/o Exemptions: | N/A | | |
Improvement / Building
| Improvement #1: | Manufactured Home | State Code: | 11 | 1152.0 sqft | Value: | $97,897 |
| Bathrooms (#): | 2 (FULL) | Bedrooms (#): | 2 | | Exterior Wall: | SI/ST | Floor Construction: | FRAME | | Foundation: | PO&BL | Heating/Cooling: | F/A | | Inside Verify: | YES-FIX | Roof Cover: | COMP |
|
| | Type | Description | Class CD | Sub Class CD | Year Built | Area |
| | MA | Main Area | 3- | MDBL | 1978 | 1152.0 |
| | MWPOR | MH Wood Porch | 3 | * | 1978 | 372.0 |
| | MENCL | MH Enclosure | 3 | * | 1978 | 330.0 |
| | MSKIRT_WD | MH Skirting - Wood | 3 | * | 1978 | 144.0 |
| | MBSMTU | MH Basement Unfinished | 2 | * | 1978 | 1104.0 |
Sketch
Property Image
Land
| 1 | 2265-1184S | Lots in Churchill Tracts, Typically above Road | 0.0000 | 0.00 | 0.00 | 0.00 | 1.00 | $63,250 | $0 |
Roll Value History
| 2025 | N/A | N/A | N/A | N/A | N/A |
| 2024 | $93,818 | $63,250 | $0 | $157,068 | $157,068 |
| 2023 | $89,739 | $52,500 | $0 | $142,239 | $50,632 |
| 2022 | $81,581 | $45,000 | $0 | $126,581 | $50,632 |
| 2021 | $67,885 | $36,000 | $0 | $103,885 | $0 |
Deed and Sales History
| 1 | 05/24/2024 | SWD | Statutory Warranty Deed | BILLY M & JEANNIE A WOODWARD | CRAIG ALLEN | | | $211,000.00 | 142649 | |
| 2 | 07/16/2018 | SWD | Statutory Warranty Deed | SHERYL J WOLOVER | BILLY M & JEANNIE A WOODWARD | | | $119,000.00 | 130603 | |
| 3 | 03/17/2017 | SWD | Statutory Warranty Deed | GLENN ANDREWS TRSTEE | SHERYL J WOLOVER | | | $60,000.00 | 127349 | |
| 4 | 10/24/2012 | QCD | Quit Claim Deed | ANDREWS, GLENN/RUBY E | ANDREWS, GLENN/RUBY FAMILY TRU | 0 | 0 | $0.00 | 118277 | 0 |
Payout Agreement
| No payout information available.. |