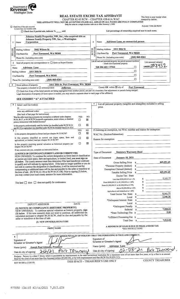
Property
Account |
| Property ID: | 16011 | Abbreviated Legal Description: | S33 T26 R1W TAX 225 TRACT 214 |
| Parcel # / Geo ID: | 601334229 | Agent Code: | |
| Type: | Real | | |
| Tax Area: | 0323 - 1-48F2E2P1H2C2L1 | Land Use Code | 11 |
| Open Space: | N | DFL | N |
| Historic Property: | N | Remodel Property: | N |
| Multi-Family Redevelopment: | N | | |
| Township: | 26N | Section: | 33 |
| Range: | 1W |
Location |
| Address: | 44 DEER RD QUILCENE, WA 98376 | Mapsco: | 130/025 |
| Neighborhood: | CHURCHILL TRACTS S33 T26 R1W & S4 T25 R1W | Map ID: | |
| Neighborhood CD: | 2265 |
Owner |
| Name: | ERVIN H WASSER | Owner ID: | 29949 |
| Mailing Address: | 44 DEER RD QUILCENE, WA 98376-9657 | % Ownership: | 100.0000000000% |
| | | Exemptions: | SNR/DSBL |
Pay Tax Due
There is currently No Amount Due on this property.
Taxes and Assessment Details
Property Tax Information as of
10/23/2025
Click on "Statement Details" to expand or collapse a tax statement.
* Please enter a valid date ** Please enter a valid date *
Statement Details |
| | TOTAL: | $0.00 | $0.00 | $0.00 | $0.00 | $0.00 | $0.00 |
|
| | $0.00 | $0.00 | $0.00 | $0.00 | $0.00 | $0.00 |
Values
| (+) Improvement Homesite Value: | + | $179,624 | |
| (+) Improvement Non-Homesite Value: | + | $0 | |
| (+) Land Homesite Value: | + | $63,250 | |
| (+) Land Non-Homesite Value: | + | $0 | |
| (+) Curr Use (HS): | + | $0 | $0 |
| (+) Curr Use (NHS): | + | $0 | $0 |
| | | -------------------------- | |
| (=) Market Value: | = | $242,874 | |
| (–) Productivity Loss: | – | $0 | |
| | | -------------------------- | |
| (=) Subtotal: | = | $242,874 | |
| (+) Senior Appraised Value: | + | $194,687 | |
| (+) Non-Senior Appraised Value: | + | $0 | |
| | | -------------------------- | |
| (=) Total Appraised Value: | = | $194,687 | |
| (–) Senior Exemption Loss: | – | $116,812 | |
| (–) Exemption Loss: | – | $0 | |
| | | -------------------------- | |
| (=) Taxable Value: | = | $77,875 | |
Taxing Jurisdiction
| Owner: | ERVIN H WASSER | | |
| % Ownership: | 100.0000000000% | | |
| Total Value: | N/A | | |
| Tax Area: | 0323 - 1-48F2E2P1H2C2L1 |
| CE | COUNTY CURRENT EXPENSE | N/A | N/A | N/A | N/A | | |
| CNTYDD | DEVELOPMENTAL DISABILITIES | N/A | N/A | N/A | N/A | | |
| CNTYVET | VETERANS RELIEF | N/A | N/A | N/A | N/A | | |
| MENTAL | MENTAL HEALTH | N/A | N/A | N/A | N/A | | |
| ROADS | COUNTY ROADS | N/A | N/A | N/A | N/A | | |
| ROADSCU | COUNTY ROADS TO CUR EXP | N/A | N/A | N/A | N/A | | |
| HOSP2CASH | HOSP DIST #2 GENERAL | N/A | N/A | N/A | N/A | | |
| SCH48MO | SCHOOL DIST #48 EP & O | N/A | N/A | N/A | N/A | | |
| CEM2 | CEMETERY DIST #2 GENERAL | N/A | N/A | N/A | N/A | | |
| CONSERVE | CONSERVATION FUTURES | N/A | N/A | N/A | N/A | | |
| FD2 | FIRE DIST #2 GENERAL | N/A | N/A | N/A | N/A | | |
| LIB1 | LIBRARY DIST #1 GENERAL | N/A | N/A | N/A | N/A | | |
| PARK1 | PARK & REC DIST #1 GENERAL | N/A | N/A | N/A | N/A | | |
| PORTPT | PORT OF PT GENERAL | N/A | N/A | N/A | N/A | | |
| PORTPTIDD | PORT OF PT IDD 2019 | N/A | N/A | N/A | N/A | | |
| PUD1 | PUD #1 GENERAL | N/A | N/A | N/A | N/A | | |
| STATE | STATE SCHOOL PART 1 | N/A | N/A | N/A | N/A | | |
| STATE2 | STATE SCHOOL PART 2 | N/A | N/A | N/A | N/A | | |
| EMS2 | FIRE DIST #2 EMS | N/A | N/A | N/A | N/A | | |
| | Total Tax Rate: | N/A | | | | | |
| | | | | Taxes w/Current Exemptions: | N/A | | |
| | | | | Taxes w/o Exemptions: | N/A | | |
Improvement / Building
| Improvement #1: | Residential Bldg | State Code: | 11 | 892.0 sqft | Value: | $179,624 |
| Bathrooms (#): | 1 (FULL) | Bedrooms (#): | 2 | | Exterior Wall: | PL/T1 | Fireplace: | PROPS-GOOD | | Floor Construction: | FRAME | Foundation: | CONPR | | Heating/Cooling: | ELBB | Roof Cover: | COMP |
|
| | Type | Description | Class CD | Sub Class CD | Year Built | Area |
| | MA | Main Area | 3 | 1S | 2016 | 892.0 |
| | HDECK | House Deck | 3 | * | 2016 | 157.0 |
| | SHED | Shed (Table Not Dep) | 3 | 1S | 2016 | 220.0 |
Sketch
Property Image
Land
| 1 | 2265-1184S | Lots in Churchill Tracts, Typically above Road | 0.0000 | 0.00 | 0.00 | 0.00 | 1.00 | $63,250 | $0 |
Roll Value History
| 2025 | N/A | N/A | N/A | N/A | N/A |
| 2024 | $172,140 | $63,250 | $0 | $235,390 | $77,875 |
| 2023 | $164,656 | $52,500 | $0 | $217,156 | $77,875 |
| 2022 | $149,687 | $45,000 | $0 | $194,687 | $77,875 |
| 2021 | $82,223 | $36,000 | $0 | $118,223 | $118,223 |
Deed and Sales History
| 1 | 11/02/2021 | QCD | Quit Claim Deed | JOHN A & GAIL S NELSON | ERVIN H WASSER | | | | 138041 | |
| 2 | 05/02/2016 | QCD | Quit Claim Deed | | | | | | 125756 | |
| 3 | 10/25/2012 | REC | Real Estate Contract | | | | | | 120711 | |
| 4 | 10/25/2012 | REC | Real Estate Contract | JOHNSTON, WADE R/LISA A | WASSER, ERVIN A | 0 | 0 | $50,000.00 | 118254 | 0 |
|   | |
| 5 | 08/07/2002 | SWD | Statutory Warranty Deed | SANDRA J KLOTZ | JOHNSTON, WADE/LISA | 0 | 0 | $5,000.00 | 95392 | 0 |
|   | |
| 6 | 01/05/2001 | REC | Real Estate Contract | BROWNE ROGER W/LINDA L | KLOTZ, SANDRA | 0 | 0 | $9,000.00 | 91432 | 0 |
| 7 | 08/10/1994 | SWD | Statutory Warranty Deed | LONG, JAMES W/EDNA | BROWNE, ROGER W/LINDA L | 0 | 0 | $7,000.00 | 74876 | 0 |
Payout Agreement
| No payout information available.. |