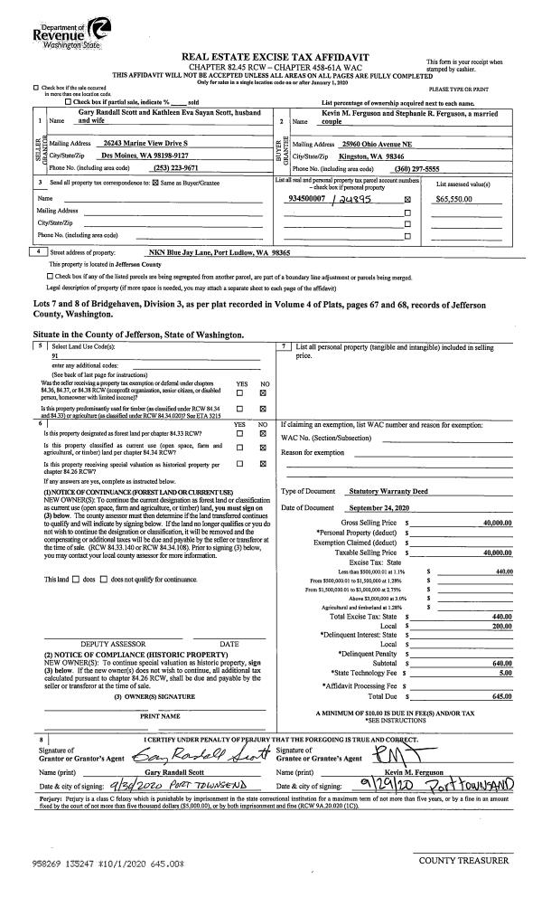
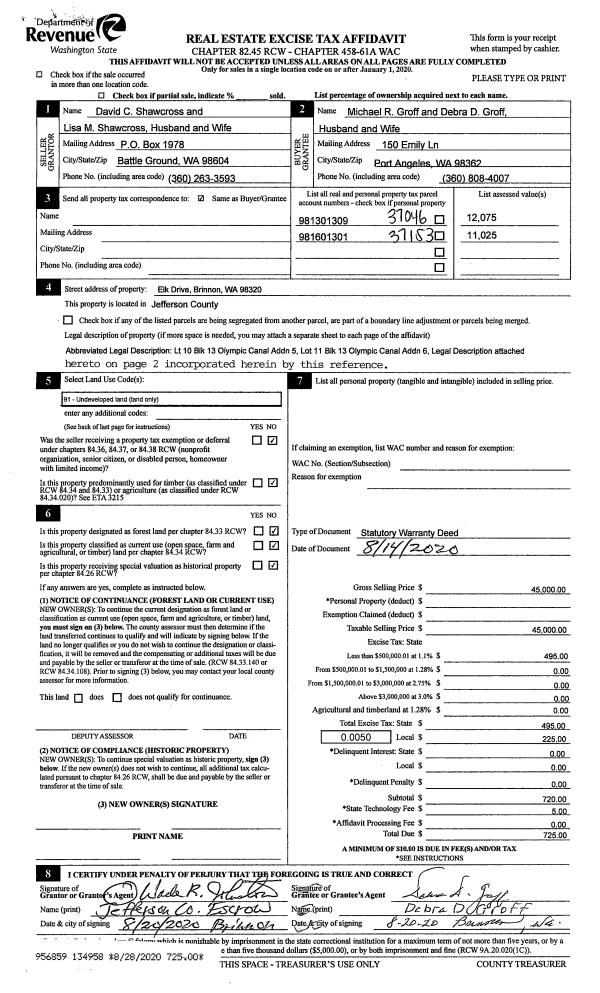
Property
Account |
| Property ID: | 16074 | Abbreviated Legal Description: | S34 T26 R1W TAX 61 |
| Parcel # / Geo ID: | 601342025 | Agent Code: | |
| Type: | Real | | |
| Tax Area: | 0323 - 1-48F2E2P1H2C2L1 | Land Use Code | 11 |
| Open Space: | N | DFL | N |
| Historic Property: | N | Remodel Property: | N |
| Multi-Family Redevelopment: | N | | |
| Township: | 26N | Section: | 34 |
| Range: | 1W |
Location |
| Address: | 13525 COYLE RD QUILCENE, WA 98376 | Mapsco: | 133/023 |
| Neighborhood: | S34 & S35 T26N R1W & SEXAUER SHORT PLAT | Map ID: | |
| Neighborhood CD: | 2267 |
Owner |
| Name: | POULSBO WOODLANDS LLC | Owner ID: | 104309 |
| Mailing Address: | 13527 COYLE RD QUILCENE, WA 98376-9635 | % Ownership: | 100.0000000000% |
| | | Exemptions: | |
Pay Tax Due
There is currently No Amount Due on this property.
Taxes and Assessment Details
Property Tax Information as of
10/23/2025
Click on "Statement Details" to expand or collapse a tax statement.
* Please enter a valid date ** Please enter a valid date *
Statement Details |
| | TOTAL: | $0.00 | $0.00 | $0.00 | $0.00 | $0.00 | $0.00 |
|
| | $0.00 | $0.00 | $0.00 | $0.00 | $0.00 | $0.00 |
Values
| (+) Improvement Homesite Value: | + | $0 | |
| (+) Improvement Non-Homesite Value: | + | $300,296 | |
| (+) Land Homesite Value: | + | $0 | |
| (+) Land Non-Homesite Value: | + | $97,750 | |
| (+) Curr Use (HS): | + | $0 | $0 |
| (+) Curr Use (NHS): | + | $0 | $0 |
| | | -------------------------- | |
| (=) Market Value: | = | $398,046 | |
| (–) Productivity Loss: | – | $0 | |
| | | -------------------------- | |
| (=) Subtotal: | = | $398,046 | |
| (+) Senior Appraised Value: | + | $0 | |
| (+) Non-Senior Appraised Value: | + | $398,046 | |
| | | -------------------------- | |
| (=) Total Appraised Value: | = | $398,046 | |
| (–) Senior Exemption Loss: | – | $0 | |
| (–) Exemption Loss: | – | $0 | |
| | | -------------------------- | |
| (=) Taxable Value: | = | $398,046 | |
Taxing Jurisdiction
| Owner: | POULSBO WOODLANDS LLC | | |
| % Ownership: | 100.0000000000% | | |
| Total Value: | N/A | | |
| Tax Area: | 0323 - 1-48F2E2P1H2C2L1 |
| CE | COUNTY CURRENT EXPENSE | N/A | N/A | N/A | N/A | | |
| CNTYDD | DEVELOPMENTAL DISABILITIES | N/A | N/A | N/A | N/A | | |
| CNTYVET | VETERANS RELIEF | N/A | N/A | N/A | N/A | | |
| MENTAL | MENTAL HEALTH | N/A | N/A | N/A | N/A | | |
| ROADS | COUNTY ROADS | N/A | N/A | N/A | N/A | | |
| ROADSCU | COUNTY ROADS TO CUR EXP | N/A | N/A | N/A | N/A | | |
| HOSP2CASH | HOSP DIST #2 GENERAL | N/A | N/A | N/A | N/A | | |
| SCH48MO | SCHOOL DIST #48 EP & O | N/A | N/A | N/A | N/A | | |
| CEM2 | CEMETERY DIST #2 GENERAL | N/A | N/A | N/A | N/A | | |
| CONSERVE | CONSERVATION FUTURES | N/A | N/A | N/A | N/A | | |
| FD2 | FIRE DIST #2 GENERAL | N/A | N/A | N/A | N/A | | |
| LIB1 | LIBRARY DIST #1 GENERAL | N/A | N/A | N/A | N/A | | |
| PARK1 | PARK & REC DIST #1 GENERAL | N/A | N/A | N/A | N/A | | |
| PORTPT | PORT OF PT GENERAL | N/A | N/A | N/A | N/A | | |
| PORTPTIDD | PORT OF PT IDD 2019 | N/A | N/A | N/A | N/A | | |
| PUD1 | PUD #1 GENERAL | N/A | N/A | N/A | N/A | | |
| STATE | STATE SCHOOL PART 1 | N/A | N/A | N/A | N/A | | |
| STATE2 | STATE SCHOOL PART 2 | N/A | N/A | N/A | N/A | | |
| EMS2 | FIRE DIST #2 EMS | N/A | N/A | N/A | N/A | | |
| | Total Tax Rate: | N/A | | | | | |
| | | | | Taxes w/Current Exemptions: | N/A | | |
| | | | | Taxes w/o Exemptions: | N/A | | |
Improvement / Building
| Improvement #1: | Residential Bldg | State Code: | 11 | 1607.0 sqft | Value: | $255,686 |
| Bathrooms (#): | 2 (FULL) | Bedrooms (#): | 1 | | Exterior Wall: | SI/ST | Fireplace: | WD ST-GOOD | | Floor Construction: | FRAME | Foundation: | CONPR | | Heating/Cooling: | HPUMP | Inside Verify: | YES-FIX | | Roof Cover: | METAL |   |   |
|
| | Type | Description | Class CD | Sub Class CD | Year Built | Area |
| | MA | Main Area | 3 | 2S | 1995 | 727.0 |
| | MA2 | Second Floor Main Area | 3 | 2S | 1995 | 480.0 |
| | MA3 | Third Floor Main Area | 3 | 2S | 1995 | 400.0 |
| | HWPOR | House Wood Porch | 3 | 2S | 1995 | 80.0 |
| | HDECK | House Deck | 3 | 2S | 1995 | 688.0 |
| | SHED | Shed (Table Not Dep) | 3 | 2S | 1995 | 432.0 |
| Improvement #2: | Residential Bldg | State Code: | 11 | 1070.0 sqft | Value: | $44,610 |
| Exterior Wall: | PL/T1 | Floor Construction: | FRAME | | Foundation: | PO&BL | Interior Finish: | FIN | | Roof Cover: | METAL |   |   |
|
| | Type | Description | Class CD | Sub Class CD | Year Built | Area |
| | MA | Main Area | 3- | C15F | 0 | 630.0 |
| | MA2 | Second Floor Main Area | 3- | C15F | 0 | 440.0 |
| | CWPOR | Cabin Wood Porch | 2 | C15F | 0 | 88.0 |
| | CDECK | Cabin Deck | 2 | C15F | 0 | 38.0 |
Sketch
Property Image
Land
| 1 | 2267-1355S | Avg View Sites of Hood Cnl/Dabob 1+/- Acre | 1.0000 | 43560.00 | 0.00 | 0.00 | 1.00 | $97,750 | $0 |
Roll Value History
| 2025 | N/A | N/A | N/A | N/A | N/A |
| 2024 | $287,784 | $97,750 | $0 | $385,534 | $385,534 |
| 2023 | $275,272 | $84,000 | $0 | $359,272 | $359,272 |
| 2022 | $250,247 | $75,000 | $0 | $325,247 | $325,247 |
| 2021 | $209,709 | $66,000 | $0 | $275,709 | $275,709 |
Deed and Sales History
| 1 | 03/08/2021 | QCD | Quit Claim Deed | LORI JACOBSON | POULSBO WOODLANDS LLC | | | | 136261 | |
| 2 | 11/13/2020 | QCD | Quit Claim Deed | ROBERT H JACOBSON TRSTEE | LORI JACOBSON | | | | 135923 | |
Payout Agreement
| No payout information available.. |