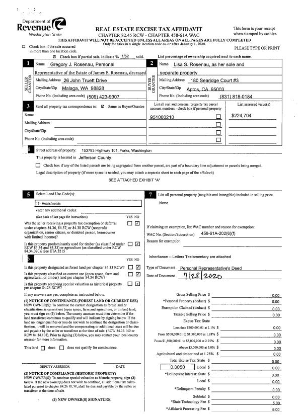
Property
Account |
| Property ID: | 16129 | Abbreviated Legal Description: | SEXAUER SHORT PLAT LOT 2 & TL FRTG(1.51CH) |
| Parcel # / Geo ID: | 601354009 | Agent Code: | |
| Type: | Real | | |
| Tax Area: | 0323 - 1-48F2E2P1H2C2L1 | Land Use Code | 11 |
| Open Space: | N | DFL | N |
| Historic Property: | N | Remodel Property: | N |
| Multi-Family Redevelopment: | N | | |
| Township: | 26N | Section: | 35 |
| Range: | 1W |
Location |
| Address: | 35 TURNAGAIN LN QUILCENE, WA 98376 | Mapsco: | 179/101 |
| Neighborhood: | S34 & S35 T26N R1W & SEXAUER SHORT PLAT | Map ID: | |
| Neighborhood CD: | 2267 |
Owner |
| Name: | DANA M LA FAVOUR | Owner ID: | 20277 |
| Mailing Address: | CECELIA M LA FAVOUR 609 CANYON VIEW DR BELLINGHAM, WA 98225-7855 | % Ownership: | 100.0000000000% |
| | | Exemptions: | |
Pay Tax Due
There is currently No Amount Due on this property.
Taxes and Assessment Details
Property Tax Information as of
10/23/2025
Click on "Statement Details" to expand or collapse a tax statement.
* Please enter a valid date ** Please enter a valid date *
Statement Details |
| | TOTAL: | $0.00 | $0.00 | $0.00 | $0.00 | $0.00 | $0.00 |
|
| | $0.00 | $0.00 | $0.00 | $0.00 | $0.00 | $0.00 |
Values
| (+) Improvement Homesite Value: | + | $0 | |
| (+) Improvement Non-Homesite Value: | + | $613,594 | |
| (+) Land Homesite Value: | + | $0 | |
| (+) Land Non-Homesite Value: | + | $190,110 | |
| (+) Curr Use (HS): | + | $0 | $0 |
| (+) Curr Use (NHS): | + | $0 | $0 |
| | | -------------------------- | |
| (=) Market Value: | = | $803,704 | |
| (–) Productivity Loss: | – | $0 | |
| | | -------------------------- | |
| (=) Subtotal: | = | $803,704 | |
| (+) Senior Appraised Value: | + | $0 | |
| (+) Non-Senior Appraised Value: | + | $803,704 | |
| | | -------------------------- | |
| (=) Total Appraised Value: | = | $803,704 | |
| (–) Senior Exemption Loss: | – | $0 | |
| (–) Exemption Loss: | – | $0 | |
| | | -------------------------- | |
| (=) Taxable Value: | = | $803,704 | |
Taxing Jurisdiction
| Owner: | DANA M LA FAVOUR | | |
| % Ownership: | 100.0000000000% | | |
| Total Value: | N/A | | |
| Tax Area: | 0323 - 1-48F2E2P1H2C2L1 |
| CE | COUNTY CURRENT EXPENSE | N/A | N/A | N/A | N/A | | |
| CNTYDD | DEVELOPMENTAL DISABILITIES | N/A | N/A | N/A | N/A | | |
| CNTYVET | VETERANS RELIEF | N/A | N/A | N/A | N/A | | |
| MENTAL | MENTAL HEALTH | N/A | N/A | N/A | N/A | | |
| ROADS | COUNTY ROADS | N/A | N/A | N/A | N/A | | |
| ROADSCU | COUNTY ROADS TO CUR EXP | N/A | N/A | N/A | N/A | | |
| HOSP2CASH | HOSP DIST #2 GENERAL | N/A | N/A | N/A | N/A | | |
| SCH48MO | SCHOOL DIST #48 EP & O | N/A | N/A | N/A | N/A | | |
| CEM2 | CEMETERY DIST #2 GENERAL | N/A | N/A | N/A | N/A | | |
| CONSERVE | CONSERVATION FUTURES | N/A | N/A | N/A | N/A | | |
| FD2 | FIRE DIST #2 GENERAL | N/A | N/A | N/A | N/A | | |
| LIB1 | LIBRARY DIST #1 GENERAL | N/A | N/A | N/A | N/A | | |
| PARK1 | PARK & REC DIST #1 GENERAL | N/A | N/A | N/A | N/A | | |
| PORTPT | PORT OF PT GENERAL | N/A | N/A | N/A | N/A | | |
| PORTPTIDD | PORT OF PT IDD 2019 | N/A | N/A | N/A | N/A | | |
| PUD1 | PUD #1 GENERAL | N/A | N/A | N/A | N/A | | |
| STATE | STATE SCHOOL PART 1 | N/A | N/A | N/A | N/A | | |
| STATE2 | STATE SCHOOL PART 2 | N/A | N/A | N/A | N/A | | |
| EMS2 | FIRE DIST #2 EMS | N/A | N/A | N/A | N/A | | |
| | Total Tax Rate: | N/A | | | | | |
| | | | | Taxes w/Current Exemptions: | N/A | | |
| | | | | Taxes w/o Exemptions: | N/A | | |
Improvement / Building
| Improvement #1: | Residential Bldg | State Code: | 11 | 2813.0 sqft | Value: | $613,594 |
| Bathrooms (#): | 2 (FULL) | Bedrooms (#): | 2 | | Exterior Wall: | SI/ST | Fireplace: | WD ST-GOOD | | Floor Construction: | FRAME | Foundation: | CONPR | | Heating/Cooling: | F/A | Roof Cover: | METAL |
|
| | Type | Description | Class CD | Sub Class CD | Year Built | Area |
| | MA | Main Area | 4 | 2S | 2015 | 1999.0 |
| | MA2 | Second Floor Main Area | 4 | 2S | 2015 | 814.0 |
| | HDECK | House Deck | 4 | * | 2015 | 470.0 |
| | HWPOR | House Wood Porch | 4 | * | 2015 | 340.0 |
| | OTHER | Other | 4 | * | 2015 | 0.0 |
| | SHED | Shed (Table Not Dep) | 2 | * | 2015 | 0.0 |
Sketch
Property Image
Land
| 1 | 2267-1525F | Med/High Bank Wtrfrt W/Good Access/Topo/Utility | 0.0000 | 0.00 | 0.00 | 0.00 | 0.00 | $187,235 | $0 |
| 2 | 9301F | Tidelands | 0.0000 | 0.00 | 0.00 | 0.00 | 0.00 | $2,875 | $0 |
Roll Value History
| 2025 | N/A | N/A | N/A | N/A | N/A |
| 2024 | $588,027 | $190,110 | $0 | $778,137 | $778,137 |
| 2023 | $562,461 | $168,329 | $0 | $730,790 | $730,790 |
| 2022 | $511,328 | $155,313 | $0 | $666,641 | $666,641 |
| 2021 | $425,486 | $135,150 | $0 | $560,636 | $560,636 |
Deed and Sales History
| 1 | 08/29/2008 | SWD | Statutory Warranty Deed | HANSEN, DONALD L/VIRGINIA | LAFAVOUR, DANA/CECELIA | 0 | 0 | $150,000.00 | 111843 | 0 |
Payout Agreement
| No payout information available.. |