| 1 | 09/14/2015 | SWD | Statutory Warranty Deed | ECOTRUST FORESTS II LLC | STATE OF WASHINGTON-DNR | | | $3,960,000.00 | 123943 | |
|   | |
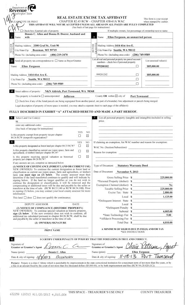
| 2 | 12/06/2013 | SWD | Statutory Warranty Deed | | | | | | 120414 | |
| 3 | 12/04/2013 | SWD | Statutory Warranty Deed | TIMBERLANDS HOLDING COMPANY WASHINGTON INC | TRUST FOR PUBLIC LAND | | | $3,250,000.00 | 120413 | |
|   | |
| 4 | 08/04/2013 | BSD | Bargain and Sale Deed | RAYONIER FOREST RESOURCES LP | TIMBERLANDS HOLDING COMPANY WASHINGTON INC | | | | 119758 | |
| 5 | 08/02/2013 | SWD | Statutory Warranty Deed | | | | | | 120093 | |
| 6 | 03/22/2007 | SPWD | Special Warranty Deed | RAYONIER FOREST RESOURCES | STATE OF WASH DEPT OF TRANSP | | | $0.00 | 108924 | 0 |
| 7 | 06/23/2006 | QCD | Quit Claim Deed | EPC HOLDINGS RAYONIER ANE | RAYONIER FOREST RESOURCES, L.P | | | $0.00 | 107120 | 0 |
| 8 | 09/29/2005 | SPWD | Special Warranty Deed | A N E FORESTS PUGET SOUN | RAYONIER FOREST RESOURCES L P | 0 | 0 | $0.00 | 104998 | 0 |
| 9 | 09/29/2005 | SPWD | Special Warranty Deed | A N E FORESTS PUGET SOUN | EPC HOLDINGS RAYONIER ANE FORE | 0 | 0 | $0.00 | 105002 | 0 |
| 10 | 09/16/2002 | EASE | Assignment of Easement | A N E FORESTS PUGET SOUN | UNITED STATES OF AMERICA, DEPT | 0 | 0 | $4,250.00 | 95587 | 0 |
| 11 | 05/15/1996 | QCD | Quit Claim Deed | HANSON NATURAL RESOURCES/ | CROWN PACIFIC LIMITED PRTNSHP | 0 | 0 | $0.00 | 79460 | 0 |