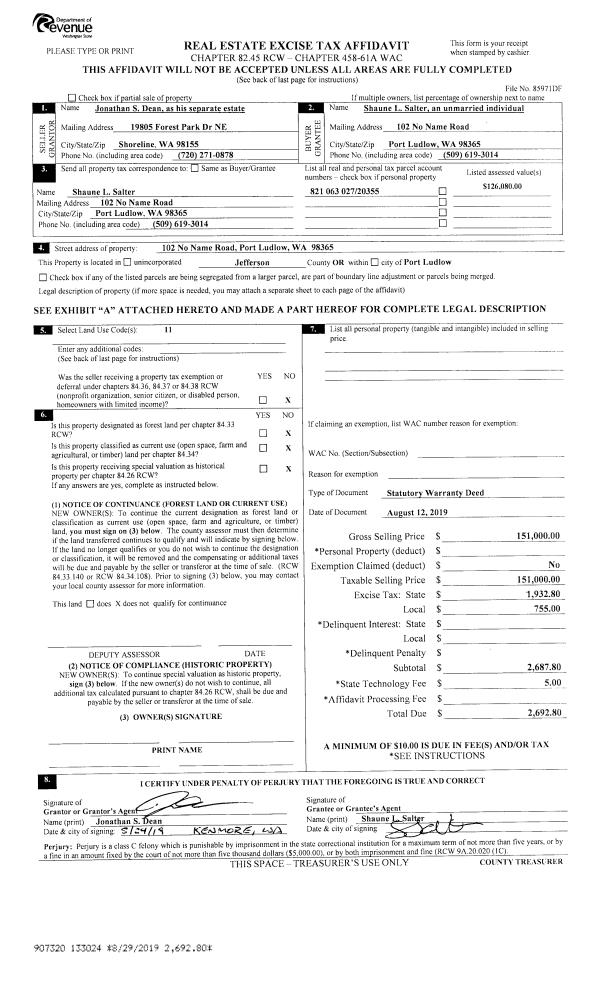
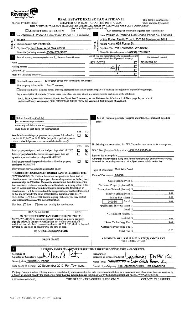
Property
Account |
| Property ID: | 16222 | Abbreviated Legal Description: | S14 T26 R2W-TAX 2 LOT CERT MLA21-00110 AF#650157 PARCEL B SURVEY V35/P265 |
| Parcel # / Geo ID: | 602141001 | Agent Code: | |
| Type: | Real | | |
| Tax Area: | 0441 - 1-46F4E4H2C1L1P2 | Land Use Code | 11 |
| Open Space: | N | DFL | N |
| Historic Property: | N | Remodel Property: | N |
| Multi-Family Redevelopment: | N | | |
| Township: | 26N | Section: | 14 |
| Range: | 2W |
Location |
| Address: | 302254 HIGHWAY 101 302258 BRINNON, WA 98320 | Mapsco: | 050/051A |
| Neighborhood: | S14 THROUGH S23 T26N R2W & BRINNON R.V. PARK & DISHERS S.P. | Map ID: | |
| Neighborhood CD: | 1320 |
Owner |
| Name: | LISA J HAMES | Owner ID: | 106364 |
| Mailing Address: | P O BOX 272 QUILCENE, WA 98376-0272 | % Ownership: | 100.0000000000% |
| | | Exemptions: | |
Pay Tax Due
There is currently No Amount Due on this property.
Taxes and Assessment Details
Property Tax Information as of
10/23/2025
Click on "Statement Details" to expand or collapse a tax statement.
* Please enter a valid date ** Please enter a valid date *
Statement Details |
| | TOTAL: | $0.00 | $0.00 | $0.00 | $0.00 | $0.00 | $0.00 |
|
| | $0.00 | $0.00 | $0.00 | $0.00 | $0.00 | $0.00 |
Values
| (+) Improvement Homesite Value: | + | $0 | |
| (+) Improvement Non-Homesite Value: | + | $135,691 | |
| (+) Land Homesite Value: | + | $0 | |
| (+) Land Non-Homesite Value: | + | $66,197 | |
| (+) Curr Use (HS): | + | $0 | $0 |
| (+) Curr Use (NHS): | + | $0 | $0 |
| | | -------------------------- | |
| (=) Market Value: | = | $201,888 | |
| (–) Productivity Loss: | – | $0 | |
| | | -------------------------- | |
| (=) Subtotal: | = | $201,888 | |
| (+) Senior Appraised Value: | + | $0 | |
| (+) Non-Senior Appraised Value: | + | $201,888 | |
| | | -------------------------- | |
| (=) Total Appraised Value: | = | $201,888 | |
| (–) Senior Exemption Loss: | – | $0 | |
| (–) Exemption Loss: | – | $0 | |
| | | -------------------------- | |
| (=) Taxable Value: | = | $201,888 | |
Taxing Jurisdiction
| Owner: | LISA J HAMES | | |
| % Ownership: | 100.0000000000% | | |
| Total Value: | N/A | | |
| Tax Area: | 0441 - 1-46F4E4H2C1L1P2 |
| CE | COUNTY CURRENT EXPENSE | N/A | N/A | N/A | N/A | | |
| CNTYDD | DEVELOPMENTAL DISABILITIES | N/A | N/A | N/A | N/A | | |
| CNTYVET | VETERANS RELIEF | N/A | N/A | N/A | N/A | | |
| MENTAL | MENTAL HEALTH | N/A | N/A | N/A | N/A | | |
| ROADS | COUNTY ROADS | N/A | N/A | N/A | N/A | | |
| ROADSCU | COUNTY ROADS TO CUR EXP | N/A | N/A | N/A | N/A | | |
| HOSP2CASH | HOSP DIST #2 GENERAL | N/A | N/A | N/A | N/A | | |
| SCH46MO | SCHOOL DIST #46 EP & O | N/A | N/A | N/A | N/A | | |
| CEM1 | CEMETERY DIST #1 GENERAL | N/A | N/A | N/A | N/A | | |
| CONSERVE | CONSERVATION FUTURES | N/A | N/A | N/A | N/A | | |
| EMS4 | FIRE DIST #4 EMS | N/A | N/A | N/A | N/A | | |
| FD4 | FIRE DIST #4 GENERAL | N/A | N/A | N/A | N/A | | |
| FD4BOND | FIRE DIST #4 BOND 2019 | N/A | N/A | N/A | N/A | | |
| LIB1 | LIBRARY DIST #1 GENERAL | N/A | N/A | N/A | N/A | | |
| PORTPT | PORT OF PT GENERAL | N/A | N/A | N/A | N/A | | |
| PORTPTIDD | PORT OF PT IDD 2019 | N/A | N/A | N/A | N/A | | |
| PUD1 | PUD #1 GENERAL | N/A | N/A | N/A | N/A | | |
| STATE | STATE SCHOOL PART 1 | N/A | N/A | N/A | N/A | | |
| STATE2 | STATE SCHOOL PART 2 | N/A | N/A | N/A | N/A | | |
| | Total Tax Rate: | N/A | | | | | |
| | | | | Taxes w/Current Exemptions: | N/A | | |
| | | | | Taxes w/o Exemptions: | N/A | | |
Improvement / Building
| Improvement #1: | Manufactured Home | State Code: | 11 | 1764.0 sqft | Value: | $135,691 |
| Bathrooms (#): | 2 (FULL) | Bedrooms (#): | 2 | | Exterior Wall: | PL/T1 | Floor Construction: | FRAME | | Foundation: | PO&BL | Heating/Cooling: | F/A | | Roof Cover: | COMP |   |   |
|
| | Type | Description | Class CD | Sub Class CD | Year Built | Area |
| | MA | Main Area | 4- | MDBL | 1991 | 1764.0 |
| | MDECK | MH Deck | 4 | * | 1991 | 552.0 |
| | CARPT | Carport (Table Not Dep) | 3 | * | 1991 | 648.0 |
| | SHED | Shed (Table Not Dep) | 3 | * | 1991 | 144.0 |
Sketch
Property Image
Land
| 1 | 1320-1375S | Terr/Mtn View Sites 1+/- Acre | 1.0000 | 43560.00 | 0.00 | 0.00 | 1.00 | $51,750 | $0 |
| 2 | 1577A | Terr/Mtn/No View <6 Acres | 2.0100 | 87555.60 | 0.00 | 0.00 | 0.00 | $14,447 | $0 |
Roll Value History
| 2025 | N/A | N/A | N/A | N/A | N/A |
| 2024 | $129,791 | $60,441 | $0 | $190,232 | $190,232 |
| 2023 | $129,791 | $55,181 | $0 | $184,972 | $184,972 |
| 2022 | $117,992 | $49,050 | $0 | $167,042 | $167,042 |
| 2021 | $97,514 | $37,248 | $0 | $134,762 | $134,762 |
Deed and Sales History
| 1 | 12/27/2021 | QCD | Quit Claim Deed | PETERSON TRUSTEE MERTES E | LISA J HAMES | | | | 138441 | |
| 2 | 03/08/1996 | QCD | Quit Claim Deed | PETERSON, MERTES E | PETERSON, MERTES E/FAMILY TRST | 0 | 0 | $0.00 | 79078 | 0 |
Payout Agreement
| No payout information available.. |