Property
Account |
| Property ID: | 16370 | Abbreviated Legal Description: | S28 T26 R2W S1/2 GOV LOT 4 |
| Parcel # / Geo ID: | 602283002 | Agent Code: | |
| Type: | Real | | |
| Tax Area: | 0402 - 1-46E4H2C1L1Z1P2 | Land Use Code | 88 |
| Open Space: | N | DFL | Y |
| Historic Property: | N | Remodel Property: | N |
| Multi-Family Redevelopment: | N | | |
| Township: | 26N | Section: | 28 |
| Range: | 2W |
Location |
| Address: | | Mapsco: | 054/002 |
| Neighborhood: | S28 THRU S33 T26N R2W | Map ID: | |
| Neighborhood CD: | 1380 |
Owner |
| Name: | POPE RESOURCES | Owner ID: | 25002 |
| Mailing Address: | C/O PROPERTY TAX COORDINATOR 1 RAYONIER WY YULEE, FL 32097 | % Ownership: | 100.0000000000% |
| | | Exemptions: | |
Pay Tax Due
There is currently No Amount Due on this property.
Taxes and Assessment Details
Property Tax Information as of
10/24/2025
Click on "Statement Details" to expand or collapse a tax statement.
* Please enter a valid date ** Please enter a valid date *
Statement Details |
| | TOTAL: | $0.00 | $0.00 | $0.00 | $0.00 | $0.00 | $0.00 |
|
| | $0.00 | $0.00 | $0.00 | $0.00 | $0.00 | $0.00 |
Values
| (+) Improvement Homesite Value: | + | $0 | |
| (+) Improvement Non-Homesite Value: | + | $0 | |
| (+) Land Homesite Value: | + | $0 | |
| (+) Land Non-Homesite Value: | + | $0 | |
| (+) Curr Use (HS): | + | $0 | $0 |
| (+) Curr Use (NHS): | + | $47,948 | $1,751 |
| | | -------------------------- | |
| (=) Market Value: | = | $47,948 | |
| (–) Productivity Loss: | – | $46,197 | |
| | | -------------------------- | |
| (=) Subtotal: | = | $1,751 | |
| (+) Senior Appraised Value: | + | $0 | |
| (+) Non-Senior Appraised Value: | + | $1,751 | |
| | | -------------------------- | |
| (=) Total Appraised Value: | = | $1,751 | |
| (–) Senior Exemption Loss: | – | $0 | |
| (–) Exemption Loss: | – | $0 | |
| | | -------------------------- | |
| (=) Taxable Value: | = | $1,751 | |
Taxing Jurisdiction
| Owner: | POPE RESOURCES | | |
| % Ownership: | 100.0000000000% | | |
| Total Value: | N/A | | |
| Tax Area: | 0402 - 1-46E4H2C1L1Z1P2 |
| CE | COUNTY CURRENT EXPENSE | N/A | N/A | N/A | N/A | | |
| CNTYDD | DEVELOPMENTAL DISABILITIES | N/A | N/A | N/A | N/A | | |
| CNTYVET | VETERANS RELIEF | N/A | N/A | N/A | N/A | | |
| MENTAL | MENTAL HEALTH | N/A | N/A | N/A | N/A | | |
| ROADS | COUNTY ROADS | N/A | N/A | N/A | N/A | | |
| ROADSCU | COUNTY ROADS TO CUR EXP | N/A | N/A | N/A | N/A | | |
| HOSP2CASH | HOSP DIST #2 GENERAL | N/A | N/A | N/A | N/A | | |
| SCH46MO | SCHOOL DIST #46 EP & O | N/A | N/A | N/A | N/A | | |
| CEM1 | CEMETERY DIST #1 GENERAL | N/A | N/A | N/A | N/A | | |
| CONSERVE | CONSERVATION FUTURES | N/A | N/A | N/A | N/A | | |
| EMS4 | FIRE DIST #4 EMS | N/A | N/A | N/A | N/A | | |
| FD4BOND | FIRE DIST #4 BOND 2019 | N/A | N/A | N/A | N/A | | |
| LIB1 | LIBRARY DIST #1 GENERAL | N/A | N/A | N/A | N/A | | |
| PORTPT | PORT OF PT GENERAL | N/A | N/A | N/A | N/A | | |
| PORTPTIDD | PORT OF PT IDD 2019 | N/A | N/A | N/A | N/A | | |
| PUD1 | PUD #1 GENERAL | N/A | N/A | N/A | N/A | | |
| STATE | STATE SCHOOL PART 1 | N/A | N/A | N/A | N/A | | |
| STATE2 | STATE SCHOOL PART 2 | N/A | N/A | N/A | N/A | | |
| | Total Tax Rate: | N/A | | | | | |
| | | | | Taxes w/Current Exemptions: | N/A | | |
| | | | | Taxes w/o Exemptions: | N/A | | |
Improvement / Building
Sketch
| No sketches available for this property. |
Property Image
Land
| 1 | 1777A | Terr/Mtn View >15-25 Acres | 14.6300 | 637282.80 | 0.00 | 0.00 | 0.00 | $34,198 | $1,639 |
| 2 | 1380-1375S | Terr/Mtn View Sites 1+/- Acre | 1.0000 | 43560.00 | 0.00 | 0.00 | 1.00 | $13,750 | $112 |
Roll Value History
| 2025 | N/A | N/A | N/A | N/A | N/A |
| 2024 | $0 | $43,589 | $1,751 | $1,751 | $1,751 |
| 2023 | $0 | $41,760 | $1,719 | $1,719 | $1,719 |
| 2022 | $0 | $38,103 | $1,672 | $1,672 | $1,672 |
| 2021 | $0 | $35,587 | $1,672 | $1,672 | $1,672 |
Deed and Sales History
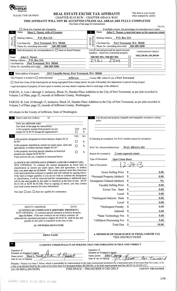
| 1 | 02/04/2015 | EASE | Assignment of Easement | | | | | | 122656 | |
| 2 | 05/15/1996 | QCD | Quit Claim Deed | HANSON NATURAL RESOURCES/ | CROWN PACIFIC LIMITED PRTNSHP | 0 | 0 | $0.00 | 79460 | 0 |
Payout Agreement
| No payout information available.. |