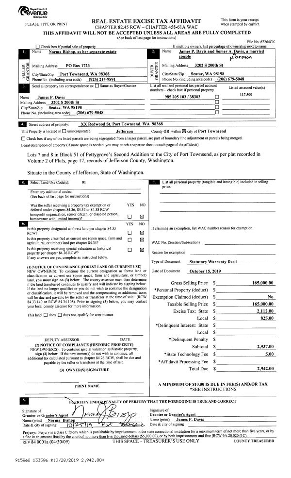
Property
Account |
| Property ID: | 16493 | Abbreviated Legal Description: | S34 T26 R2W W1/2 SW NE NE WITH & SUBJ TO EASE |
| Parcel # / Geo ID: | 602341036 | Agent Code: | |
| Type: | Real | | |
| Tax Area: | 0440 - 1-46F4E4H2C1L1Z1P2 | Land Use Code | 11 |
| Open Space: | N | DFL | N |
| Historic Property: | N | Remodel Property: | N |
| Multi-Family Redevelopment: | N | | |
| Township: | 26N | Section: | 34 |
| Range: | 2W |
Location |
| Address: | 591 GREEN MOUNTAIN LN BRINNON, WA 98320 | Mapsco: | 056/007 |
| Neighborhood: | S34 T26N R2W (EXCEPT LAZY C) | Map ID: | |
| Neighborhood CD: | 1370 |
Owner |
| Name: | MARK D BERGSTROM | Owner ID: | 11419 |
| Mailing Address: | JANICE R BERGSTROM PO BOX 451 BRINNON, WA 98320-0451 | % Ownership: | 100.0000000000% |
| | | Exemptions: | |
Pay Tax Due
There is currently No Amount Due on this property.
Taxes and Assessment Details
Property Tax Information as of
10/24/2025
Click on "Statement Details" to expand or collapse a tax statement.
* Please enter a valid date ** Please enter a valid date *
Statement Details |
| | TOTAL: | $0.00 | $0.00 | $0.00 | $0.00 | $0.00 | $0.00 |
|
| | $0.00 | $0.00 | $0.00 | $0.00 | $0.00 | $0.00 |
Values
| (+) Improvement Homesite Value: | + | $0 | |
| (+) Improvement Non-Homesite Value: | + | $278,075 | |
| (+) Land Homesite Value: | + | $0 | |
| (+) Land Non-Homesite Value: | + | $93,676 | |
| (+) Curr Use (HS): | + | $0 | $0 |
| (+) Curr Use (NHS): | + | $0 | $0 |
| | | -------------------------- | |
| (=) Market Value: | = | $371,751 | |
| (–) Productivity Loss: | – | $0 | |
| | | -------------------------- | |
| (=) Subtotal: | = | $371,751 | |
| (+) Senior Appraised Value: | + | $0 | |
| (+) Non-Senior Appraised Value: | + | $371,751 | |
| | | -------------------------- | |
| (=) Total Appraised Value: | = | $371,751 | |
| (–) Senior Exemption Loss: | – | $0 | |
| (–) Exemption Loss: | – | $0 | |
| | | -------------------------- | |
| (=) Taxable Value: | = | $371,751 | |
Taxing Jurisdiction
| Owner: | MARK D BERGSTROM | | |
| % Ownership: | 100.0000000000% | | |
| Total Value: | N/A | | |
| Tax Area: | 0440 - 1-46F4E4H2C1L1Z1P2 |
| CE | COUNTY CURRENT EXPENSE | N/A | N/A | N/A | N/A | | |
| CNTYDD | DEVELOPMENTAL DISABILITIES | N/A | N/A | N/A | N/A | | |
| CNTYVET | VETERANS RELIEF | N/A | N/A | N/A | N/A | | |
| MENTAL | MENTAL HEALTH | N/A | N/A | N/A | N/A | | |
| ROADS | COUNTY ROADS | N/A | N/A | N/A | N/A | | |
| ROADSCU | COUNTY ROADS TO CUR EXP | N/A | N/A | N/A | N/A | | |
| HOSP2CASH | HOSP DIST #2 GENERAL | N/A | N/A | N/A | N/A | | |
| SCH46MO | SCHOOL DIST #46 EP & O | N/A | N/A | N/A | N/A | | |
| CEM1 | CEMETERY DIST #1 GENERAL | N/A | N/A | N/A | N/A | | |
| CONSERVE | CONSERVATION FUTURES | N/A | N/A | N/A | N/A | | |
| EMS4 | FIRE DIST #4 EMS | N/A | N/A | N/A | N/A | | |
| FD4 | FIRE DIST #4 GENERAL | N/A | N/A | N/A | N/A | | |
| FD4BOND | FIRE DIST #4 BOND 2019 | N/A | N/A | N/A | N/A | | |
| LIB1 | LIBRARY DIST #1 GENERAL | N/A | N/A | N/A | N/A | | |
| PORTPT | PORT OF PT GENERAL | N/A | N/A | N/A | N/A | | |
| PORTPTIDD | PORT OF PT IDD 2019 | N/A | N/A | N/A | N/A | | |
| PUD1 | PUD #1 GENERAL | N/A | N/A | N/A | N/A | | |
| STATE | STATE SCHOOL PART 1 | N/A | N/A | N/A | N/A | | |
| STATE2 | STATE SCHOOL PART 2 | N/A | N/A | N/A | N/A | | |
| | Total Tax Rate: | N/A | | | | | |
| | | | | Taxes w/Current Exemptions: | N/A | | |
| | | | | Taxes w/o Exemptions: | N/A | | |
Improvement / Building
| Improvement #1: | Residential Bldg | State Code: | 11 | 1568.0 sqft | Value: | $278,075 |
| Bathrooms (#): | 1 (FULL) | Bathrooms (#): | 1 (HALF) | | Bedrooms (#): | 3 | Exterior Wall: | PL/T1 | | Fireplace: | WD ST-GOOD | Floor Construction: | FRAME | | Foundation: | CONPR | Heating/Cooling: | ELBB | | Roof Cover: | METAL |   |   |
|
| | Type | Description | Class CD | Sub Class CD | Year Built | Area |
| | MA | Main Area | 3 | 2S | 1983 | 784.0 |
| | MA2 | Second Floor Main Area | 3 | 2S | 1983 | 784.0 |
| | HDECK | House Deck | 3 | * | 1983 | 346.0 |
| | HCPOR | House Concrete Porch | 3 | * | 1983 | 336.0 |
| | GARAG | Garage (Table Not Dep) | 3 | * | 1983 | 672.0 |
| | GDET | Detached Garage | 3 | * | 1983 | 1080.0 |
| | OTHER | Other | 3 | * | 1983 | 96.0 |
Sketch
Property Image
Land
| 1 | 1575A | Terr/Mtn/No View <6 Acres | 4.1600 | 181209.60 | 0.00 | 0.00 | 0.00 | $33,176 | $0 |
| 2 | 1370-1375S | Terr/Mtn View Sites 1+/- Acre | 1.0000 | 43560.00 | 0.00 | 0.00 | 1.00 | $60,500 | $0 |
Roll Value History
| 2025 | N/A | N/A | N/A | N/A | N/A |
| 2024 | $265,984 | $89,418 | $0 | $355,402 | $355,402 |
| 2023 | $265,984 | $78,080 | $0 | $344,064 | $344,064 |
| 2022 | $241,804 | $69,960 | $0 | $311,764 | $311,764 |
| 2021 | $199,838 | $61,870 | $0 | $261,708 | $261,708 |
Deed and Sales History
| 1 | 10/30/1998 | SWD | Statutory Warranty Deed | MCFALL, CLIFFORD W/JACQUE | BERGSTROM, MARK D/JANICE R | 0 | 0 | $156,000.00 | 85649 | 0 |
| 2 | 07/29/1994 | SWD | Statutory Warranty Deed | BOTTOMLEY & SCHROEPPEL/TR | MCFALL, CLIFFORD W/JACQUELINE | 0 | 0 | $62,000.00 | 74763 | 0 |
Payout Agreement
| No payout information available.. |