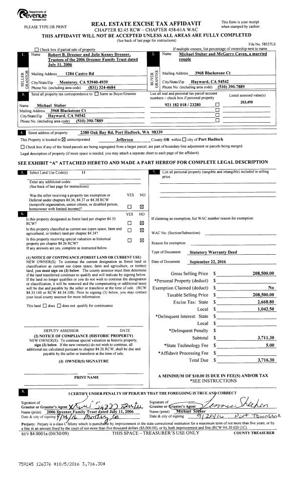
Property
Account |
| Property ID: | 16582 | Abbreviated Legal Description: | S35 T26 R2W TAX 7 |
| Parcel # / Geo ID: | 602353012 | Agent Code: | |
| Type: | Real | | |
| Tax Area: | 0440 - 1-46F4E4H2C1L1Z1P2 | Land Use Code | 11 |
| Open Space: | N | DFL | N |
| Historic Property: | N | Remodel Property: | N |
| Multi-Family Redevelopment: | N | | |
| Township: | 26N | Section: | 35 |
| Range: | 2W |
Location |
| Address: | 220 BRINNON LN BRINNON, WA 98320 | Mapsco: | 057/060 |
| Neighborhood: | S35 T26N R2W & SUNROCK MHP; ERVIN KELLY S.P. & W. KELLY S.P. | Map ID: | |
| Neighborhood CD: | 1360 |
Owner |
| Name: | WASHINGTON RAMOS JR & ANGIE L VU | Owner ID: | 97309 |
| Mailing Address: | 1708 63RD AVE NE TACOMA, WA 98422-3605 | % Ownership: | 100.0000000000% |
| | | Exemptions: | |
Pay Tax Due
There is currently No Amount Due on this property.
Taxes and Assessment Details
Property Tax Information as of
10/24/2025
Click on "Statement Details" to expand or collapse a tax statement.
* Please enter a valid date ** Please enter a valid date *
Statement Details |
| | TOTAL: | $0.00 | $0.00 | $0.00 | $0.00 | $0.00 | $0.00 |
|
| | $0.00 | $0.00 | $0.00 | $0.00 | $0.00 | $0.00 |
Values
| (+) Improvement Homesite Value: | + | $0 | |
| (+) Improvement Non-Homesite Value: | + | $110,663 | |
| (+) Land Homesite Value: | + | $0 | |
| (+) Land Non-Homesite Value: | + | $69,034 | |
| (+) Curr Use (HS): | + | $0 | $0 |
| (+) Curr Use (NHS): | + | $0 | $0 |
| | | -------------------------- | |
| (=) Market Value: | = | $179,697 | |
| (–) Productivity Loss: | – | $0 | |
| | | -------------------------- | |
| (=) Subtotal: | = | $179,697 | |
| (+) Senior Appraised Value: | + | $0 | |
| (+) Non-Senior Appraised Value: | + | $179,697 | |
| | | -------------------------- | |
| (=) Total Appraised Value: | = | $179,697 | |
| (–) Senior Exemption Loss: | – | $0 | |
| (–) Exemption Loss: | – | $0 | |
| | | -------------------------- | |
| (=) Taxable Value: | = | $179,697 | |
Taxing Jurisdiction
| Owner: | WASHINGTON RAMOS JR & ANGIE L VU | | |
| % Ownership: | 100.0000000000% | | |
| Total Value: | N/A | | |
| Tax Area: | 0440 - 1-46F4E4H2C1L1Z1P2 |
| CE | COUNTY CURRENT EXPENSE | N/A | N/A | N/A | N/A | | |
| CNTYDD | DEVELOPMENTAL DISABILITIES | N/A | N/A | N/A | N/A | | |
| CNTYVET | VETERANS RELIEF | N/A | N/A | N/A | N/A | | |
| MENTAL | MENTAL HEALTH | N/A | N/A | N/A | N/A | | |
| ROADS | COUNTY ROADS | N/A | N/A | N/A | N/A | | |
| ROADSCU | COUNTY ROADS TO CUR EXP | N/A | N/A | N/A | N/A | | |
| HOSP2CASH | HOSP DIST #2 GENERAL | N/A | N/A | N/A | N/A | | |
| SCH46MO | SCHOOL DIST #46 EP & O | N/A | N/A | N/A | N/A | | |
| CEM1 | CEMETERY DIST #1 GENERAL | N/A | N/A | N/A | N/A | | |
| CONSERVE | CONSERVATION FUTURES | N/A | N/A | N/A | N/A | | |
| EMS4 | FIRE DIST #4 EMS | N/A | N/A | N/A | N/A | | |
| FD4 | FIRE DIST #4 GENERAL | N/A | N/A | N/A | N/A | | |
| FD4BOND | FIRE DIST #4 BOND 2019 | N/A | N/A | N/A | N/A | | |
| LIB1 | LIBRARY DIST #1 GENERAL | N/A | N/A | N/A | N/A | | |
| PORTPT | PORT OF PT GENERAL | N/A | N/A | N/A | N/A | | |
| PORTPTIDD | PORT OF PT IDD 2019 | N/A | N/A | N/A | N/A | | |
| PUD1 | PUD #1 GENERAL | N/A | N/A | N/A | N/A | | |
| STATE | STATE SCHOOL PART 1 | N/A | N/A | N/A | N/A | | |
| STATE2 | STATE SCHOOL PART 2 | N/A | N/A | N/A | N/A | | |
| | Total Tax Rate: | N/A | | | | | |
| | | | | Taxes w/Current Exemptions: | N/A | | |
| | | | | Taxes w/o Exemptions: | N/A | | |
Improvement / Building
| Improvement #1: | Residential Bldg | State Code: | 11 | 762.0 sqft | Value: | $110,663 |
| Bathrooms (#): | 1 (FULL) | Bedrooms (#): | 1 | | Exterior Wall: | PL/T1 | Floor Construction: | FRAME | | Foundation: | PO&BL | Heating/Cooling: | ELBB | | Roof Cover: | COMP |   |   |
|
| | Type | Description | Class CD | Sub Class CD | Year Built | Area |
| | MA | Main Area | 3+ | 1S | 1930 | 762.0 |
| | HWPOR | House Wood Porch | 3 | * | 1930 | 30.0 |
| | GARAG | Garage (Table Not Dep) | 4 | * | 1994 | 864.0 |
| | CARPT | Carport (Table Not Dep) | 2 | * | 1994 | 384.0 |
| | SHED | Shed (Table Not Dep) | 4 | * | 2016 | 35.0 |
Sketch
Property Image
Land
| 1 | 1360-1375S | Limited/No View Sites 1+/- Acre | 1.0000 | 43560.00 | 0.00 | 0.00 | 1.00 | $60,500 | $0 |
| 2 | 1575A | Terr/Mtn/No View <6 Acres | 1.0700 | 46609.20 | 0.00 | 0.00 | 0.00 | $8,534 | $0 |
Roll Value History
| 2025 | N/A | N/A | N/A | N/A | N/A |
| 2024 | $105,852 | $65,896 | $0 | $171,748 | $171,748 |
| 2023 | $105,852 | $57,223 | $0 | $163,075 | $163,075 |
| 2022 | $96,229 | $51,420 | $0 | $147,649 | $147,649 |
| 2021 | $79,528 | $44,103 | $0 | $123,631 | $123,631 |
Deed and Sales History
| 1 | 05/22/2017 | REC | Real Estate Contract | AFS PROPERTIES INC. | WASHINGTON RAMOS JR & ANGIE L VU | | | $120,000.00 | 127790 | |
| 2 | 07/06/2016 | QCD | Quit Claim Deed | CAROLYN YURCABA | AFS PROPERTIES INC. | | | | 125774 | |
| 3 | 05/31/2012 | SWD | Statutory Warranty Deed | AFS PROPERTIES INC, A WAS | YURCABA, CAROLYN | 0 | 0 | $115,000.00 | 117636 | 0 |
| 4 | 11/04/2005 | SWD | Statutory Warranty Deed | MATTHEWS, MICHAEL | AFS PROPERTIES INC | 0 | 0 | $105,000.00 | 105284 | 0 |
| 5 | 11/04/2005 | SWD | Statutory Warranty Deed | MATTHEWS, MICHAEL | AFS PROPERTIES INC. | 0 | 0 | $0.00 | 105482 | 0 |
| 6 | 02/07/2005 | QCD | Quit Claim Deed | MATTHEWS, JANET K | MATTHEWS, MICHAEL G | 0 | 0 | $0.00 | 102697 | 0 |
| 7 | 05/19/1999 | QCD | Quit Claim Deed | MATTHEWS, MICHAEL C | MATTHEWS, MICHAEL G/JANET K | 0 | 0 | $0.00 | 86961 | 0 |
| 8 | 04/12/1999 | SWD | Statutory Warranty Deed | BANKERS TRUST COMPANY OF | MATTHEWS, MICHAEL C | 0 | 0 | $31,500.00 | 86764 | 0 |
| 9 | 11/13/1998 | TRED | Trustee Deed | GIBBON, KAREN L | BANKERS TRUST COMPANY/TRUSTEE | 0 | 0 | $0.00 | 85711 | 0 |
Payout Agreement
| No payout information available.. |