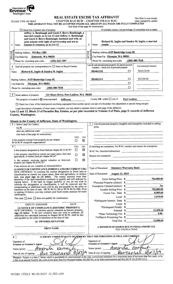
Property
Account |
| Property ID: | 16583 | Abbreviated Legal Description: | S35 T26 R2W TAX 8 & 10 (ENLG BY TX 51) |
| Parcel # / Geo ID: | 602353013 | Agent Code: | |
| Type: | Real | | |
| Tax Area: | 0440 - 1-46F4E4H2C1L1Z1P2 | Land Use Code | 11 |
| Open Space: | N | DFL | N |
| Historic Property: | N | Remodel Property: | N |
| Multi-Family Redevelopment: | N | | |
| Township: | 26N | Section: | 35 |
| Range: | 2W |
Location |
| Address: | 105 SCHOOLHOUSE RD BRINNON, WA 98320 | Mapsco: | 057/061 |
| Neighborhood: | S35 T26N R2W & SUNROCK MHP; ERVIN KELLY S.P. & W. KELLY S.P. | Map ID: | |
| Neighborhood CD: | 1360 |
Owner |
| Name: | LI WANG & RUNHE SONG | Owner ID: | 98765 |
| Mailing Address: | 9022 123RD LN NE KIRKLAND, WA 98033-5813 | % Ownership: | 100.0000000000% |
| | | Exemptions: | |
Pay Tax Due
There is currently No Amount Due on this property.
Taxes and Assessment Details
Property Tax Information as of
10/24/2025
Click on "Statement Details" to expand or collapse a tax statement.
* Please enter a valid date ** Please enter a valid date *
Statement Details |
| | TOTAL: | $0.00 | $0.00 | $0.00 | $0.00 | $0.00 | $0.00 |
|
| | $0.00 | $0.00 | $0.00 | $0.00 | $0.00 | $0.00 |
Values
| (+) Improvement Homesite Value: | + | $0 | |
| (+) Improvement Non-Homesite Value: | + | $439,706 | |
| (+) Land Homesite Value: | + | $0 | |
| (+) Land Non-Homesite Value: | + | $125,747 | |
| (+) Curr Use (HS): | + | $0 | $0 |
| (+) Curr Use (NHS): | + | $0 | $0 |
| | | -------------------------- | |
| (=) Market Value: | = | $565,453 | |
| (–) Productivity Loss: | – | $0 | |
| | | -------------------------- | |
| (=) Subtotal: | = | $565,453 | |
| (+) Senior Appraised Value: | + | $0 | |
| (+) Non-Senior Appraised Value: | + | $565,453 | |
| | | -------------------------- | |
| (=) Total Appraised Value: | = | $565,453 | |
| (–) Senior Exemption Loss: | – | $0 | |
| (–) Exemption Loss: | – | $0 | |
| | | -------------------------- | |
| (=) Taxable Value: | = | $565,453 | |
Taxing Jurisdiction
| Owner: | LI WANG & RUNHE SONG | | |
| % Ownership: | 100.0000000000% | | |
| Total Value: | N/A | | |
| Tax Area: | 0440 - 1-46F4E4H2C1L1Z1P2 |
| CE | COUNTY CURRENT EXPENSE | N/A | N/A | N/A | N/A | | |
| CNTYDD | DEVELOPMENTAL DISABILITIES | N/A | N/A | N/A | N/A | | |
| CNTYVET | VETERANS RELIEF | N/A | N/A | N/A | N/A | | |
| MENTAL | MENTAL HEALTH | N/A | N/A | N/A | N/A | | |
| ROADS | COUNTY ROADS | N/A | N/A | N/A | N/A | | |
| ROADSCU | COUNTY ROADS TO CUR EXP | N/A | N/A | N/A | N/A | | |
| HOSP2CASH | HOSP DIST #2 GENERAL | N/A | N/A | N/A | N/A | | |
| SCH46MO | SCHOOL DIST #46 EP & O | N/A | N/A | N/A | N/A | | |
| CEM1 | CEMETERY DIST #1 GENERAL | N/A | N/A | N/A | N/A | | |
| CONSERVE | CONSERVATION FUTURES | N/A | N/A | N/A | N/A | | |
| EMS4 | FIRE DIST #4 EMS | N/A | N/A | N/A | N/A | | |
| FD4 | FIRE DIST #4 GENERAL | N/A | N/A | N/A | N/A | | |
| FD4BOND | FIRE DIST #4 BOND 2019 | N/A | N/A | N/A | N/A | | |
| LIB1 | LIBRARY DIST #1 GENERAL | N/A | N/A | N/A | N/A | | |
| PORTPT | PORT OF PT GENERAL | N/A | N/A | N/A | N/A | | |
| PORTPTIDD | PORT OF PT IDD 2019 | N/A | N/A | N/A | N/A | | |
| PUD1 | PUD #1 GENERAL | N/A | N/A | N/A | N/A | | |
| STATE | STATE SCHOOL PART 1 | N/A | N/A | N/A | N/A | | |
| STATE2 | STATE SCHOOL PART 2 | N/A | N/A | N/A | N/A | | |
| | Total Tax Rate: | N/A | | | | | |
| | | | | Taxes w/Current Exemptions: | N/A | | |
| | | | | Taxes w/o Exemptions: | N/A | | |
Improvement / Building
| Improvement #1: | Manufactured Home | State Code: | 11 | 2286.0 sqft | Value: | $373,532 |
| Bathrooms (#): | 2 (FULL) | Bathrooms (#): | 1 (HALF) | | Bedrooms (#): | 3 | Exterior Wall: | SI/ST | | Fireplace: | WD ST-GOOD | Floor Construction: | FRAME | | Foundation: | PO&BL | Heating/Cooling: | F/A | | Roof Cover: | COMP |   |   |
|
| | Type | Description | Class CD | Sub Class CD | Year Built | Area |
| | MA | Main Area | 5 | MDBL | 1991 | 2286.0 |
| | MDECK | MH Deck | 5 | * | 1991 | 1168.0 |
| | MENCL | MH Enclosure | 5 | * | 1991 | 96.0 |
| | MDET | MH Detached Garage | 5 | MDBL | 1991 | 1600.0 |
| | OTHER | Other | 5 | * | 1991 | 560.0 |
| | MCPOR | MH Concrete Porch | 5 | * | 1991 | 525.0 |
| | SHED | Shed (Table Not Dep) | 5 | * | 1991 | 48.0 |
| Improvement #2: | Manufactured Home | State Code: | 11 | 384.0 sqft | Value: | $66,174 |
| Bathrooms (#): | 1 (FULL) | Bedrooms (#): | 1 | | Exterior Wall: | PL/T1 | Floor Construction: | CONCR | | Foundation: | CONPR | Heating/Cooling: | ELBB | | Interior Finish: | FIN | Roof Cover: | COMP |
|
Sketch
Property Image
Land
| 1 | 1573A | Terr/Mtn/No View <6 Acres | 1.7700 | 77101.20 | 0.00 | 0.00 | 0.00 | $18,497 | $0 |
| 2 | 1360-1375S | Limited/No View Sites 1+/- Acre | 1.0000 | 43560.00 | 0.00 | 0.00 | 2.00 | $107,250 | $0 |
Roll Value History
| 2025 | N/A | N/A | N/A | N/A | N/A |
| 2024 | $420,588 | $120,031 | $0 | $540,619 | $540,619 |
| 2023 | $420,588 | $144,700 | $0 | $565,288 | $565,288 |
| 2022 | $382,353 | $136,160 | $0 | $518,513 | $518,513 |
| 2021 | $315,994 | $128,656 | $0 | $444,650 | $444,650 |
Deed and Sales History
| 1 | 02/08/2018 | SWD | Statutory Warranty Deed | EARL G THOMPSON | LI WANG & RUNHE SONG | | | $500,000.00 | 129660 | |
|   | |
| 2 | 08/27/2013 | SWD | Statutory Warranty Deed | EARL G THOMPSON | EARL G THOMPSON | | | $240,000.00 | 119892 | |
|   | |
| 3 | 06/23/2011 | SWD | Statutory Warranty Deed | KITSAP CREDIT UNTION | THOMPSON, EARL/NANCY & BAISCH, | | | $167,000.00 | 116194 | 0 |
| 4 | 03/15/2011 | SWD | Statutory Warranty Deed | BECK, KEITH / VALKURIE | KITSAP CREDIT UNION | 0 | 0 | $0.00 | 115705 | 0 |
| 5 | 03/18/2009 | SWD | Statutory Warranty Deed | KITSAP CREDIT UNION | BECK, KEITH/VALKURIE | 0 | 0 | $279,000.00 | 112661 | 0 |
|   | |
| 6 | 01/16/2009 | WD | Warranty Deed | SIDERIUS, MICHAEL | KITSAP CREDIT UNION | 0 | 0 | $0.00 | 112458 | 0 |
| 7 | 01/15/2009 | TRED | Trustee Deed | SIDERIUS, MICHAEL | KITSAP CREDIT UNION | 0 | 0 | $0.00 | 112406 | 0 |
Payout Agreement
| No payout information available.. |