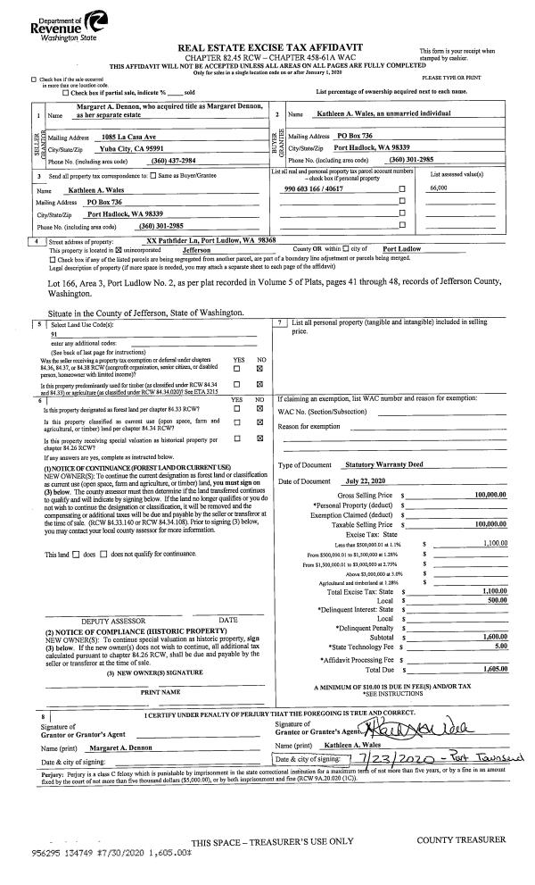
Property
Account |
| Property ID: | 16600 | Abbreviated Legal Description: | WALT KELLY PLAZA SHORT PLAT LOT 1 SUBJ/EASE |
| Parcel # / Geo ID: | 602353032 | Agent Code: | |
| Type: | Real | | |
| Tax Area: | 0440 - 1-46F4E4H2C1L1Z1P2 | Land Use Code | 64 |
| Open Space: | N | DFL | N |
| Historic Property: | N | Remodel Property: | N |
| Multi-Family Redevelopment: | N | | |
| Township: | 26N | Section: | 35 |
| Range: | 2W |
Location |
| Address: | 306362 HIGHWAY 101 306360 BRINNON, WA 98320 | Mapsco: | 062/080 |
| Neighborhood: | BRINNON COMMERCIAL AREA NORTH | Map ID: | |
| Neighborhood CD: | 1360C |
Owner |
| Name: | KEITH & FAY C BECK JTWROS | Owner ID: | 11209 |
| Mailing Address: | PO BOX 370 BRINNON, WA 98320-0370 | % Ownership: | 100.0000000000% |
| | | Exemptions: | |
Pay Tax Due
There is currently No Amount Due on this property.
Taxes and Assessment Details
Property Tax Information as of
10/24/2025
Click on "Statement Details" to expand or collapse a tax statement.
* Please enter a valid date ** Please enter a valid date *
Statement Details |
| | TOTAL: | $0.00 | $0.00 | $0.00 | $0.00 | $0.00 | $0.00 |
|
| | $0.00 | $0.00 | $0.00 | $0.00 | $0.00 | $0.00 |
Values
| (+) Improvement Homesite Value: | + | $0 | |
| (+) Improvement Non-Homesite Value: | + | $122,994 | |
| (+) Land Homesite Value: | + | $0 | |
| (+) Land Non-Homesite Value: | + | $118,950 | |
| (+) Curr Use (HS): | + | $0 | $0 |
| (+) Curr Use (NHS): | + | $0 | $0 |
| | | -------------------------- | |
| (=) Market Value: | = | $241,944 | |
| (–) Productivity Loss: | – | $0 | |
| | | -------------------------- | |
| (=) Subtotal: | = | $241,944 | |
| (+) Senior Appraised Value: | + | $0 | |
| (+) Non-Senior Appraised Value: | + | $241,944 | |
| | | -------------------------- | |
| (=) Total Appraised Value: | = | $241,944 | |
| (–) Senior Exemption Loss: | – | $0 | |
| (–) Exemption Loss: | – | $0 | |
| | | -------------------------- | |
| (=) Taxable Value: | = | $241,944 | |
Taxing Jurisdiction
| Owner: | KEITH & FAY C BECK JTWROS | | |
| % Ownership: | 100.0000000000% | | |
| Total Value: | N/A | | |
| Tax Area: | 0440 - 1-46F4E4H2C1L1Z1P2 |
| CE | COUNTY CURRENT EXPENSE | N/A | N/A | N/A | N/A | | |
| CNTYDD | DEVELOPMENTAL DISABILITIES | N/A | N/A | N/A | N/A | | |
| CNTYVET | VETERANS RELIEF | N/A | N/A | N/A | N/A | | |
| MENTAL | MENTAL HEALTH | N/A | N/A | N/A | N/A | | |
| ROADS | COUNTY ROADS | N/A | N/A | N/A | N/A | | |
| ROADSCU | COUNTY ROADS TO CUR EXP | N/A | N/A | N/A | N/A | | |
| HOSP2CASH | HOSP DIST #2 GENERAL | N/A | N/A | N/A | N/A | | |
| SCH46MO | SCHOOL DIST #46 EP & O | N/A | N/A | N/A | N/A | | |
| CEM1 | CEMETERY DIST #1 GENERAL | N/A | N/A | N/A | N/A | | |
| CONSERVE | CONSERVATION FUTURES | N/A | N/A | N/A | N/A | | |
| EMS4 | FIRE DIST #4 EMS | N/A | N/A | N/A | N/A | | |
| FD4 | FIRE DIST #4 GENERAL | N/A | N/A | N/A | N/A | | |
| FD4BOND | FIRE DIST #4 BOND 2019 | N/A | N/A | N/A | N/A | | |
| LIB1 | LIBRARY DIST #1 GENERAL | N/A | N/A | N/A | N/A | | |
| PORTPT | PORT OF PT GENERAL | N/A | N/A | N/A | N/A | | |
| PORTPTIDD | PORT OF PT IDD 2019 | N/A | N/A | N/A | N/A | | |
| PUD1 | PUD #1 GENERAL | N/A | N/A | N/A | N/A | | |
| STATE | STATE SCHOOL PART 1 | N/A | N/A | N/A | N/A | | |
| STATE2 | STATE SCHOOL PART 2 | N/A | N/A | N/A | N/A | | |
| | Total Tax Rate: | N/A | | | | | |
| | | | | Taxes w/Current Exemptions: | N/A | | |
| | | | | Taxes w/o Exemptions: | N/A | | |
Improvement / Building
| Improvement #1: | Commercial/Industrial/Government Bldg | State Code: | 64 | 2100.0 sqft | Value: | $54,089 |
| Exterior Wall: | METAL | Floor Construction: | CONCR | | Foundation: | CONPR | Interior Finish: | UNFIN | | Roof Cover: | METAL |   |   |
|
| Improvement #2: | Commercial/Industrial/Government Bldg | State Code: | 60 | 1400.0 sqft | Value: | $68,905 |
| Exterior Wall: | METAL | Floor Construction: | CONCR | | Foundation: | PO&BL | Heating/Cooling: | ELBB | | Interior Finish: | FIN | Roof Cover: | METAL |
|
Sketch
Property Image
Land
| 1 | 1360-6585Q | Commercial Land in Brinnon Area | 0.6807 | 29650.00 | 0.00 | 0.00 | 0.00 | $118,950 | $0 |
Roll Value History
| 2025 | N/A | N/A | N/A | N/A | N/A |
| 2024 | $122,994 | $118,950 | $0 | $241,944 | $241,944 |
| 2023 | $122,994 | $113,950 | $0 | $236,944 | $236,944 |
| 2022 | $117,137 | $108,950 | $0 | $226,087 | $226,087 |
| 2021 | $112,632 | $74,300 | $0 | $186,932 | $186,932 |
Deed and Sales History
| 1 | 04/05/2020 | QCD | Quit Claim Deed | | | | | | 134219 | |
| 2 | 08/05/2005 | SWD | Statutory Warranty Deed | JENKINS, R R | BECK, KEITH/FAY C | 0 | 0 | $160,000.00 | 104453 | 0 |
Payout Agreement
| No payout information available.. |