| 1 | 03/31/2025 | QCD | Quit Claim Deed | JOHN W SIMS & | LB RIVERS NATURE CONSERVANCY | | | | 144092 | |
| 2 | 02/13/2025 | QCD | Quit Claim Deed | SIMS-KELLY LIMITED LIABILITY COMPANY | JOHN W SIMS & | | | | 143996 | |
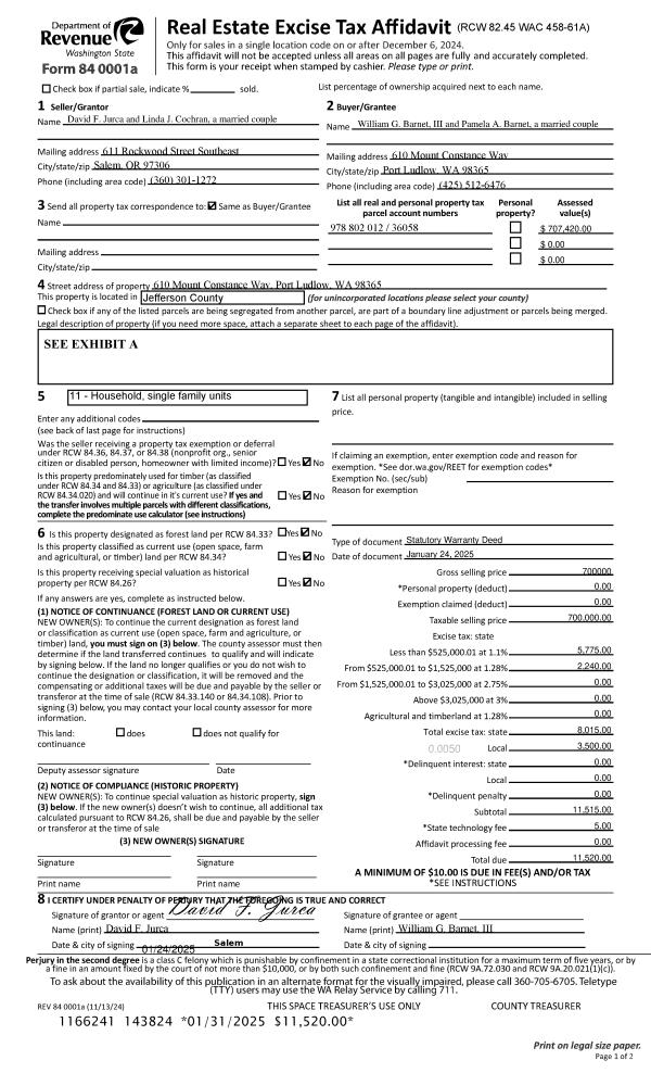
| 3 | 06/23/2021 | SWD | Statutory Warranty Deed | BRIAN E LILJAS & RINDA L LOWELL | SIMS-KELLY LIMITED LIABILITY COMPANY | | | $300,000.00 | 137062 | |
|   | |
| 4 | 08/07/2020 | SPWD | Special Warranty Deed | BRIAN E LILJAS TRUSTEE | BRIAN E LILJAS & RINDA L LOWELL | | | | 134995 | |
| 5 | 01/07/2021 | SPWD | Special Warranty Deed | | | | | | 135941 | |
| 6 | 03/07/2015 | EASE | Assignment of Easement | BRIAN E LILJAS TRUSTEE | | | | $4,785.00 | 123191 | |
| 7 | 02/01/2013 | EASE | Assignment of Easement | | | | | | 118781 | |
| 8 | 09/29/2006 | SWD | Statutory Warranty Deed | LILJAS, BRIAN E, LOWELL, | LILJAS, BRIAN E, LOWELL, RINDA | 0 | 0 | $0.00 | 107830 | 0 |
| 9 | 07/19/2006 | SWD | Statutory Warranty Deed | VUEN, GABRIELLA | LILJAS, BRIAN & RINDA | | | $60,000.00 | 107197 | 0 |
|   | |
| 10 | 05/11/2006 | TXD | Tax Deed | JEFFERSON COUNTY TREASURE | LEONG FAMILY TRUST | | | $0.00 | 106602 | 0 |
| 11 | 12/06/1996 | TXD | Tax Deed | JEFFERSON COUNTY | LEONG TRUST | 0 | 0 | $0.00 | 80957 | 0 |