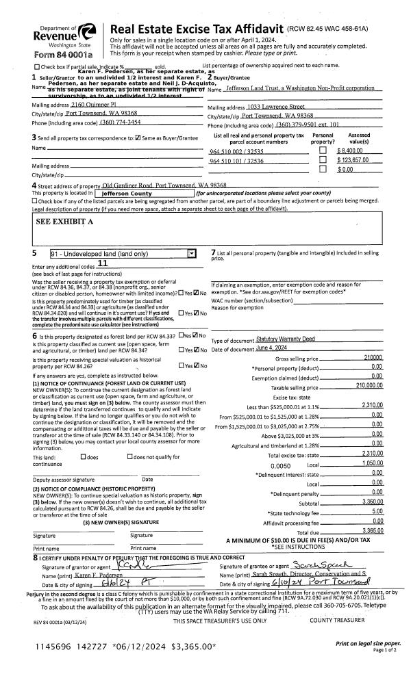
| 13667 | | S5 T24 R12W GOV'T LOT 3 & S1/2 NW1/4 (LESS PTN NW-LY OF DNR CLEARWATER MAIN LINE & LESS PTN TAX 7) SENE(E'LY OF CLEARWATER-SEC 6) |
| 14982 | | S1 T25 R12W GOV LTS 1,2 SE NE, NE SE LESS R/W |
| 14986 | | S2 T25 R12W LT 1 |
| 14989 | | S3 T25 R12W LOT 3 LESS TAX 1 |
| 14990 | | S3 T25 R12W TAX 1 |
| 14992 | | S4 T25 R12W GOV LTS 3,4 NW(S1/2) SW1/4 |
| 14993 | | S5 T25 R12W LTS 1,2,3,4 NE(S1/2), NW(S1/2) S1/2 SW(LESS PTN LY SLY OF CRK) BND THRU BLA#98730 |
| 14996 | | S6 T25 R12W LTS 1 THRU 7,S1/2 NE SE NW, NE SW, SE1/4 SE1/4(LESS NESE) ENLG BY S1/2 SW OF SEC 5 |
| 15022 | | S19 T25 R12W GOV LOT 1(LESS R/W) GOV LOT 2,3 |
| 15099 | | S1 T25 R13W GOV LOTS 1,2 SE NE NE SE |
| 15102 | | S2 T25 R13W GOV LOTS 3,4 S1/2 NW |
| 15103 | | S3 T25 R13W GOV LOTS 1,2,3,4 S1/2 N1/2 SE1/4 |
| 15105 | | S4 T25 R13W GOV LOT 2 S1/2 NE N1/2 SE |
| 15108 | | S9 T25 R13W NE1/4(LESS NE NE) SE1/4 |
| 15111 | | S10 T25 R13W ALL OF SECTION |
| 15112 | | S11 T25 R13W SW NE NW1/4(LESS NE NW) |
| 15117 | | S13 T25 R13W SW SW |
| 15120 | | S15 T25 R13W NE 1/4 LESS SE NE NW1/4 NW SW |
| 15129 | | S23 T25 R13W NE1/4 (LESS SE NE) SE NW W/1/2 INT MINERAL RT |
| 15132 | | S24 T25 R13W NE (LESS NW NW NE & R/W) NW (LESS N1/2 NE NW) N1/2 SE (LESS R/W) |
| 16747 | | S7 T26 R12W LOT 2 (N OF RIVER) |
| 16777 | | S14 T26 R12W E1/2 SE |
| 16784 | | S18 T26 R12W GOV LOT 1(S OF HWY 101) GOV LOT 2, NE, E1/2 NW(LS HWY R/W |
| 16798 | | S23 T26 R12W NE1/4, NW(E1/2) SW(E1/2), SE1/4 |
| 16800 | | S24 T26 R12W ALL OF SECTION |
| 16801 | | S25 T26 R12W ALL OF SECTION |
| 16804 | | S26 T26 R12W SW1/4(LESS NE SW) SE1/4 |
| 16806 | | S27 T26 R12W NW1/4(LESS SE NW) SW1/4, SE(S1/2) |
| 16807 | | S28 T26 R12W ALL OF SECTION |
| 16808 | | S29 T26 R12W S1/2 NE SW1/4 SE1/4 |
| 16812 | | S31 T26 R12W NE1/4(LESS NE NE) E1/2 NW, NE SW NE SE |
| 16815 | | S32 T26 R12W NE1/4(LESS SW NE) NW(W1/2) NE SE |
| 16817 | | S33 T26 R12W ALL OF SECTION LESS TAX 1 |
| 16819 | | S34 T26 R12W ALL OF SECTION LESS TAX 1 |
| 16820 | | S34 T26 R12W TAX 1 |
| 16821 | | S35 T26 R12W ALL OF SECTION |
| 16833 | | S1 T26 R13W S 1/2 SW NW |
| 16844 | | S2 T26 R13W SE NE SW1/4(LESS NW SW) SE1/4 |
| 16846 | | S3 T26 R13W LTS 1-4,S1/2 N1/2 OF SECTION,SW1/4LS NESW S1/2 SE |
| 16848 | | S4 T26 R13W GOV LOTS 1-4,S1/2N1/2 SE(LS SWSE) |
| 16852 | | S5 T26 R13W GOV LOTS 1-4, S1/2 N1/2 |
| 16854 | | S6 T26 R13W GOV LTS 1,2,3,4,5 S1/2 NE SE NW |
| 16871 | | S10 T26 R13W NE1/4(LESS SE NE) E1/2 NW SE1/4(LESS NE SE) |
| 16873 | | S11 T26 R13W NE1/4,NW1/4(LS SWNW) S1/2 SW LESS R/W SW SE LESS R/W |
| 16900 | | S15 T26 R13W NE1/4 NW1/4 SW1/4 |
| 16906 | | S17 T26 R13W E1/2 SW SE1/4 |
| 17009 | | S27 T26 R13W GOV LOT 2(S OF HWY 101) S1/2 OF SECTION |
| 17043 | | S34 T26 R13W N1/2NWNW,NENW,N1/2SENW,S1/2SE |
| 17060 | | S35 T26 R13W NE1/4 SW1/4 |
| 17064 | | S1 T26 R14W GOV LOTS 1,2,3 S1/2 NE SE NW, SE1/4 |
| 17069 | | S12 T26 R14W NE1/4 LESS SW NE E1/2 SE |
| 17071 | | S13 T26 R14W NE NE |
| 18928 | | S35 T27 R12W S1/2 NW1/4 |
| 18984 | | S19 T27 R13W GOV LOTS 3,4 SE SW SE1/4(LESS NW SE) |
| 18990 | | S29 T27 R13W E1/2 SW W1/2 SE |
| 18991 | | S30 T27 R13W GOV LOTS 1,2,3,4 BALANCE OF SECTION |
| 18992 | | S31 T27 R13W GOV LOTS 1,2,3,4 BALANCE OF SECTION |
| 18993 | | S32 T27 R13W ALL OF SECTION |
| 18994 | | S33 T27 R13W ALL OF SECTION |
| 18995 | | S34 T27 R13W ALL OF SECTION |
| 18996 | | S35 T27 R13W ALL OF SECTION(LESS NE1/4) LOT CERT MLA21-00071 AF#647372 |
| 18998 | | S1 T27 R14W LOTS 1 THRU 12 BALANCE OF SECTION |
| 18999 | | S2 T27 R14W GOV LOTS 1 THRU 12 SE 1/4 |
| 19000 | | S2 T27 R14W SW1/4 |
| 19001 | | S3 T27 R14W GOV LOTS 1 THRU 12 BALANCE OF SECTION |
| 19002 | | S4 T27 R14W GOV LOTS 1,2,3,4 BALANCE OF SECTION |
| 19003 | | S5 T27 R14W GOV LOTS 1,2,3,4 BALANCE OF SECTION |
| 19005 | | S6 T27 R14W GOV LOT 3 SE NW |
| 19010 | | S8 T27 R14W E3/4 |
| 19012 | | S9 T27 R14W ALL OF SECTION |
| 19013 | | S10 T27 R14W ALL OF SECTION (LESS NW NE) |
| 19015 | | S11 T27 R14W ALL OF SECTION |
| 19016 | | S12 T27 R14W ALL OF SECTION |
| 19017 | | S13 T27 R14W ALL OF SECTION |
| 19018 | | S14 T27 R14W ALL OF SECTION |
| 19019 | | S15 T27 R14W ALL OF SECTION LESS S1/2 S1/2 SW SW |
| 19020 | | S15 T27 R14W S1/2 S1/2 SW SW |
| 19021 | | S16 T27 R14W ALL OF SECTION (LESS S1/2 SW) |
| 19024 | | S23 T27 R14W E1/2 N1/2 NW |
| 19025 | | S23 T27 R14W S1/2 NW N1/2 SW |
| 19028 | | S24 T27 R14W ALL OF SECTION |
| 19029 | | S25 T27 R14W ALL OF SECTION |
| 275900 | | S26 T26N R13W S 1/2 OF SECTION LOT CERTIFICATION AF#588272 |
| 275901 | | S14 T26N R13W NW1/4(LS OIL CITY RD) LOT CERT AF#588271 |
| 275903 | | S3 T26N R12W N1/2 SW LOT CERT AF#588270/590178 |