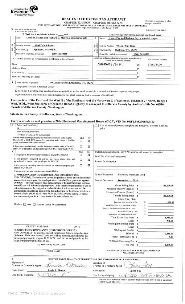
Property
Account |
| Property ID: | 17082 | Abbreviated Legal Description: | S4 T27 R1W TAX 17 |
| Parcel # / Geo ID: | 701043002 | Agent Code: | |
| Type: | Real | | |
| Tax Area: | 0323 - 1-48F2E2P1H2C2L1 | Land Use Code | 11 |
| Open Space: | N | DFL | N |
| Historic Property: | N | Remodel Property: | N |
| Multi-Family Redevelopment: | N | | |
| Township: | 27N | Section: | 4 |
| Range: | 1W |
Location |
| Address: | 871 CARL JOHNSON RD QUILCENE, WA 98376 | Mapsco: | 134/038 |
| Neighborhood: | S4 T27N R1W & ANDERSON SHORT PLAT | Map ID: | |
| Neighborhood CD: | 2315 |
Owner |
| Name: | CHERYL A & EDWARD A MCCLANAHAN | Owner ID: | 21940 |
| Mailing Address: | 871 CARL JOHNSON RD QUILCENE, WA 98376-9713 | % Ownership: | 100.0000000000% |
| | | Exemptions: | |
Pay Tax Due
There is currently No Amount Due on this property.
Taxes and Assessment Details
Property Tax Information as of
10/24/2025
Click on "Statement Details" to expand or collapse a tax statement.
* Please enter a valid date ** Please enter a valid date *
Statement Details |
| | TOTAL: | $0.00 | $0.00 | $0.00 | $0.00 | $0.00 | $0.00 |
|
| | $0.00 | $0.00 | $0.00 | $0.00 | $0.00 | $0.00 |
Values
| (+) Improvement Homesite Value: | + | $137,088 | |
| (+) Improvement Non-Homesite Value: | + | $0 | |
| (+) Land Homesite Value: | + | $498,554 | |
| (+) Land Non-Homesite Value: | + | $0 | |
| (+) Curr Use (HS): | + | $0 | $0 |
| (+) Curr Use (NHS): | + | $0 | $0 |
| | | -------------------------- | |
| (=) Market Value: | = | $635,642 | |
| (–) Productivity Loss: | – | $0 | |
| | | -------------------------- | |
| (=) Subtotal: | = | $635,642 | |
| (+) Senior Appraised Value: | + | $0 | |
| (+) Non-Senior Appraised Value: | + | $635,642 | |
| | | -------------------------- | |
| (=) Total Appraised Value: | = | $635,642 | |
| (–) Senior Exemption Loss: | – | $0 | |
| (–) Exemption Loss: | – | $0 | |
| | | -------------------------- | |
| (=) Taxable Value: | = | $635,642 | |
Taxing Jurisdiction
| Owner: | CHERYL A & EDWARD A MCCLANAHAN | | |
| % Ownership: | 100.0000000000% | | |
| Total Value: | N/A | | |
| Tax Area: | 0323 - 1-48F2E2P1H2C2L1 |
| CE | COUNTY CURRENT EXPENSE | N/A | N/A | N/A | N/A | | |
| CNTYDD | DEVELOPMENTAL DISABILITIES | N/A | N/A | N/A | N/A | | |
| CNTYVET | VETERANS RELIEF | N/A | N/A | N/A | N/A | | |
| MENTAL | MENTAL HEALTH | N/A | N/A | N/A | N/A | | |
| ROADS | COUNTY ROADS | N/A | N/A | N/A | N/A | | |
| ROADSCU | COUNTY ROADS TO CUR EXP | N/A | N/A | N/A | N/A | | |
| HOSP2CASH | HOSP DIST #2 GENERAL | N/A | N/A | N/A | N/A | | |
| SCH48MO | SCHOOL DIST #48 EP & O | N/A | N/A | N/A | N/A | | |
| CEM2 | CEMETERY DIST #2 GENERAL | N/A | N/A | N/A | N/A | | |
| CONSERVE | CONSERVATION FUTURES | N/A | N/A | N/A | N/A | | |
| FD2 | FIRE DIST #2 GENERAL | N/A | N/A | N/A | N/A | | |
| LIB1 | LIBRARY DIST #1 GENERAL | N/A | N/A | N/A | N/A | | |
| PARK1 | PARK & REC DIST #1 GENERAL | N/A | N/A | N/A | N/A | | |
| PORTPT | PORT OF PT GENERAL | N/A | N/A | N/A | N/A | | |
| PORTPTIDD | PORT OF PT IDD 2019 | N/A | N/A | N/A | N/A | | |
| PUD1 | PUD #1 GENERAL | N/A | N/A | N/A | N/A | | |
| STATE | STATE SCHOOL PART 1 | N/A | N/A | N/A | N/A | | |
| STATE2 | STATE SCHOOL PART 2 | N/A | N/A | N/A | N/A | | |
| EMS2 | FIRE DIST #2 EMS | N/A | N/A | N/A | N/A | | |
| | Total Tax Rate: | N/A | | | | | |
| | | | | Taxes w/Current Exemptions: | N/A | | |
| | | | | Taxes w/o Exemptions: | N/A | | |
Improvement / Building
| Improvement #1: | Residential Bldg | State Code: | 11 | 1920.0 sqft | Value: | $137,088 |
| Bathrooms (#): | 2 (FULL) | Bedrooms (#): | 3 | | Exterior Wall: | SI/ST | Fireplace: | SIN 1-AVG | | Fireplace: | WD ST-AVG | Floor Construction: | FRAME | | Foundation: | CONPR | Heating/Cooling: | ELBB | | Inside Verify: | YES-FIX | Roof Cover: | SHAKE |
|
| | Type | Description | Class CD | Sub Class CD | Year Built | Area |
| | MA | Main Area | 2+ | 15SU | 1951 | 1556.0 |
| | MA2 | Second Floor Main Area | 2+ | 15SU | 1951 | 364.0 |
| | HCPOR | House Concrete Porch | 2 | * | 1951 | 286.0 |
| | CARPT | Carport (Table Not Dep) | 1 | * | 1951 | 720.0 |
| | OTHER | Other | * | * | 1951 | 0.0 |
| | BSMTU | House basement unfinished | 1 | * | 1951 | 648.0 |
Sketch
| No sketches available for this property. |
Property Image
Land
| 1 | 2315-1517F | Mud Flat Waterfront on Tarboo Bay | 0.0000 | 0.00 | 0.00 | 0.00 | 0.00 | $92,374 | $0 |
| 2 | 2315-1516F | Mud Flat Waterfront on Tarboo Bay w/Amenities | 0.0000 | 0.00 | 0.00 | 0.00 | 0.00 | $218,500 | $0 |
| 3 | 2315-1516F | Mud Flat Waterfront on Tarboo Bay w/Amenities | 0.0000 | 0.00 | 0.00 | 0.00 | 0.00 | $187,680 | $0 |
Roll Value History
| 2025 | N/A | N/A | N/A | N/A | N/A |
| 2024 | $131,376 | $476,878 | $0 | $608,254 | $608,254 |
| 2023 | $125,664 | $449,951 | $0 | $575,615 | $575,615 |
| 2022 | $114,240 | $423,525 | $0 | $537,765 | $537,765 |
| 2021 | $94,609 | $376,354 | $0 | $470,963 | $470,963 |
Deed and Sales History
| 1 | 07/19/2017 | QCD | Quit Claim Deed | EDWARD A MCCLANAHAN | CHERYL A & EDWARD A MCCLANAHAN | | | | 128166 | |
| 2 | 02/12/2009 | QCD | Quit Claim Deed | MCCLANAHAN, W. JOYCE/RALP | EDWARD A MCCLANAHAN | 0 | 0 | $0.00 | 112513 | 0 |
Payout Agreement
| No payout information available.. |