Property
Account |
| Property ID: | 17124 | Abbreviated Legal Description: | S5 T27 R1W TAX 7 |
| Parcel # / Geo ID: | 701051006 | Agent Code: | |
| Type: | Real | | |
| Tax Area: | 0323 - 1-48F2E2P1H2C2L1 | Land Use Code | 11 |
| Open Space: | N | DFL | N |
| Historic Property: | N | Remodel Property: | N |
| Multi-Family Redevelopment: | N | | |
| Township: | 27N | Section: | 5 |
| Range: | 1W |
Location |
| Address: | 4800 DABOB RD QUILCENE, WA 98376 | Mapsco: | 135/021 |
| Neighborhood: | S5 T27N R1W | Map ID: | |
| Neighborhood CD: | 2310 |
Owner |
| Name: | RICHARD C MADEN | Owner ID: | 21390 |
| Mailing Address: | LINDA R MADEN 4800 DABOB RD QUILCENE, WA 98376-9732 | % Ownership: | 100.0000000000% |
| | | Exemptions: | |
Pay Tax Due
There is currently No Amount Due on this property.
Taxes and Assessment Details
Property Tax Information as of
10/24/2025
Click on "Statement Details" to expand or collapse a tax statement.
* Please enter a valid date ** Please enter a valid date *
Statement Details |
| | TOTAL: | $0.00 | $0.00 | $0.00 | $0.00 | $0.00 | $0.00 |
|
| | $0.00 | $0.00 | $0.00 | $0.00 | $0.00 | $0.00 |
Values
| (+) Improvement Homesite Value: | + | $0 | |
| (+) Improvement Non-Homesite Value: | + | $146,746 | |
| (+) Land Homesite Value: | + | $0 | |
| (+) Land Non-Homesite Value: | + | $107,456 | |
| (+) Curr Use (HS): | + | $0 | $0 |
| (+) Curr Use (NHS): | + | $0 | $0 |
| | | -------------------------- | |
| (=) Market Value: | = | $254,202 | |
| (–) Productivity Loss: | – | $0 | |
| | | -------------------------- | |
| (=) Subtotal: | = | $254,202 | |
| (+) Senior Appraised Value: | + | $0 | |
| (+) Non-Senior Appraised Value: | + | $254,202 | |
| | | -------------------------- | |
| (=) Total Appraised Value: | = | $254,202 | |
| (–) Senior Exemption Loss: | – | $0 | |
| (–) Exemption Loss: | – | $0 | |
| | | -------------------------- | |
| (=) Taxable Value: | = | $254,202 | |
Taxing Jurisdiction
| Owner: | RICHARD C MADEN | | |
| % Ownership: | 100.0000000000% | | |
| Total Value: | N/A | | |
| Tax Area: | 0323 - 1-48F2E2P1H2C2L1 |
| CE | COUNTY CURRENT EXPENSE | N/A | N/A | N/A | N/A | | |
| CNTYDD | DEVELOPMENTAL DISABILITIES | N/A | N/A | N/A | N/A | | |
| CNTYVET | VETERANS RELIEF | N/A | N/A | N/A | N/A | | |
| MENTAL | MENTAL HEALTH | N/A | N/A | N/A | N/A | | |
| ROADS | COUNTY ROADS | N/A | N/A | N/A | N/A | | |
| ROADSCU | COUNTY ROADS TO CUR EXP | N/A | N/A | N/A | N/A | | |
| HOSP2CASH | HOSP DIST #2 GENERAL | N/A | N/A | N/A | N/A | | |
| SCH48MO | SCHOOL DIST #48 EP & O | N/A | N/A | N/A | N/A | | |
| CEM2 | CEMETERY DIST #2 GENERAL | N/A | N/A | N/A | N/A | | |
| CONSERVE | CONSERVATION FUTURES | N/A | N/A | N/A | N/A | | |
| FD2 | FIRE DIST #2 GENERAL | N/A | N/A | N/A | N/A | | |
| LIB1 | LIBRARY DIST #1 GENERAL | N/A | N/A | N/A | N/A | | |
| PARK1 | PARK & REC DIST #1 GENERAL | N/A | N/A | N/A | N/A | | |
| PORTPT | PORT OF PT GENERAL | N/A | N/A | N/A | N/A | | |
| PORTPTIDD | PORT OF PT IDD 2019 | N/A | N/A | N/A | N/A | | |
| PUD1 | PUD #1 GENERAL | N/A | N/A | N/A | N/A | | |
| STATE | STATE SCHOOL PART 1 | N/A | N/A | N/A | N/A | | |
| STATE2 | STATE SCHOOL PART 2 | N/A | N/A | N/A | N/A | | |
| EMS2 | FIRE DIST #2 EMS | N/A | N/A | N/A | N/A | | |
| | Total Tax Rate: | N/A | | | | | |
| | | | | Taxes w/Current Exemptions: | N/A | | |
| | | | | Taxes w/o Exemptions: | N/A | | |
Improvement / Building
| Improvement #1: | Manufactured Home | State Code: | 11 | 1512.0 sqft | Value: | $146,746 |
| Exterior Wall: | PL/T1 | Fireplace: | WD ST-AVG | | Floor Construction: | FRAME | Foundation: | PO&BL | | Heating/Cooling: | F/A | Roof Cover: | COMP |
|
| | Type | Description | Class CD | Sub Class CD | Year Built | Area |
| | MA | Main Area | 3+ | MDBL | 1990 | 1512.0 |
| | MWPOR | MH Wood Porch | 3 | * | 1990 | 664.0 |
| | MDET | MH Detached Garage | 2 | MDBL | 1990 | 720.0 |
| | OTHER | Other | * | * | 1990 | 0.0 |
Sketch
| No sketches available for this property. |
Property Image
Land
| 1 | 2310-1374S | Avg+ Terr/Mtn View Sites 1+/- Acre | 1.0000 | 43560.00 | 0.00 | 0.00 | 1.00 | $80,500 | $0 |
| 2 | 1575A | Terr/Mtn/No View <6 Acres | 2.9300 | 127630.80 | 0.00 | 0.00 | 0.00 | $26,956 | $0 |
Roll Value History
| 2025 | N/A | N/A | N/A | N/A | N/A |
| 2024 | $140,631 | $102,784 | $0 | $243,415 | $243,415 |
| 2023 | $134,517 | $91,324 | $0 | $225,841 | $225,841 |
| 2022 | $122,288 | $79,778 | $0 | $202,066 | $202,066 |
| 2021 | $101,273 | $71,580 | $0 | $172,853 | $172,853 |
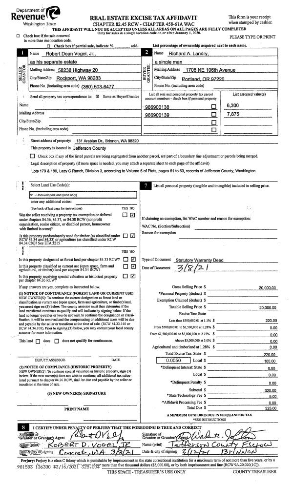
Deed and Sales History
| 1 | 02/19/1999 | SWD | Statutory Warranty Deed | FUGERE, WAYNE D/NORITA G | MADEN, RICHARD C/LINDA R | 0 | 0 | $115,000.00 | 86384 | 0 |
Payout Agreement
| No payout information available.. |