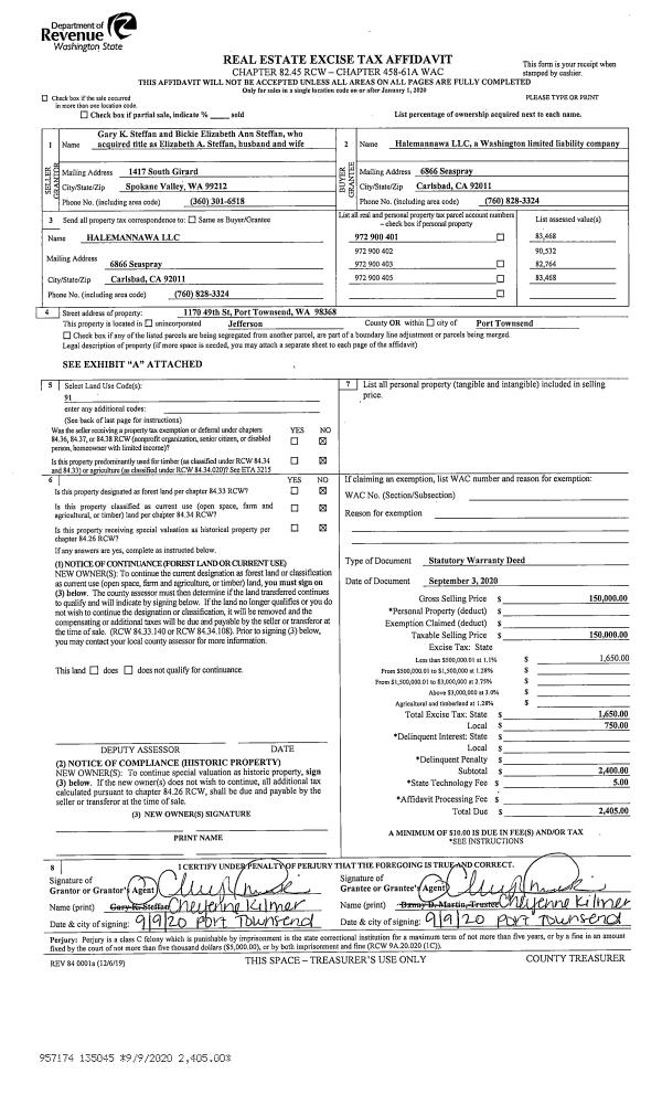
Property
Account |
| Property ID: | 17217 | Abbreviated Legal Description: | S9 T27 R1W TAX 8(W/DABOB PO RD EXTENDED) PTN PARCEL 2 SURVEY V13/P222 SUBJ/ESMT ALG S15'& W/10'WTRLN ES |
| Parcel # / Geo ID: | 701091002 | Agent Code: | |
| Type: | Real | | |
| Tax Area: | 0323 - 1-48F2E2P1H2C2L1 | Land Use Code | 11 |
| Open Space: | N | DFL | N |
| Historic Property: | N | Remodel Property: | N |
| Multi-Family Redevelopment: | N | | |
| Township: | 27N | Section: | 9 |
| Range: | 1W |
Location |
| Address: | 2070 DABOB POST OFFICE RD QUILCENE, WA 98376 | Mapsco: | 137/048 |
| Neighborhood: | S9 T27N R1W | Map ID: | |
| Neighborhood CD: | 2320 |
Owner |
| Name: | JESSICA GOSSETTE | Owner ID: | 16759 |
| Mailing Address: | JEROME J GOSSETTE 2070 DABOB POST OFFICE RD QUILCENE, WA 98376-9718 | % Ownership: | 100.0000000000% |
| | | Exemptions: | |
Pay Tax Due
There is currently No Amount Due on this property.
Taxes and Assessment Details
Property Tax Information as of
10/24/2025
Click on "Statement Details" to expand or collapse a tax statement.
* Please enter a valid date ** Please enter a valid date *
Statement Details |
| | TOTAL: | $0.00 | $0.00 | $0.00 | $0.00 | $0.00 | $0.00 |
|
| | $0.00 | $0.00 | $0.00 | $0.00 | $0.00 | $0.00 |
Values
| (+) Improvement Homesite Value: | + | $0 | |
| (+) Improvement Non-Homesite Value: | + | $80,548 | |
| (+) Land Homesite Value: | + | $0 | |
| (+) Land Non-Homesite Value: | + | $427,800 | |
| (+) Curr Use (HS): | + | $0 | $0 |
| (+) Curr Use (NHS): | + | $0 | $0 |
| | | -------------------------- | |
| (=) Market Value: | = | $508,348 | |
| (–) Productivity Loss: | – | $0 | |
| | | -------------------------- | |
| (=) Subtotal: | = | $508,348 | |
| (+) Senior Appraised Value: | + | $0 | |
| (+) Non-Senior Appraised Value: | + | $508,348 | |
| | | -------------------------- | |
| (=) Total Appraised Value: | = | $508,348 | |
| (–) Senior Exemption Loss: | – | $0 | |
| (–) Exemption Loss: | – | $0 | |
| | | -------------------------- | |
| (=) Taxable Value: | = | $508,348 | |
Taxing Jurisdiction
| Owner: | JESSICA GOSSETTE | | |
| % Ownership: | 100.0000000000% | | |
| Total Value: | N/A | | |
| Tax Area: | 0323 - 1-48F2E2P1H2C2L1 |
| CE | COUNTY CURRENT EXPENSE | N/A | N/A | N/A | N/A | | |
| CNTYDD | DEVELOPMENTAL DISABILITIES | N/A | N/A | N/A | N/A | | |
| CNTYVET | VETERANS RELIEF | N/A | N/A | N/A | N/A | | |
| MENTAL | MENTAL HEALTH | N/A | N/A | N/A | N/A | | |
| ROADS | COUNTY ROADS | N/A | N/A | N/A | N/A | | |
| ROADSCU | COUNTY ROADS TO CUR EXP | N/A | N/A | N/A | N/A | | |
| HOSP2CASH | HOSP DIST #2 GENERAL | N/A | N/A | N/A | N/A | | |
| SCH48MO | SCHOOL DIST #48 EP & O | N/A | N/A | N/A | N/A | | |
| CEM2 | CEMETERY DIST #2 GENERAL | N/A | N/A | N/A | N/A | | |
| CONSERVE | CONSERVATION FUTURES | N/A | N/A | N/A | N/A | | |
| FD2 | FIRE DIST #2 GENERAL | N/A | N/A | N/A | N/A | | |
| LIB1 | LIBRARY DIST #1 GENERAL | N/A | N/A | N/A | N/A | | |
| PARK1 | PARK & REC DIST #1 GENERAL | N/A | N/A | N/A | N/A | | |
| PORTPT | PORT OF PT GENERAL | N/A | N/A | N/A | N/A | | |
| PORTPTIDD | PORT OF PT IDD 2019 | N/A | N/A | N/A | N/A | | |
| PUD1 | PUD #1 GENERAL | N/A | N/A | N/A | N/A | | |
| STATE | STATE SCHOOL PART 1 | N/A | N/A | N/A | N/A | | |
| STATE2 | STATE SCHOOL PART 2 | N/A | N/A | N/A | N/A | | |
| EMS2 | FIRE DIST #2 EMS | N/A | N/A | N/A | N/A | | |
| | Total Tax Rate: | N/A | | | | | |
| | | | | Taxes w/Current Exemptions: | N/A | | |
| | | | | Taxes w/o Exemptions: | N/A | | |
Improvement / Building
| Improvement #1: | Residential Bldg | State Code: | 11 | 960.0 sqft | Value: | $80,548 |
| Bathrooms (#): | 1 (FULL) | Bathrooms (#): | 1 (HALF) | | Exterior Wall: | SI/ST | Fireplace: | DBL 2-AVG | | Floor Construction: | FRAME | Foundation: | CONPR | | Heating/Cooling: | F/A | Inside Verify: | YES-FIX | | Roof Cover: | METAL |   |   |
|
| | Type | Description | Class CD | Sub Class CD | Year Built | Area |
| | MA | Main Area | 2+ | 1S | 1970 | 960.0 |
| | HDECK | House Deck | 2 | * | 1970 | 478.0 |
| | BSMTF | House basement finished | 1 | * | 1970 | 144.0 |
| | BSMTU | House basement unfinished | 1 | * | 1970 | 816.0 |
Sketch
Property Image
Land
| 1 | 2320-1516F | Mud Flat Waterfront on Tarboo Bay w/Amenities | 0.0000 | 0.00 | 0.00 | 0.00 | 0.00 | $218,500 | $0 |
| 2 | 2320-1516F | Mud Flat Waterfront on Tarboo Bay w/Amenities | 0.0000 | 0.00 | 0.00 | 0.00 | 0.00 | $95,680 | $0 |
| 3 | 2320-1517F | Mud Flat Waterfront on Tarboo Bay | 0.0000 | 0.00 | 0.00 | 0.00 | 0.00 | $113,620 | $0 |
Roll Value History
| 2025 | N/A | N/A | N/A | N/A | N/A |
| 2024 | $77,191 | $409,200 | $0 | $486,391 | $486,391 |
| 2023 | $73,835 | $385,350 | $0 | $459,185 | $459,185 |
| 2022 | $67,123 | $362,000 | $0 | $429,123 | $429,123 |
| 2021 | $55,589 | $319,872 | $0 | $375,461 | $375,461 |
Deed and Sales History
| 1 | 11/09/2019 | QCD | Quit Claim Deed | | | | | | 133513 | |
| 2 | 03/21/2005 | QCD | Quit Claim Deed | GOSSETTE, JESSICA | GOSSETTE, JEROME J/JESSICA | 0 | 0 | $0.00 | 103078 | 0 |
Payout Agreement
| No payout information available.. |