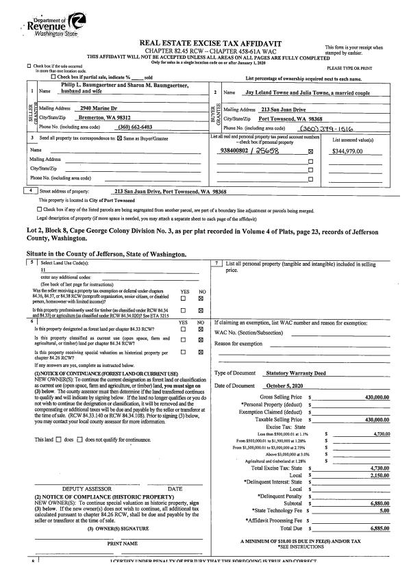
Property
Account |
| Property ID: | 17426 | Abbreviated Legal Description: | S19 T27 R1W TAX 51 & TL TAX L |
| Parcel # / Geo ID: | 701191009 | Agent Code: | |
| Type: | Real | | |
| Tax Area: | 0321 - 1-48F2E2H2C2L1 | Land Use Code | 11 |
| Open Space: | N | DFL | N |
| Historic Property: | N | Remodel Property: | N |
| Multi-Family Redevelopment: | N | | |
| Township: | 27N | Section: | 19 |
| Range: | 1W |
Location |
| Address: | 1310 EAST QUILCENE RD QUILCENE, WA 98376 | Mapsco: | 142/042 |
| Neighborhood: | S19T27R1W(W OF BAY)/QUIL BAY VISTA/QUILCREST/HOY/BATCHELDER | Map ID: | |
| Neighborhood CD: | 2340 |
Owner |
| Name: | BOCKUS LIVING TRUST | Owner ID: | 103533 |
| Mailing Address: | DANIEL BOCKUS TRUSTEE ALISON BOCKUS TRUSTEE 11905 SW 204TH ST VASHON, WA 98070-6443 | % Ownership: | 100.0000000000% |
| | | Exemptions: | |
Pay Tax Due
There is currently No Amount Due on this property.
Taxes and Assessment Details
Property Tax Information as of
10/24/2025
Click on "Statement Details" to expand or collapse a tax statement.
* Please enter a valid date ** Please enter a valid date *
Statement Details |
| | TOTAL: | $0.00 | $0.00 | $0.00 | $0.00 | $0.00 | $0.00 |
|
| | $0.00 | $0.00 | $0.00 | $0.00 | $0.00 | $0.00 |
Values
| (+) Improvement Homesite Value: | + | $0 | |
| (+) Improvement Non-Homesite Value: | + | $92,960 | |
| (+) Land Homesite Value: | + | $0 | |
| (+) Land Non-Homesite Value: | + | $182,350 | |
| (+) Curr Use (HS): | + | $0 | $0 |
| (+) Curr Use (NHS): | + | $0 | $0 |
| | | -------------------------- | |
| (=) Market Value: | = | $275,310 | |
| (–) Productivity Loss: | – | $0 | |
| | | -------------------------- | |
| (=) Subtotal: | = | $275,310 | |
| (+) Senior Appraised Value: | + | $0 | |
| (+) Non-Senior Appraised Value: | + | $275,310 | |
| | | -------------------------- | |
| (=) Total Appraised Value: | = | $275,310 | |
| (–) Senior Exemption Loss: | – | $0 | |
| (–) Exemption Loss: | – | $0 | |
| | | -------------------------- | |
| (=) Taxable Value: | = | $275,310 | |
Taxing Jurisdiction
| Owner: | BOCKUS LIVING TRUST | | |
| % Ownership: | 100.0000000000% | | |
| Total Value: | N/A | | |
| Tax Area: | 0321 - 1-48F2E2H2C2L1 |
| CE | COUNTY CURRENT EXPENSE | N/A | N/A | N/A | N/A | | |
| CNTYDD | DEVELOPMENTAL DISABILITIES | N/A | N/A | N/A | N/A | | |
| CNTYVET | VETERANS RELIEF | N/A | N/A | N/A | N/A | | |
| MENTAL | MENTAL HEALTH | N/A | N/A | N/A | N/A | | |
| ROADS | COUNTY ROADS | N/A | N/A | N/A | N/A | | |
| ROADSCU | COUNTY ROADS TO CUR EXP | N/A | N/A | N/A | N/A | | |
| HOSP2CASH | HOSP DIST #2 GENERAL | N/A | N/A | N/A | N/A | | |
| SCH48MO | SCHOOL DIST #48 EP & O | N/A | N/A | N/A | N/A | | |
| CEM2 | CEMETERY DIST #2 GENERAL | N/A | N/A | N/A | N/A | | |
| CONSERVE | CONSERVATION FUTURES | N/A | N/A | N/A | N/A | | |
| FD2 | FIRE DIST #2 GENERAL | N/A | N/A | N/A | N/A | | |
| LIB1 | LIBRARY DIST #1 GENERAL | N/A | N/A | N/A | N/A | | |
| PORTPT | PORT OF PT GENERAL | N/A | N/A | N/A | N/A | | |
| PORTPTIDD | PORT OF PT IDD 2019 | N/A | N/A | N/A | N/A | | |
| PUD1 | PUD #1 GENERAL | N/A | N/A | N/A | N/A | | |
| STATE | STATE SCHOOL PART 1 | N/A | N/A | N/A | N/A | | |
| STATE2 | STATE SCHOOL PART 2 | N/A | N/A | N/A | N/A | | |
| EMS2 | FIRE DIST #2 EMS | N/A | N/A | N/A | N/A | | |
| | Total Tax Rate: | N/A | | | | | |
| | | | | Taxes w/Current Exemptions: | N/A | | |
| | | | | Taxes w/o Exemptions: | N/A | | |
Improvement / Building
| Improvement #1: | Residential Bldg | State Code: | 11 | 888.0 sqft | Value: | $92,960 |
| Bathrooms (#): | 1 (FULL) | Bedrooms (#): | 2 | | Exterior Wall: | SI/ST | Fireplace: | WD ST-AVG | | Floor Construction: | FRAME | Foundation: | CONPR | | Heating/Cooling: | F/A | Inside Verify: | YES-FIX | | Roof Cover: | COMP |   |   |
|
| | Type | Description | Class CD | Sub Class CD | Year Built | Area |
| | MA | Main Area | 2 | 1S | 1950 | 888.0 |
| | HDECK | House Deck | 2 | * | 1950 | 370.0 |
| | HENCL | House Enclosure | 2 | * | 1950 | 55.0 |
| | OTHER | Other | * | * | 1950 | 0.0 |
| | BSMTU | House basement unfinished | 1 | * | 1950 | 520.0 |
Sketch
Property Image
Land
| 1 | 2340-1517F | Mud Flat Waterfront on Quilcene Bay | 0.0000 | 0.00 | 0.00 | 0.00 | 0.00 | $181,125 | $0 |
| 2 | 9302F | Tidelands Low Quality or Mud Flats | 0.0000 | 0.00 | 0.00 | 0.00 | 0.00 | $1,225 | $0 |
Roll Value History
| 2025 | N/A | N/A | N/A | N/A | N/A |
| 2024 | $89,087 | $174,422 | $0 | $263,509 | $263,509 |
| 2023 | $85,214 | $153,565 | $0 | $238,779 | $238,779 |
| 2022 | $77,467 | $148,565 | $0 | $226,032 | $226,032 |
| 2021 | $67,363 | $135,852 | $0 | $203,215 | $203,215 |
Deed and Sales History
| 1 | 07/28/2025 | PRD | Personal Representatives Deed | SHARON L GRACE | BOCKUS LIVING TRUST | | | $295,000.00 | 144681 | |
|   | |
| 2 | 10/31/2018 | PRD | Personal Representatives Deed | | BOCKUS LIVING TRUST | | | | 131435 | |
| 3 | 04/22/1993 | SWD | Statutory Warranty Deed | GRACE, HERBERT E/JUANITA | GRACE, HERBERT E JR/SHARON L | 0 | 0 | $0.00 | 71018 | 0 |
Payout Agreement
| No payout information available.. |