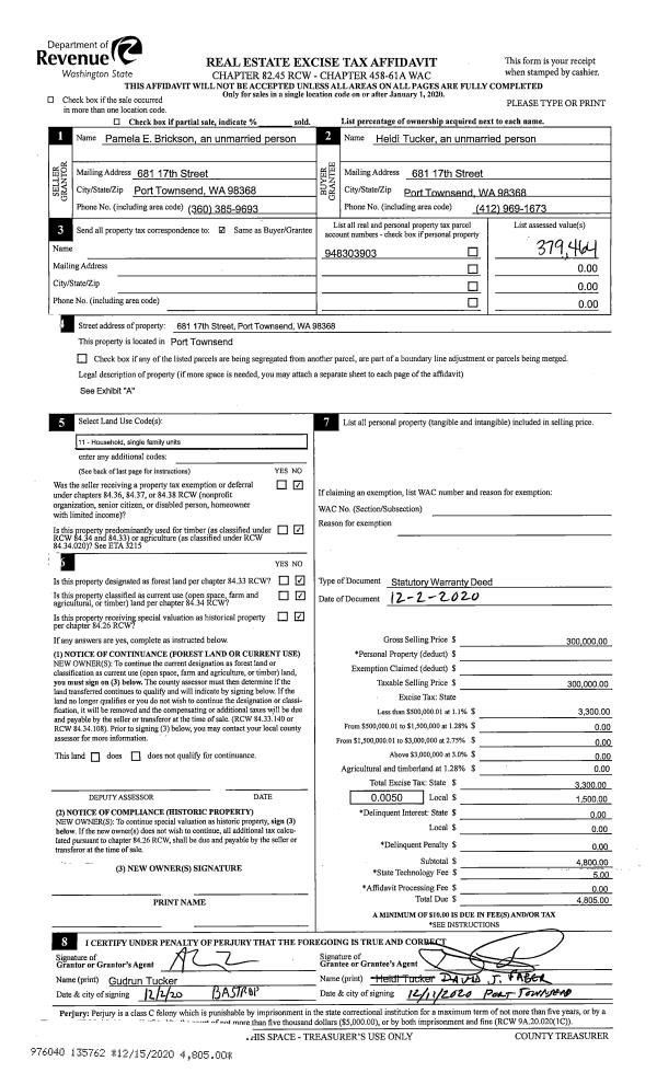
Property
Account |
| Property ID: | 17539 | Abbreviated Legal Description: | S22 T27 R1W LOT 2(S1/2)ENLG BY TAX 27 |
| Parcel # / Geo ID: | 701222003 | Agent Code: | |
| Type: | Real | | |
| Tax Area: | 0323 - 1-48F2E2P1H2C2L1 | Land Use Code | 11 |
| Open Space: | N | DFL | N |
| Historic Property: | N | Remodel Property: | N |
| Multi-Family Redevelopment: | N | | |
| Township: | 27N | Section: | 22 |
| Range: | 1W |
Location |
| Address: | 1774 TOANDOS RD QUILCENE, WA 98376 | Mapsco: | 144/018 |
| Neighborhood: | S22 T27W R1W | Map ID: | |
| Neighborhood CD: | 2370 |
Owner |
| Name: | JACQUELINE SUND | Owner ID: | 103707 |
| Mailing Address: | SCOTT SUND STEVEN SUND PO BOX 1206 PORT HADLOCK, WA 98339 | % Ownership: | 100.0000000000% |
| | | Exemptions: | |
Pay Tax Due
There is currently No Amount Due on this property.
Taxes and Assessment Details
Property Tax Information as of
10/24/2025
Click on "Statement Details" to expand or collapse a tax statement.
* Please enter a valid date ** Please enter a valid date *
Statement Details |
| | TOTAL: | $0.00 | $0.00 | $0.00 | $0.00 | $0.00 | $0.00 |
|
| | $0.00 | $0.00 | $0.00 | $0.00 | $0.00 | $0.00 |
Values
| (+) Improvement Homesite Value: | + | $0 | |
| (+) Improvement Non-Homesite Value: | + | $717,705 | |
| (+) Land Homesite Value: | + | $0 | |
| (+) Land Non-Homesite Value: | + | $791,085 | |
| (+) Curr Use (HS): | + | $0 | $0 |
| (+) Curr Use (NHS): | + | $0 | $0 |
| | | -------------------------- | |
| (=) Market Value: | = | $1,508,790 | |
| (–) Productivity Loss: | – | $0 | |
| | | -------------------------- | |
| (=) Subtotal: | = | $1,508,790 | |
| (+) Senior Appraised Value: | + | $0 | |
| (+) Non-Senior Appraised Value: | + | $1,508,790 | |
| | | -------------------------- | |
| (=) Total Appraised Value: | = | $1,508,790 | |
| (–) Senior Exemption Loss: | – | $0 | |
| (–) Exemption Loss: | – | $0 | |
| | | -------------------------- | |
| (=) Taxable Value: | = | $1,508,790 | |
Taxing Jurisdiction
| Owner: | JACQUELINE SUND | | |
| % Ownership: | 100.0000000000% | | |
| Total Value: | N/A | | |
| Tax Area: | 0323 - 1-48F2E2P1H2C2L1 |
| CE | COUNTY CURRENT EXPENSE | N/A | N/A | N/A | N/A | | |
| CNTYDD | DEVELOPMENTAL DISABILITIES | N/A | N/A | N/A | N/A | | |
| CNTYVET | VETERANS RELIEF | N/A | N/A | N/A | N/A | | |
| MENTAL | MENTAL HEALTH | N/A | N/A | N/A | N/A | | |
| ROADS | COUNTY ROADS | N/A | N/A | N/A | N/A | | |
| ROADSCU | COUNTY ROADS TO CUR EXP | N/A | N/A | N/A | N/A | | |
| HOSP2CASH | HOSP DIST #2 GENERAL | N/A | N/A | N/A | N/A | | |
| SCH48MO | SCHOOL DIST #48 EP & O | N/A | N/A | N/A | N/A | | |
| CEM2 | CEMETERY DIST #2 GENERAL | N/A | N/A | N/A | N/A | | |
| CONSERVE | CONSERVATION FUTURES | N/A | N/A | N/A | N/A | | |
| FD2 | FIRE DIST #2 GENERAL | N/A | N/A | N/A | N/A | | |
| LIB1 | LIBRARY DIST #1 GENERAL | N/A | N/A | N/A | N/A | | |
| PARK1 | PARK & REC DIST #1 GENERAL | N/A | N/A | N/A | N/A | | |
| PORTPT | PORT OF PT GENERAL | N/A | N/A | N/A | N/A | | |
| PORTPTIDD | PORT OF PT IDD 2019 | N/A | N/A | N/A | N/A | | |
| PUD1 | PUD #1 GENERAL | N/A | N/A | N/A | N/A | | |
| STATE | STATE SCHOOL PART 1 | N/A | N/A | N/A | N/A | | |
| STATE2 | STATE SCHOOL PART 2 | N/A | N/A | N/A | N/A | | |
| EMS2 | FIRE DIST #2 EMS | N/A | N/A | N/A | N/A | | |
| | Total Tax Rate: | N/A | | | | | |
| | | | | Taxes w/Current Exemptions: | N/A | | |
| | | | | Taxes w/o Exemptions: | N/A | | |
Improvement / Building
| Improvement #1: | Residential Bldg | State Code: | 11 | 1386.0 sqft | Value: | $562,135 |
| Bathrooms (#): | 3 (FULL) | Bathrooms (#): | 1 (HALF) | | Bedrooms (#): | 5 | Exterior Wall: | SI/ST | | Fireplace: | SIN 2-GOOD | Floor Construction: | FRAME | | Foundation: | CONPR | Heating/Cooling: | HPUMP | | Inside Verify: | YES-FIX | Roof Cover: | METAL |
|
| | Type | Description | Class CD | Sub Class CD | Year Built | Area |
| | MA | Main Area | 5 | 15SF | 1987 | 1386.0 |
| | PATIO | House Patio | 5 | * | 1987 | 760.0 |
| | HWPOR | House Wood Porch | 5 | * | 1987 | 1368.0 |
| | HDECK | House Deck | 5 | * | 1987 | 486.0 |
| | SHED | Shed (Table Not Dep) | 4 | * | 1987 | 288.0 |
| | OTHER | Other | * | * | 1987 | 0.0 |
| | HLOFT | House Loft | 5 | * | 1987 | 995.0 |
| | BSMTF | House basement finished | 3 | * | 1987 | 1386.0 |
| | GDET | Detached Garage | 3 | * | 1987 | 1152.0 |
| Improvement #2: | Residential Bldg | State Code: | 11 | 792.0 sqft | Value: | $155,570 |
| Bathrooms (#): | 1 (FULL) | Bedrooms (#): | 1 | | Exterior Wall: | SI/ST | Floor Construction: | FRAME | | Foundation: | CONPR | Roof Cover: | METAL |
|
| | Type | Description | Class CD | Sub Class CD | Year Built | Area |
| | MA | Main Area | 3+ | 1S | 2000 | 792.0 |
| | HWPOR | House Wood Porch | 3 | * | 2000 | 180.0 |
| | HDECK | House Deck | 3 | * | 2000 | 780.0 |
Sketch
Property Image
Land
| 1 | 2370-1525F | Medium Bank Waterfront along Hood Cnl/Dabob Bay | 0.0000 | 0.00 | 0.00 | 0.00 | 0.00 | $220,800 | $0 |
| 2 | 2370-1535F | High Bank/Bluff View Wtrfrt W/Limited Access/Topo | 0.0000 | 0.00 | 0.00 | 0.00 | 0.00 | $320,160 | $0 |
| 3 | 2370-1525F | Medium Bank Waterfront along Hood Cnl/Dabob Bay | 0.0000 | 0.00 | 0.00 | 0.00 | 0.00 | $250,125 | $0 |
Roll Value History
| 2025 | N/A | N/A | N/A | N/A | N/A |
| 2024 | $687,801 | $756,690 | $0 | $1,444,491 | $1,444,491 |
| 2023 | $657,897 | $687,900 | $0 | $1,345,797 | $1,345,797 |
| 2022 | $598,088 | $687,900 | $0 | $1,285,988 | $1,285,988 |
| 2021 | $520,076 | $624,360 | $0 | $1,144,436 | $1,144,436 |
Deed and Sales History
| 1 | 10/30/2020 | TRED | Trustee Deed | | | | | | 135577 | |
| 2 | 10/30/2020 | TRED | Trustee Deed | | | | | | 135576 | |
| 3 | 03/01/2016 | QCD | Quit Claim Deed | | | | | | 125674 | |
| 4 | 03/01/2016 | QCD | Quit Claim Deed | | | | | | 125673 | |
| 5 | 03/01/2016 | QCD | Quit Claim Deed | | | | | | 124941 | |
| 6 | 03/01/2016 | QCD | Quit Claim Deed | | | | | | 124940 | |
| 7 | 09/30/2011 | QCD | Quit Claim Deed | SUND, JACQUELINE L | SUND, JACQUELINE L TRUSTEE OF | 0 | 0 | $0.00 | 116591 | 0 |
| 8 | 08/03/2007 | WD | Warranty Deed | SUND, RONALD M ESTATE OF, | SUND, JACQUELINE, TRUSTEE OF T | 0 | 0 | $0.00 | 109778 | 0 |
| 9 | 06/06/1993 | BLA | Boundary Line Adjustment | PHILLIPS, GARY/MARI | PHILLIPS, GARY/MARI | 0 | 0 | $0.00 | 71884 | 0 |
Payout Agreement
| No payout information available.. |