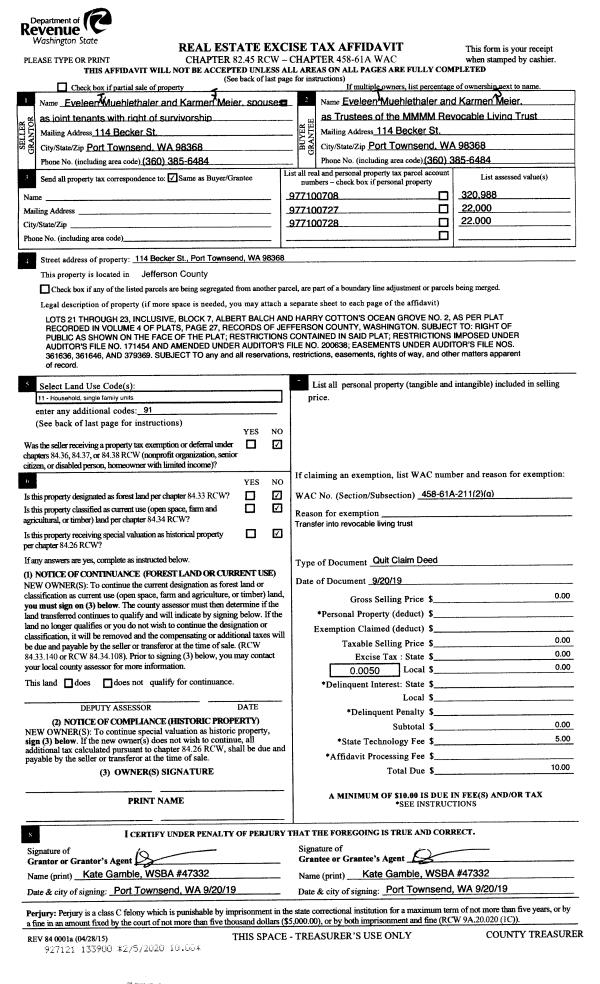
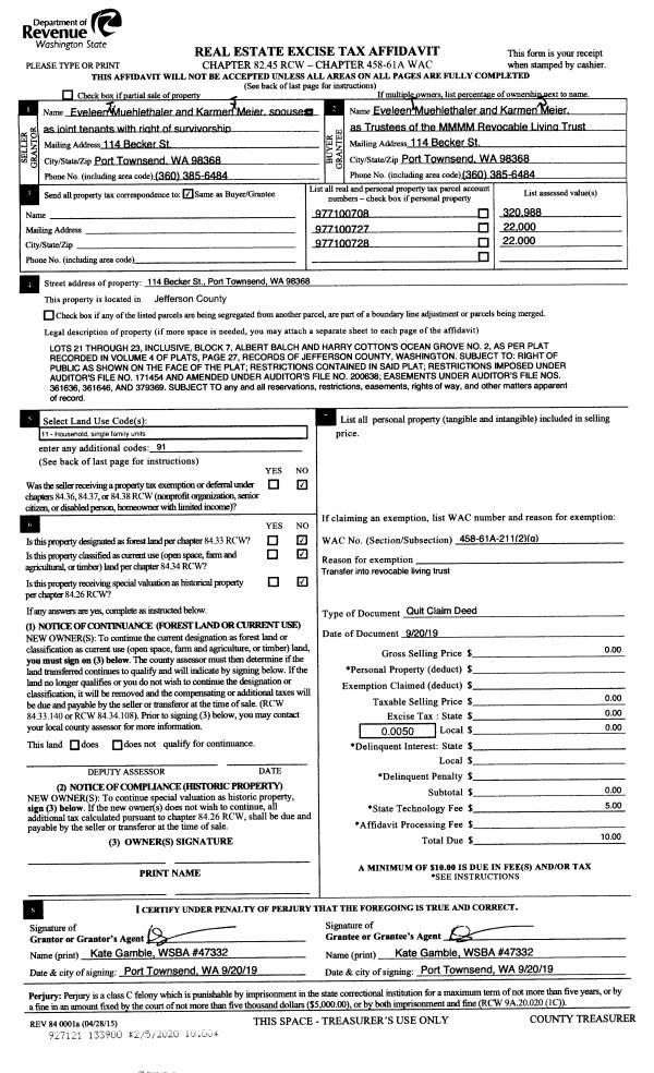
Property
Account |
| Property ID: | 17562 | Abbreviated Legal Description: | S22 T27 R1W TAX 13,16,17 TGTH W/SEPTIC EASE #111051 W/EASEMENTS |
| Parcel # / Geo ID: | 701224012 | Agent Code: | |
| Type: | Real | | |
| Tax Area: | 0323 - 1-48F2E2P1H2C2L1 | Land Use Code | 11 |
| Open Space: | N | DFL | N |
| Historic Property: | N | Remodel Property: | N |
| Multi-Family Redevelopment: | N | | |
| Township: | 27N | Section: | 22 |
| Range: | 1W |
Location |
| Address: | 1671 CAMP DISCOVERY RD QUILCENE, WA 98376 | Mapsco: | 144/042 |
| Neighborhood: | S22 T27W R1W | Map ID: | |
| Neighborhood CD: | 2370 |
Owner |
| Name: | JANE & GERALD DAVID REVOCABLE LIV TRUST | Owner ID: | 98417 |
| Mailing Address: | 1671 CAMP DISCOVERY QUILCENE, WA 98376-8615 | % Ownership: | 100.0000000000% |
| | | Exemptions: | |
Pay Tax Due
There is currently No Amount Due on this property.
Taxes and Assessment Details
Property Tax Information as of
10/24/2025
Click on "Statement Details" to expand or collapse a tax statement.
* Please enter a valid date ** Please enter a valid date *
Statement Details |
| | TOTAL: | $0.00 | $0.00 | $0.00 | $0.00 | $0.00 | $0.00 |
|
| | $0.00 | $0.00 | $0.00 | $0.00 | $0.00 | $0.00 |
Values
| (+) Improvement Homesite Value: | + | $0 | |
| (+) Improvement Non-Homesite Value: | + | $672,222 | |
| (+) Land Homesite Value: | + | $0 | |
| (+) Land Non-Homesite Value: | + | $355,695 | |
| (+) Curr Use (HS): | + | $0 | $0 |
| (+) Curr Use (NHS): | + | $0 | $0 |
| | | -------------------------- | |
| (=) Market Value: | = | $1,027,917 | |
| (–) Productivity Loss: | – | $0 | |
| | | -------------------------- | |
| (=) Subtotal: | = | $1,027,917 | |
| (+) Senior Appraised Value: | + | $0 | |
| (+) Non-Senior Appraised Value: | + | $1,027,917 | |
| | | -------------------------- | |
| (=) Total Appraised Value: | = | $1,027,917 | |
| (–) Senior Exemption Loss: | – | $0 | |
| (–) Exemption Loss: | – | $0 | |
| | | -------------------------- | |
| (=) Taxable Value: | = | $1,027,917 | |
Taxing Jurisdiction
| Owner: | JANE & GERALD DAVID REVOCABLE LIV TRUST | | |
| % Ownership: | 100.0000000000% | | |
| Total Value: | N/A | | |
| Tax Area: | 0323 - 1-48F2E2P1H2C2L1 |
| CE | COUNTY CURRENT EXPENSE | N/A | N/A | N/A | N/A | | |
| CNTYDD | DEVELOPMENTAL DISABILITIES | N/A | N/A | N/A | N/A | | |
| CNTYVET | VETERANS RELIEF | N/A | N/A | N/A | N/A | | |
| MENTAL | MENTAL HEALTH | N/A | N/A | N/A | N/A | | |
| ROADS | COUNTY ROADS | N/A | N/A | N/A | N/A | | |
| ROADSCU | COUNTY ROADS TO CUR EXP | N/A | N/A | N/A | N/A | | |
| HOSP2CASH | HOSP DIST #2 GENERAL | N/A | N/A | N/A | N/A | | |
| SCH48MO | SCHOOL DIST #48 EP & O | N/A | N/A | N/A | N/A | | |
| CEM2 | CEMETERY DIST #2 GENERAL | N/A | N/A | N/A | N/A | | |
| CONSERVE | CONSERVATION FUTURES | N/A | N/A | N/A | N/A | | |
| FD2 | FIRE DIST #2 GENERAL | N/A | N/A | N/A | N/A | | |
| LIB1 | LIBRARY DIST #1 GENERAL | N/A | N/A | N/A | N/A | | |
| PARK1 | PARK & REC DIST #1 GENERAL | N/A | N/A | N/A | N/A | | |
| PORTPT | PORT OF PT GENERAL | N/A | N/A | N/A | N/A | | |
| PORTPTIDD | PORT OF PT IDD 2019 | N/A | N/A | N/A | N/A | | |
| PUD1 | PUD #1 GENERAL | N/A | N/A | N/A | N/A | | |
| STATE | STATE SCHOOL PART 1 | N/A | N/A | N/A | N/A | | |
| STATE2 | STATE SCHOOL PART 2 | N/A | N/A | N/A | N/A | | |
| EMS2 | FIRE DIST #2 EMS | N/A | N/A | N/A | N/A | | |
| | Total Tax Rate: | N/A | | | | | |
| | | | | Taxes w/Current Exemptions: | N/A | | |
| | | | | Taxes w/o Exemptions: | N/A | | |
Improvement / Building
| Improvement #1: | Residential Bldg | State Code: | 11 | 2500.0 sqft | Value: | $672,222 |
| Bathrooms (#): | 3 (FULL) | Bedrooms (#): | 2 | | Exterior Wall: | SI/ST | Fireplace: | SIN 1-GOOD | | Floor Construction: | FRAME | Foundation: | CONPR | | Heating/Cooling: | F/A | Roof Cover: | COMP |
|
| | Type | Description | Class CD | Sub Class CD | Year Built | Area |
| | MA | Main Area | 5 | 15SF | 2009 | 1960.0 |
| | MA2 | Second Floor Main Area | 5 | 15SF | 2009 | 540.0 |
| | HCPOR | House Concrete Porch | 5 | * | 2009 | 261.0 |
| | HDECK | House Deck | 5 | * | 2009 | 570.0 |
| | GATT | House Attached Garage | 5 | 15SF | 2009 | 375.0 |
| | ADDN-D | Addition (Table Depreciated) | 3 | * | 2009 | 505.0 |
| | SHED | Shed (Table Not Dep) | 3 | * | 2009 | 0.0 |
Sketch
Property Image
Land
| 1 | 2370-1515F | Low Bank Waterfront along Hood Cnl and Dabob Bay | 0.0000 | 0.00 | 0.00 | 0.00 | 0.00 | $288,075 | $0 |
| 2 | 2370-1515F | Low Bank Waterfront along Hood Cnl and Dabob Bay | 0.0000 | 0.00 | 0.00 | 0.00 | 0.00 | $67,620 | $0 |
Roll Value History
| 2025 | N/A | N/A | N/A | N/A | N/A |
| 2024 | $644,213 | $340,230 | $0 | $984,443 | $984,443 |
| 2023 | $616,204 | $304,300 | $0 | $920,504 | $920,504 |
| 2022 | $560,185 | $299,300 | $0 | $859,485 | $859,485 |
| 2021 | $463,921 | $297,300 | $0 | $761,221 | $761,221 |
Deed and Sales History
| 1 | 07/21/2020 | BLA | Boundary Line Adjustment | JANE & GERALD DAVID REVOCABLE LIV TRUST | | | | | 134758 | 634781 |
| 2 | 12/06/2017 | QCD | Quit Claim Deed | JANE DAVID | JANE & GERALD DAVID REVOCABLE LIV TRUST | | | | 129160 | |
| 3 | 12/06/2017 | LOP | Lack of Probate | GERALD A DAVID | JANE DAVID | | | | 129159 | |
Payout Agreement
| No payout information available.. |