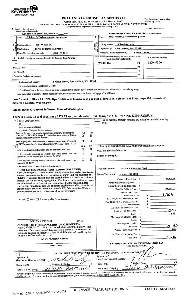
Property
Account |
| Property ID: | 17564 | Abbreviated Legal Description: | S22 T27 R1W TAX 15 |
| Parcel # / Geo ID: | 701224014 | Agent Code: | |
| Type: | Real | | |
| Tax Area: | 0323 - 1-48F2E2P1H2C2L1 | Land Use Code | 19 |
| Open Space: | N | DFL | N |
| Historic Property: | N | Remodel Property: | N |
| Multi-Family Redevelopment: | N | | |
| Township: | 27N | Section: | 22 |
| Range: | 1W |
Location |
| Address: | 1651 CAMP DISCOVERY RD QUILCENE, WA 98376 | Mapsco: | 144/044 |
| Neighborhood: | S22 T27W R1W | Map ID: | |
| Neighborhood CD: | 2370 |
Owner |
| Name: | ARVILLA G KIRKEY TRUSTEE | Owner ID: | 19912 |
| Mailing Address: | ARVILLA KIRKEY REV LIV TR C/O MYRNA WHEELER 6731 40TH AVE SW SEATTLE, WA 98136-1904 | % Ownership: | 100.0000000000% |
| | | Exemptions: | |
Pay Tax Due
There is currently No Amount Due on this property.
Taxes and Assessment Details
Property Tax Information as of
10/24/2025
Click on "Statement Details" to expand or collapse a tax statement.
* Please enter a valid date ** Please enter a valid date *
Statement Details |
| | TOTAL: | $0.00 | $0.00 | $0.00 | $0.00 | $0.00 | $0.00 |
|
| | $0.00 | $0.00 | $0.00 | $0.00 | $0.00 | $0.00 |
Values
| (+) Improvement Homesite Value: | + | $0 | |
| (+) Improvement Non-Homesite Value: | + | $25,228 | |
| (+) Land Homesite Value: | + | $0 | |
| (+) Land Non-Homesite Value: | + | $345,000 | |
| (+) Curr Use (HS): | + | $0 | $0 |
| (+) Curr Use (NHS): | + | $0 | $0 |
| | | -------------------------- | |
| (=) Market Value: | = | $370,228 | |
| (–) Productivity Loss: | – | $0 | |
| | | -------------------------- | |
| (=) Subtotal: | = | $370,228 | |
| (+) Senior Appraised Value: | + | $0 | |
| (+) Non-Senior Appraised Value: | + | $370,228 | |
| | | -------------------------- | |
| (=) Total Appraised Value: | = | $370,228 | |
| (–) Senior Exemption Loss: | – | $0 | |
| (–) Exemption Loss: | – | $0 | |
| | | -------------------------- | |
| (=) Taxable Value: | = | $370,228 | |
Taxing Jurisdiction
| Owner: | ARVILLA G KIRKEY TRUSTEE | | |
| % Ownership: | 100.0000000000% | | |
| Total Value: | N/A | | |
| Tax Area: | 0323 - 1-48F2E2P1H2C2L1 |
| CE | COUNTY CURRENT EXPENSE | N/A | N/A | N/A | N/A | | |
| CNTYDD | DEVELOPMENTAL DISABILITIES | N/A | N/A | N/A | N/A | | |
| CNTYVET | VETERANS RELIEF | N/A | N/A | N/A | N/A | | |
| MENTAL | MENTAL HEALTH | N/A | N/A | N/A | N/A | | |
| ROADS | COUNTY ROADS | N/A | N/A | N/A | N/A | | |
| ROADSCU | COUNTY ROADS TO CUR EXP | N/A | N/A | N/A | N/A | | |
| HOSP2CASH | HOSP DIST #2 GENERAL | N/A | N/A | N/A | N/A | | |
| SCH48MO | SCHOOL DIST #48 EP & O | N/A | N/A | N/A | N/A | | |
| CEM2 | CEMETERY DIST #2 GENERAL | N/A | N/A | N/A | N/A | | |
| CONSERVE | CONSERVATION FUTURES | N/A | N/A | N/A | N/A | | |
| FD2 | FIRE DIST #2 GENERAL | N/A | N/A | N/A | N/A | | |
| LIB1 | LIBRARY DIST #1 GENERAL | N/A | N/A | N/A | N/A | | |
| PARK1 | PARK & REC DIST #1 GENERAL | N/A | N/A | N/A | N/A | | |
| PORTPT | PORT OF PT GENERAL | N/A | N/A | N/A | N/A | | |
| PORTPTIDD | PORT OF PT IDD 2019 | N/A | N/A | N/A | N/A | | |
| PUD1 | PUD #1 GENERAL | N/A | N/A | N/A | N/A | | |
| STATE | STATE SCHOOL PART 1 | N/A | N/A | N/A | N/A | | |
| STATE2 | STATE SCHOOL PART 2 | N/A | N/A | N/A | N/A | | |
| EMS2 | FIRE DIST #2 EMS | N/A | N/A | N/A | N/A | | |
| | Total Tax Rate: | N/A | | | | | |
| | | | | Taxes w/Current Exemptions: | N/A | | |
| | | | | Taxes w/o Exemptions: | N/A | | |
Improvement / Building
| Improvement #1: | Residential Bldg | State Code: | 19 | 612.0 sqft | Value: | $25,228 |
| Exterior Wall: | PL/T1 | Fireplace: | WD ST-AVG | | Floor Construction: | FRAME | Foundation: | PO&BL | | Heating/Cooling: | WD/NO | Inside Verify: | YES-FIX | | Interior Finish: | UNFIN | Roof Cover: | COMP |
|
| | Type | Description | Class CD | Sub Class CD | Year Built | Area |
| | MA | Main Area | 3+ | C1S | 1953 | 612.0 |
| | CWPOR | Cabin Wood Porch | 3 | * | 1953 | 40.0 |
| | CDECK | Cabin Deck | 3 | * | 1953 | 162.0 |
| | SHED | Shed (Table Not Dep) | 3 | * | 1953 | 176.0 |
| | CRPO | Cabin Roof Porch | 3 | * | 1953 | 162.0 |
Sketch
Property Image
Land
| 1 | 2370-1515F | Low Bank Waterfront along Hood Cnl and Dabob Bay | 0.0000 | 0.00 | 0.00 | 0.00 | 0.00 | $345,000 | $0 |
Roll Value History
| 2025 | N/A | N/A | N/A | N/A | N/A |
| 2024 | $24,176 | $330,000 | $0 | $354,176 | $354,176 |
| 2023 | $23,125 | $295,000 | $0 | $318,125 | $318,125 |
| 2022 | $21,023 | $290,000 | $0 | $311,023 | $311,023 |
| 2021 | $18,281 | $288,000 | $0 | $306,281 | $306,281 |
Deed and Sales History
| 1 | 05/27/2005 | QCD | Quit Claim Deed | FROLAND, ARLENE, WHEELER, | KIRKEY, ARVILLA G REVOCABLE LI | | | $0.00 | 104114 | 0 |
| 2 | 05/27/2005 | QCD | Quit Claim Deed | WHEELER, MYRNA MAE, FROLA | KIRKEY, ARVILLA G REVOCABKE TR | 0 | 0 | $0.00 | 104513 | 0 |
| 3 | 10/06/1993 | QCD | Quit Claim Deed | KIRKEY, ARVILLA G | WHEELER/FROLAND/KIRKEY | 0 | 0 | $0.00 | 72362 | 0 |
Payout Agreement
| No payout information available.. |