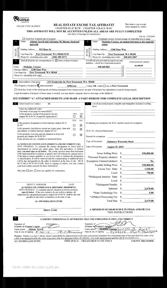
Property
Account |
| Property ID: | 17841 | Abbreviated Legal Description: | S34 T27 R1W TAX 22 |
| Parcel # / Geo ID: | 701344029 | Agent Code: | |
| Type: | Real | | |
| Tax Area: | 0323 - 1-48F2E2P1H2C2L1 | Land Use Code | 11 |
| Open Space: | N | DFL | N |
| Historic Property: | N | Remodel Property: | N |
| Multi-Family Redevelopment: | N | | |
| Township: | 27N | Section: | 34 |
| Range: | 1W |
Location |
| Address: | 610 RHODODENDRON DR QUILCENE, WA 98376 | Mapsco: | 151/029 |
| Neighborhood: | S27, 34 & 35 T27N R1W BATH SHORT PLAT | Map ID: | |
| Neighborhood CD: | 2380 |
Owner |
| Name: | CHRISTOPHER LENZI | Owner ID: | 98194 |
| Mailing Address: | 610 RHODODENDRON DR QUILCENE, WA 98376-9645 | % Ownership: | 100.0000000000% |
| | | Exemptions: | |
Pay Tax Due
There is currently No Amount Due on this property.
Taxes and Assessment Details
Property Tax Information as of
10/24/2025
Click on "Statement Details" to expand or collapse a tax statement.
* Please enter a valid date ** Please enter a valid date *
Statement Details |
| | TOTAL: | $0.00 | $0.00 | $0.00 | $0.00 | $0.00 | $0.00 |
|
| | $0.00 | $0.00 | $0.00 | $0.00 | $0.00 | $0.00 |
Values
| (+) Improvement Homesite Value: | + | $0 | |
| (+) Improvement Non-Homesite Value: | + | $452,950 | |
| (+) Land Homesite Value: | + | $0 | |
| (+) Land Non-Homesite Value: | + | $252,411 | |
| (+) Curr Use (HS): | + | $0 | $0 |
| (+) Curr Use (NHS): | + | $0 | $0 |
| | | -------------------------- | |
| (=) Market Value: | = | $705,361 | |
| (–) Productivity Loss: | – | $0 | |
| | | -------------------------- | |
| (=) Subtotal: | = | $705,361 | |
| (+) Senior Appraised Value: | + | $0 | |
| (+) Non-Senior Appraised Value: | + | $705,361 | |
| | | -------------------------- | |
| (=) Total Appraised Value: | = | $705,361 | |
| (–) Senior Exemption Loss: | – | $0 | |
| (–) Exemption Loss: | – | $0 | |
| | | -------------------------- | |
| (=) Taxable Value: | = | $705,361 | |
Taxing Jurisdiction
| Owner: | CHRISTOPHER LENZI | | |
| % Ownership: | 100.0000000000% | | |
| Total Value: | N/A | | |
| Tax Area: | 0323 - 1-48F2E2P1H2C2L1 |
| CE | COUNTY CURRENT EXPENSE | N/A | N/A | N/A | N/A | | |
| CNTYDD | DEVELOPMENTAL DISABILITIES | N/A | N/A | N/A | N/A | | |
| CNTYVET | VETERANS RELIEF | N/A | N/A | N/A | N/A | | |
| MENTAL | MENTAL HEALTH | N/A | N/A | N/A | N/A | | |
| ROADS | COUNTY ROADS | N/A | N/A | N/A | N/A | | |
| ROADSCU | COUNTY ROADS TO CUR EXP | N/A | N/A | N/A | N/A | | |
| HOSP2CASH | HOSP DIST #2 GENERAL | N/A | N/A | N/A | N/A | | |
| SCH48MO | SCHOOL DIST #48 EP & O | N/A | N/A | N/A | N/A | | |
| CEM2 | CEMETERY DIST #2 GENERAL | N/A | N/A | N/A | N/A | | |
| CONSERVE | CONSERVATION FUTURES | N/A | N/A | N/A | N/A | | |
| FD2 | FIRE DIST #2 GENERAL | N/A | N/A | N/A | N/A | | |
| LIB1 | LIBRARY DIST #1 GENERAL | N/A | N/A | N/A | N/A | | |
| PARK1 | PARK & REC DIST #1 GENERAL | N/A | N/A | N/A | N/A | | |
| PORTPT | PORT OF PT GENERAL | N/A | N/A | N/A | N/A | | |
| PORTPTIDD | PORT OF PT IDD 2019 | N/A | N/A | N/A | N/A | | |
| PUD1 | PUD #1 GENERAL | N/A | N/A | N/A | N/A | | |
| STATE | STATE SCHOOL PART 1 | N/A | N/A | N/A | N/A | | |
| STATE2 | STATE SCHOOL PART 2 | N/A | N/A | N/A | N/A | | |
| EMS2 | FIRE DIST #2 EMS | N/A | N/A | N/A | N/A | | |
| | Total Tax Rate: | N/A | | | | | |
| | | | | Taxes w/Current Exemptions: | N/A | | |
| | | | | Taxes w/o Exemptions: | N/A | | |
Improvement / Building
| Improvement #1: | Residential Bldg | State Code: | 11 | 1018.0 sqft | Value: | $452,950 |
| Bathrooms (#): | 1 (FULL) | Bedrooms (#): | 1 | | Exterior Wall: | PL/T1 | Fireplace: | WD ST-GOOD | | Floor Construction: | FRAME | Foundation: | CONPR | | Heating/Cooling: | ELBB | Roof Cover: | COMP |
|
| | Type | Description | Class CD | Sub Class CD | Year Built | Area |
| | MA | Main Area | 5- | 1S | 1988 | 1018.0 |
| | HBAL | House Balcony | 4 | * | 1988 | 96.0 |
| | HDECK | House Deck | 4 | * | 1988 | 832.0 |
| | SHED | Shed (Table Not Dep) | 4 | * | 1988 | 96.0 |
| | BSMTF | House basement finished | 4 | * | 1988 | 240.0 |
| | HLOFT | House Loft | 4 | * | 1988 | 432.0 |
| | OTHER | Other | 1 | * | 1988 | 0.0 |
Sketch
Property Image
Land
| 1 | 2380-1341S | Excel View Sites 1+/- Acre w/Dabob Cove Amenities | 1.0000 | 43560.00 | 0.00 | 0.00 | 1.00 | $207,000 | $0 |
| 2 | 1571A | Terr/Mtn/No View <6 Acres | 4.0500 | 176418.00 | 0.00 | 0.00 | 0.00 | $45,411 | $0 |
Roll Value History
| 2025 | N/A | N/A | N/A | N/A | N/A |
| 2024 | $434,077 | $241,437 | $0 | $675,514 | $675,514 |
| 2023 | $415,204 | $223,298 | $0 | $638,502 | $638,502 |
| 2022 | $377,458 | $204,020 | $0 | $581,478 | $581,478 |
| 2021 | $312,594 | $189,702 | $0 | $502,296 | $502,296 |
Deed and Sales History
| 1 | 10/17/2017 | SWD | Statutory Warranty Deed | BRIAN ANDERSEN & DOWNING MOUA | CHRISTOPHER LENZI | | | $498,600.00 | 128857 | |
| 2 | 06/28/2016 | QCD | Quit Claim Deed | | | | | | 125765 | |
| 3 | 07/01/2008 | QCD | Quit Claim Deed | ARAUJO, RAYMOND | ANDERSEN, BRIAN L | 0 | 0 | $99,660.00 | 111737 | 0 |
| 4 | 08/11/1998 | SWD | Statutory Warranty Deed | ROUGH, JAMES D/EST | ARAUJO, RAYMOND/ANDERSON,BRIAN | 0 | 0 | $0.00 | 85525 | 0 |
| 5 | 08/11/1998 | WD | Warranty Deed | ROUGH, JAMES D/EST | ARUJO, RAYMOND/ANDERSON, BRIAN | 0 | 0 | $190,000.00 | 85069 | 0 |
Payout Agreement
| No payout information available.. |