Property
Account |
| Property ID: | 17845 | Abbreviated Legal Description: | S34 T27 R1W TAX 27(ENLG BY TAX 49 LS TAX 48) WITH EASE BND TGTH THUR BLA#110867 |
| Parcel # / Geo ID: | 701344034 | Agent Code: | |
| Type: | Real | | |
| Tax Area: | 0323 - 1-48F2E2P1H2C2L1 | Land Use Code | 18 |
| Open Space: | N | DFL | N |
| Historic Property: | N | Remodel Property: | N |
| Multi-Family Redevelopment: | N | | |
| Township: | 27N | Section: | 34 |
| Range: | 1W |
Location |
| Address: | 1281 RHODODENDRON DR QUILCENE, WA 98376 | Mapsco: | 151/034 |
| Neighborhood: | S27, 34 & 35 T27N R1W BATH SHORT PLAT | Map ID: | |
| Neighborhood CD: | 2380 |
Owner |
| Name: | JAMES B OLNEY | Owner ID: | 23925 |
| Mailing Address: | LESLIE E TOUSSAINT ROBERT & VIVIAN ZIRK 4322 2ND AVE NW SEATTLE, WA 98107-4315 | % Ownership: | 100.0000000000% |
| | | Exemptions: | |
Pay Tax Due
There is currently No Amount Due on this property.
Taxes and Assessment Details
Property Tax Information as of
10/24/2025
Click on "Statement Details" to expand or collapse a tax statement.
* Please enter a valid date ** Please enter a valid date *
Statement Details |
| | TOTAL: | $0.00 | $0.00 | $0.00 | $0.00 | $0.00 | $0.00 |
|
| | $0.00 | $0.00 | $0.00 | $0.00 | $0.00 | $0.00 |
Values
| (+) Improvement Homesite Value: | + | $0 | |
| (+) Improvement Non-Homesite Value: | + | $28,152 | |
| (+) Land Homesite Value: | + | $0 | |
| (+) Land Non-Homesite Value: | + | $109,063 | |
| (+) Curr Use (HS): | + | $0 | $0 |
| (+) Curr Use (NHS): | + | $0 | $0 |
| | | -------------------------- | |
| (=) Market Value: | = | $137,215 | |
| (–) Productivity Loss: | – | $0 | |
| | | -------------------------- | |
| (=) Subtotal: | = | $137,215 | |
| (+) Senior Appraised Value: | + | $0 | |
| (+) Non-Senior Appraised Value: | + | $137,215 | |
| | | -------------------------- | |
| (=) Total Appraised Value: | = | $137,215 | |
| (–) Senior Exemption Loss: | – | $0 | |
| (–) Exemption Loss: | – | $0 | |
| | | -------------------------- | |
| (=) Taxable Value: | = | $137,215 | |
Taxing Jurisdiction
| Owner: | JAMES B OLNEY | | |
| % Ownership: | 100.0000000000% | | |
| Total Value: | N/A | | |
| Tax Area: | 0323 - 1-48F2E2P1H2C2L1 |
| CE | COUNTY CURRENT EXPENSE | N/A | N/A | N/A | N/A | | |
| CNTYDD | DEVELOPMENTAL DISABILITIES | N/A | N/A | N/A | N/A | | |
| CNTYVET | VETERANS RELIEF | N/A | N/A | N/A | N/A | | |
| MENTAL | MENTAL HEALTH | N/A | N/A | N/A | N/A | | |
| ROADS | COUNTY ROADS | N/A | N/A | N/A | N/A | | |
| ROADSCU | COUNTY ROADS TO CUR EXP | N/A | N/A | N/A | N/A | | |
| HOSP2CASH | HOSP DIST #2 GENERAL | N/A | N/A | N/A | N/A | | |
| SCH48MO | SCHOOL DIST #48 EP & O | N/A | N/A | N/A | N/A | | |
| CEM2 | CEMETERY DIST #2 GENERAL | N/A | N/A | N/A | N/A | | |
| CONSERVE | CONSERVATION FUTURES | N/A | N/A | N/A | N/A | | |
| FD2 | FIRE DIST #2 GENERAL | N/A | N/A | N/A | N/A | | |
| LIB1 | LIBRARY DIST #1 GENERAL | N/A | N/A | N/A | N/A | | |
| PARK1 | PARK & REC DIST #1 GENERAL | N/A | N/A | N/A | N/A | | |
| PORTPT | PORT OF PT GENERAL | N/A | N/A | N/A | N/A | | |
| PORTPTIDD | PORT OF PT IDD 2019 | N/A | N/A | N/A | N/A | | |
| PUD1 | PUD #1 GENERAL | N/A | N/A | N/A | N/A | | |
| STATE | STATE SCHOOL PART 1 | N/A | N/A | N/A | N/A | | |
| STATE2 | STATE SCHOOL PART 2 | N/A | N/A | N/A | N/A | | |
| EMS2 | FIRE DIST #2 EMS | N/A | N/A | N/A | N/A | | |
| | Total Tax Rate: | N/A | | | | | |
| | | | | Taxes w/Current Exemptions: | N/A | | |
| | | | | Taxes w/o Exemptions: | N/A | | |
Improvement / Building
| Improvement #1: | Residential Bldg | State Code: | 19 | 0.0 sqft | Value: | $28,152 |
| | Type | Description | Class CD | Sub Class CD | Year Built | Area |
| | OTHER | Other | * | * | 0 | 0.0 |
| | ADDN-D | Addition (Table Depreciated) | 3 | * | 0 | 80.0 |
Sketch
| No sketches available for this property. |
Property Image
Land
| 1 | 2380-1533F | High Bank Wtrfrt W/Average Access/Topo/Utility | 0.0000 | 0.00 | 0.00 | 0.00 | 0.00 | $74,750 | $0 |
| 2 | 2380-1533F | High Bank Wtrfrt W/Average Access/Topo/Utility | 0.0000 | 0.00 | 0.00 | 0.00 | 0.00 | $34,313 | $0 |
Roll Value History
| 2025 | N/A | N/A | N/A | N/A | N/A |
| 2024 | $26,979 | $104,321 | $0 | $131,300 | $131,300 |
| 2023 | $25,806 | $94,329 | $0 | $120,135 | $120,135 |
| 2022 | $23,460 | $84,837 | $0 | $108,297 | $108,297 |
| 2021 | $20,400 | $73,574 | $0 | $93,974 | $93,974 |
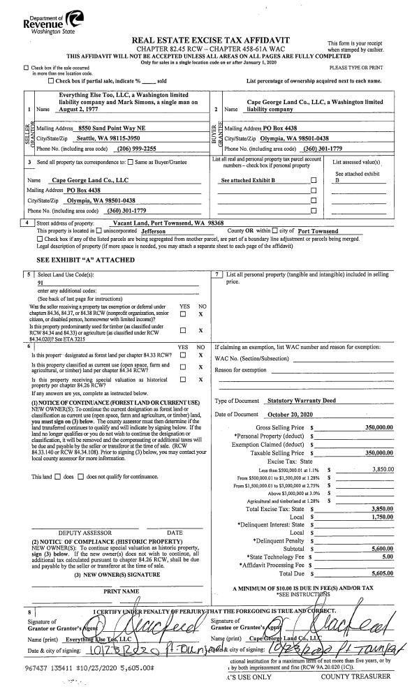
Deed and Sales History
| 1 | 06/19/2008 | SWD | Statutory Warranty Deed | OLNEY, JR, JAMES B, TOUSS | OWEN, RICHARD W | | | $0.00 | 111452 | 0 |
| 2 | 05/02/2000 | SWD | Statutory Warranty Deed | HERZBERG, PETER J/CONSTAN | OLNEY, JAMES B/ET AL | 0 | 0 | $20,000.00 | 89564 | 0 |
Payout Agreement
| No payout information available.. |