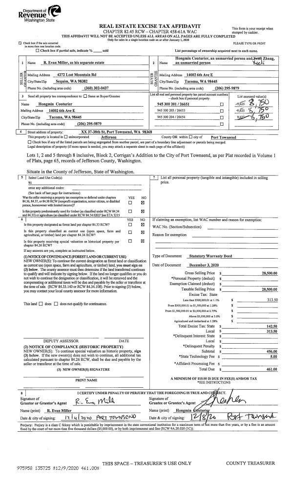
Property
Account |
| Property ID: | 17879 | Abbreviated Legal Description: | SILENT LAKE LARGE LOT LOT 14 |
| Parcel # / Geo ID: | 701355014 | Agent Code: | |
| Type: | Real | | |
| Tax Area: | 0323 - 1-48F2E2P1H2C2L1 | Land Use Code | 18 |
| Open Space: | N | DFL | N |
| Historic Property: | N | Remodel Property: | N |
| Multi-Family Redevelopment: | N | | |
| Township: | 27N | Section: | 35 |
| Range: | 1W |
Location |
| Address: | 42 SILENT LAKE CT QUILCENE, WA 98376 | Mapsco: | 183/035 |
| Neighborhood: | S27, 34 & 35 T27N R1W BATH SHORT PLAT | Map ID: | |
| Neighborhood CD: | 2380 |
Owner |
| Name: | CRAIG & ELLEN BRIMMER | Owner ID: | 104925 |
| Mailing Address: | 17309 PALATINE AVE N SHORELINE, WA 98133-5256 | % Ownership: | 100.0000000000% |
| | | Exemptions: | |
Pay Tax Due
There is currently No Amount Due on this property.
Taxes and Assessment Details
Property Tax Information as of
10/24/2025
Click on "Statement Details" to expand or collapse a tax statement.
* Please enter a valid date ** Please enter a valid date *
Statement Details |
| | TOTAL: | $0.00 | $0.00 | $0.00 | $0.00 | $0.00 | $0.00 |
|
| | $0.00 | $0.00 | $0.00 | $0.00 | $0.00 | $0.00 |
Values
| (+) Improvement Homesite Value: | + | $0 | |
| (+) Improvement Non-Homesite Value: | + | $8,280 | |
| (+) Land Homesite Value: | + | $0 | |
| (+) Land Non-Homesite Value: | + | $98,900 | |
| (+) Curr Use (HS): | + | $0 | $0 |
| (+) Curr Use (NHS): | + | $0 | $0 |
| | | -------------------------- | |
| (=) Market Value: | = | $107,180 | |
| (–) Productivity Loss: | – | $0 | |
| | | -------------------------- | |
| (=) Subtotal: | = | $107,180 | |
| (+) Senior Appraised Value: | + | $0 | |
| (+) Non-Senior Appraised Value: | + | $107,180 | |
| | | -------------------------- | |
| (=) Total Appraised Value: | = | $107,180 | |
| (–) Senior Exemption Loss: | – | $0 | |
| (–) Exemption Loss: | – | $0 | |
| | | -------------------------- | |
| (=) Taxable Value: | = | $107,180 | |
Taxing Jurisdiction
| Owner: | CRAIG & ELLEN BRIMMER | | |
| % Ownership: | 100.0000000000% | | |
| Total Value: | N/A | | |
| Tax Area: | 0323 - 1-48F2E2P1H2C2L1 |
| CE | COUNTY CURRENT EXPENSE | N/A | N/A | N/A | N/A | | |
| CNTYDD | DEVELOPMENTAL DISABILITIES | N/A | N/A | N/A | N/A | | |
| CNTYVET | VETERANS RELIEF | N/A | N/A | N/A | N/A | | |
| MENTAL | MENTAL HEALTH | N/A | N/A | N/A | N/A | | |
| ROADS | COUNTY ROADS | N/A | N/A | N/A | N/A | | |
| ROADSCU | COUNTY ROADS TO CUR EXP | N/A | N/A | N/A | N/A | | |
| HOSP2CASH | HOSP DIST #2 GENERAL | N/A | N/A | N/A | N/A | | |
| SCH48MO | SCHOOL DIST #48 EP & O | N/A | N/A | N/A | N/A | | |
| CEM2 | CEMETERY DIST #2 GENERAL | N/A | N/A | N/A | N/A | | |
| CONSERVE | CONSERVATION FUTURES | N/A | N/A | N/A | N/A | | |
| FD2 | FIRE DIST #2 GENERAL | N/A | N/A | N/A | N/A | | |
| LIB1 | LIBRARY DIST #1 GENERAL | N/A | N/A | N/A | N/A | | |
| PARK1 | PARK & REC DIST #1 GENERAL | N/A | N/A | N/A | N/A | | |
| PORTPT | PORT OF PT GENERAL | N/A | N/A | N/A | N/A | | |
| PORTPTIDD | PORT OF PT IDD 2019 | N/A | N/A | N/A | N/A | | |
| PUD1 | PUD #1 GENERAL | N/A | N/A | N/A | N/A | | |
| STATE | STATE SCHOOL PART 1 | N/A | N/A | N/A | N/A | | |
| STATE2 | STATE SCHOOL PART 2 | N/A | N/A | N/A | N/A | | |
| EMS2 | FIRE DIST #2 EMS | N/A | N/A | N/A | N/A | | |
| | Total Tax Rate: | N/A | | | | | |
| | | | | Taxes w/Current Exemptions: | N/A | | |
| | | | | Taxes w/o Exemptions: | N/A | | |
Improvement / Building
| Improvement #1: | Residential Bldg | State Code: | 18 | 0.0 sqft | Value: | $8,280 |
Sketch
| No sketches available for this property. |
Property Image
Land
| 1 | 2380-1455S | Silent Lake Large Lots Non-Lake Frtg | 5.0800 | 221284.80 | 0.00 | 0.00 | 1.00 | $98,900 | $0 |
Roll Value History
| 2025 | N/A | N/A | N/A | N/A | N/A |
| 2024 | $7,935 | $94,600 | $0 | $102,535 | $102,535 |
| 2023 | $7,590 | $90,300 | $0 | $97,890 | $97,890 |
| 2022 | $6,900 | $85,000 | $0 | $91,900 | $91,900 |
| 2021 | $6,000 | $74,100 | $0 | $80,100 | $80,100 |
Deed and Sales History
| 1 | 06/10/2021 | SWD | Statutory Warranty Deed | CONNOR L OZAWA-ATHERTON & | CRAIG & ELLEN BRIMMER | | | $110,000.00 | 136951 | |
| 2 | 02/20/2019 | SWD | Statutory Warranty Deed | JAMES O HASHMAN | CONNOR L OZAWA-ATHERTON & | | | $55,000.00 | 131857 | |
| 3 | 01/20/1998 | SWD | Statutory Warranty Deed | JAL ASSOCIATES | HASHMAN, JAMES O/MARCIA L | 0 | 0 | $36,500.00 | 83723 | 0 |
Payout Agreement
| No payout information available.. |