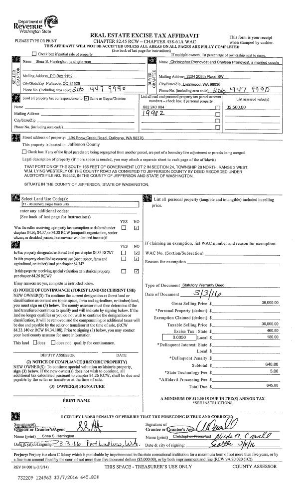
Property
Account |
| Property ID: | 18089 | Abbreviated Legal Description: | S12 T27 R2W TAX 26 WITH AND SUBJ TO EASE |
| Parcel # / Geo ID: | 702122024 | Agent Code: | |
| Type: | Real | | |
| Tax Area: | 0324 - 1-48F2E2H2C2L1Z3 | Land Use Code | 19 |
| Open Space: | N | DFL | N |
| Historic Property: | N | Remodel Property: | N |
| Multi-Family Redevelopment: | N | | |
| Township: | 27N | Section: | 12 |
| Range: | 2W |
Location |
| Address: | 403 RICE LAKE RD QUILCENE, WA 98376 | Mapsco: | 158/043 |
| Neighborhood: | S12 T27N R2W | Map ID: | |
| Neighborhood CD: | 2525 |
Owner |
| Name: | EZRA GOETZEN | Owner ID: | 96647 |
| Mailing Address: | 511A 26TH AVE S SEATTLE, WA 98144 | % Ownership: | 100.0000000000% |
| | | Exemptions: | |
Pay Tax Due
There is currently No Amount Due on this property.
Taxes and Assessment Details
Property Tax Information as of
10/24/2025
Click on "Statement Details" to expand or collapse a tax statement.
* Please enter a valid date ** Please enter a valid date *
Statement Details |
| | TOTAL: | $0.00 | $0.00 | $0.00 | $0.00 | $0.00 | $0.00 |
|
| | $0.00 | $0.00 | $0.00 | $0.00 | $0.00 | $0.00 |
Values
| (+) Improvement Homesite Value: | + | $0 | |
| (+) Improvement Non-Homesite Value: | + | $21,397 | |
| (+) Land Homesite Value: | + | $0 | |
| (+) Land Non-Homesite Value: | + | $74,693 | |
| (+) Curr Use (HS): | + | $0 | $0 |
| (+) Curr Use (NHS): | + | $0 | $0 |
| | | -------------------------- | |
| (=) Market Value: | = | $96,090 | |
| (–) Productivity Loss: | – | $0 | |
| | | -------------------------- | |
| (=) Subtotal: | = | $96,090 | |
| (+) Senior Appraised Value: | + | $0 | |
| (+) Non-Senior Appraised Value: | + | $96,090 | |
| | | -------------------------- | |
| (=) Total Appraised Value: | = | $96,090 | |
| (–) Senior Exemption Loss: | – | $0 | |
| (–) Exemption Loss: | – | $0 | |
| | | -------------------------- | |
| (=) Taxable Value: | = | $96,090 | |
Taxing Jurisdiction
| Owner: | EZRA GOETZEN | | |
| % Ownership: | 100.0000000000% | | |
| Total Value: | N/A | | |
| Tax Area: | 0324 - 1-48F2E2H2C2L1Z3 |
| CE | COUNTY CURRENT EXPENSE | N/A | N/A | N/A | N/A | | |
| CNTYDD | DEVELOPMENTAL DISABILITIES | N/A | N/A | N/A | N/A | | |
| CNTYVET | VETERANS RELIEF | N/A | N/A | N/A | N/A | | |
| MENTAL | MENTAL HEALTH | N/A | N/A | N/A | N/A | | |
| ROADS | COUNTY ROADS | N/A | N/A | N/A | N/A | | |
| ROADSCU | COUNTY ROADS TO CUR EXP | N/A | N/A | N/A | N/A | | |
| HOSP2CASH | HOSP DIST #2 GENERAL | N/A | N/A | N/A | N/A | | |
| SCH48MO | SCHOOL DIST #48 EP & O | N/A | N/A | N/A | N/A | | |
| CEM2 | CEMETERY DIST #2 GENERAL | N/A | N/A | N/A | N/A | | |
| CONSERVE | CONSERVATION FUTURES | N/A | N/A | N/A | N/A | | |
| FD2 | FIRE DIST #2 GENERAL | N/A | N/A | N/A | N/A | | |
| LIB1 | LIBRARY DIST #1 GENERAL | N/A | N/A | N/A | N/A | | |
| PORTPT | PORT OF PT GENERAL | N/A | N/A | N/A | N/A | | |
| PORTPTIDD | PORT OF PT IDD 2019 | N/A | N/A | N/A | N/A | | |
| PUD1 | PUD #1 GENERAL | N/A | N/A | N/A | N/A | | |
| STATE | STATE SCHOOL PART 1 | N/A | N/A | N/A | N/A | | |
| STATE2 | STATE SCHOOL PART 2 | N/A | N/A | N/A | N/A | | |
| EMS2 | FIRE DIST #2 EMS | N/A | N/A | N/A | N/A | | |
| | Total Tax Rate: | N/A | | | | | |
| | | | | Taxes w/Current Exemptions: | N/A | | |
| | | | | Taxes w/o Exemptions: | N/A | | |
Improvement / Building
| Improvement #1: | Residential Bldg | State Code: | 19 | 336.0 sqft | Value: | $21,397 |
| Bathrooms (#): | 1 (FULL) | Bedrooms (#): | 1 | | Exterior Wall: | PL/T1 | Fireplace: | WD ST-GOOD | | Floor Construction: | FRAME | Foundation: | CONPR | | Heating/Cooling: | WD/NO | Inside Verify: | NO | | Roof Cover: | COMP |   |   |
|
Sketch
Property Image
Land
| 1 | 2525-1375S | Wooded/No View Sites Area 1+/- Acre | 1.0000 | 43560.00 | 0.00 | 0.00 | 1.00 | $51,750 | $0 |
| 2 | 1577A | Terr/Mtn/No View <6 Acres | 3.8000 | 165528.00 | 0.00 | 0.00 | 0.00 | $22,943 | $0 |
Roll Value History
| 2025 | N/A | N/A | N/A | N/A | N/A |
| 2024 | $20,506 | $71,445 | $0 | $91,951 | $91,951 |
| 2023 | $19,614 | $66,701 | $0 | $86,315 | $86,315 |
| 2022 | $17,831 | $62,100 | $0 | $79,931 | $79,931 |
| 2021 | $15,505 | $49,680 | $0 | $65,185 | $65,185 |
Deed and Sales History
| 1 | 01/11/2017 | SWD | Statutory Warranty Deed | CAROLYN AVERY | EZRA GOETZEN | | | $41,500.00 | 126977 | |
| 2 | 09/17/2015 | SWD | Statutory Warranty Deed | MERRILL & RING FOREST PRODUCTS | CAROLYN AVERY | | | $30,000.00 | 0 | |
| 3 | 08/31/2015 | QCD | Quit Claim Deed | | | | | | 123897 | |
| 4 | 11/07/2014 | TRED | Trustee Deed | JUSTIN SIDICK | MERRILL & RING FOREST PRODUCTS | | | | 122218 | |
| 5 | 08/01/2008 | SWD | Statutory Warranty Deed | MERRILL & RING FOREST PRO | SIDICK, JUSTIN | 0 | 0 | $44,900.00 | 111759 | 0 |
| 6 | 01/15/2006 | SWD | Statutory Warranty Deed | KLOTZ, SANDRA L | MERRILL & RING FOREST PRODUCTS | 0 | 0 | $0.00 | 105839 | 0 |
| 7 | 02/17/2003 | REC | Real Estate Contract | JOHNSTON, SHERRI M | KLOTZ, SANDRA L | 0 | 0 | $30,000.00 | 96612 | 0 |
| 8 | 04/30/2001 | REC | Real Estate Contract | OLIN, DONALD L/FRANKIE C | JOHNSTON, SHERRI M | 0 | 0 | $25,000.00 | 92050 | 0 |
Payout Agreement
| No payout information available.. |