Property
Account |
| Property ID: | 18132 | Abbreviated Legal Description: | S13 T27 R2W TX 100 |
| Parcel # / Geo ID: | 702131018 | Agent Code: | |
| Type: | Real | | |
| Tax Area: | 0324 - 1-48F2E2H2C2L1Z3 | Land Use Code | 18 |
| Open Space: | N | DFL | N |
| Historic Property: | N | Remodel Property: | N |
| Multi-Family Redevelopment: | N | | |
| Township: | 27N | Section: | 13 |
| Range: | 2W |
Location |
| Address: | XXX ELKHOUND PASS RD QUILCENE, WA 98376 | Mapsco: | 160/018 |
| Neighborhood: | S13 T27N R2W & HAMILTON 5 ACRE TRACTS & ACKERMAN S.P. | Map ID: | |
| Neighborhood CD: | 2530 |
Owner |
| Name: | JUSTIN L BACCHUS | Owner ID: | 10760 |
| Mailing Address: | PO BOX 416 QUILCENE, WA 98376-0416 | % Ownership: | 100.0000000000% |
| | | Exemptions: | |
Pay Tax Due
There is currently No Amount Due on this property.
Taxes and Assessment Details
Property Tax Information as of
10/24/2025
Click on "Statement Details" to expand or collapse a tax statement.
* Please enter a valid date ** Please enter a valid date *
Statement Details |
| | TOTAL: | $0.00 | $0.00 | $0.00 | $0.00 | $0.00 | $0.00 |
|
| | $0.00 | $0.00 | $0.00 | $0.00 | $0.00 | $0.00 |
Values
| (+) Improvement Homesite Value: | + | $0 | |
| (+) Improvement Non-Homesite Value: | + | $28,687 | |
| (+) Land Homesite Value: | + | $0 | |
| (+) Land Non-Homesite Value: | + | $74,750 | |
| (+) Curr Use (HS): | + | $0 | $0 |
| (+) Curr Use (NHS): | + | $0 | $0 |
| | | -------------------------- | |
| (=) Market Value: | = | $103,437 | |
| (–) Productivity Loss: | – | $0 | |
| | | -------------------------- | |
| (=) Subtotal: | = | $103,437 | |
| (+) Senior Appraised Value: | + | $0 | |
| (+) Non-Senior Appraised Value: | + | $103,437 | |
| | | -------------------------- | |
| (=) Total Appraised Value: | = | $103,437 | |
| (–) Senior Exemption Loss: | – | $0 | |
| (–) Exemption Loss: | – | $0 | |
| | | -------------------------- | |
| (=) Taxable Value: | = | $103,437 | |
Taxing Jurisdiction
| Owner: | JUSTIN L BACCHUS | | |
| % Ownership: | 100.0000000000% | | |
| Total Value: | N/A | | |
| Tax Area: | 0324 - 1-48F2E2H2C2L1Z3 |
| CE | COUNTY CURRENT EXPENSE | N/A | N/A | N/A | N/A | | |
| CNTYDD | DEVELOPMENTAL DISABILITIES | N/A | N/A | N/A | N/A | | |
| CNTYVET | VETERANS RELIEF | N/A | N/A | N/A | N/A | | |
| MENTAL | MENTAL HEALTH | N/A | N/A | N/A | N/A | | |
| ROADS | COUNTY ROADS | N/A | N/A | N/A | N/A | | |
| ROADSCU | COUNTY ROADS TO CUR EXP | N/A | N/A | N/A | N/A | | |
| HOSP2CASH | HOSP DIST #2 GENERAL | N/A | N/A | N/A | N/A | | |
| SCH48MO | SCHOOL DIST #48 EP & O | N/A | N/A | N/A | N/A | | |
| CEM2 | CEMETERY DIST #2 GENERAL | N/A | N/A | N/A | N/A | | |
| CONSERVE | CONSERVATION FUTURES | N/A | N/A | N/A | N/A | | |
| FD2 | FIRE DIST #2 GENERAL | N/A | N/A | N/A | N/A | | |
| LIB1 | LIBRARY DIST #1 GENERAL | N/A | N/A | N/A | N/A | | |
| PORTPT | PORT OF PT GENERAL | N/A | N/A | N/A | N/A | | |
| PORTPTIDD | PORT OF PT IDD 2019 | N/A | N/A | N/A | N/A | | |
| PUD1 | PUD #1 GENERAL | N/A | N/A | N/A | N/A | | |
| STATE | STATE SCHOOL PART 1 | N/A | N/A | N/A | N/A | | |
| STATE2 | STATE SCHOOL PART 2 | N/A | N/A | N/A | N/A | | |
| EMS2 | FIRE DIST #2 EMS | N/A | N/A | N/A | N/A | | |
| | Total Tax Rate: | N/A | | | | | |
| | | | | Taxes w/Current Exemptions: | N/A | | |
| | | | | Taxes w/o Exemptions: | N/A | | |
Improvement / Building
| Improvement #1: | Residential Bldg | State Code: | 11 | 0.0 sqft | Value: | $28,687 |
| | Type | Description | Class CD | Sub Class CD | Year Built | Area |
| | GDET | Detached Garage | 3 | * | 2000 | 440.0 |
| | BARN | Barn (Table Not Dep) | 1 | * | 2000 | 600.0 |
| | SHED | Shed (Table Not Dep) | 3 | * | 2000 | 216.0 |
Sketch
Property Image
Land
| 1 | 2530-1374S | Terr View Sites Area 1+/- Acre (Avg) | 0.0000 | 0.00 | 0.00 | 0.00 | 1.00 | $74,750 | $0 |
Roll Value History
| 2025 | N/A | N/A | N/A | N/A | N/A |
| 2024 | $27,492 | $71,500 | $0 | $98,992 | $98,992 |
| 2023 | $26,297 | $68,250 | $0 | $94,547 | $94,547 |
| 2022 | $23,906 | $64,000 | $0 | $87,906 | $87,906 |
| 2021 | $20,788 | $49,200 | $0 | $69,988 | $69,988 |
Deed and Sales History
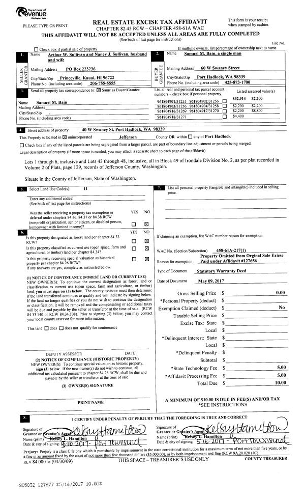
| 1 | 10/18/2017 | SWD | Statutory Warranty Deed | E KIRK GEORGE | JUSTIN L BACCHUS | | | $229,000.00 | 128953 | |
|   | |
| 2 | 08/21/2017 | QCD | Quit Claim Deed | | | | | | 0 | |
| 3 | 08/21/2017 | QCD | Quit Claim Deed | | | | | | 128409 | |
| 4 | 03/20/2013 | QCD | Quit Claim Deed | SANDRA GEORGE HOOD | E KIRK GEORGE | | | | 119214 | |
| 5 | 10/09/2009 | QCD | Quit Claim Deed | GEORGE, SANDRA | GEORGE, E KIRK | 0 | 0 | $0.00 | 113535 | 0 |
| 6 | 05/30/2007 | QCD | Quit Claim Deed | WRIGHT, FRANCES | HOOD, GEORGE, SANDRA, GEORGE, | | | $0.00 | 109539 | 0 |
| 7 | 06/17/2002 | QCD | Quit Claim Deed | FRANCES F WRIGHT | BRIAN E GEORGE, FRANCES WRIGHT | 0 | 0 | $0.00 | 94889 | 0 |
| 8 | 07/15/1998 | SWD | Statutory Warranty Deed | ROSE, NORMAN J | WRIGHT, MURRAY G/FRANCES F | 0 | 0 | $0.00 | 85093 | 0 |
Payout Agreement
| No payout information available.. |