Property
Account |
| Property ID: | 18184 | Abbreviated Legal Description: | S13 T27 R2W TX 65(ENLG BY TAX 171*) LESS S60' & TAX 95 & TAX 122 *JEFFCO CRT CSE 07-2-00189-1 |
| Parcel # / Geo ID: | 702133016 | Agent Code: | |
| Type: | Real | | |
| Tax Area: | 0324 - 1-48F2E2H2C2L1Z3 | Land Use Code | 11 |
| Open Space: | N | DFL | N |
| Historic Property: | N | Remodel Property: | N |
| Multi-Family Redevelopment: | N | | |
| Township: | 27N | Section: | 13 |
| Range: | 2W |
Location |
| Address: | 294222 HIGHWAY 101 QUILCENE, WA 98376 | Mapsco: | 159/051 |
| Neighborhood: | S13 T27N R2W & HAMILTON 5 ACRE TRACTS & ACKERMAN S.P. | Map ID: | |
| Neighborhood CD: | 2530 |
Owner |
| Name: | LAUREN REINERTSEN | Owner ID: | 110571 |
| Mailing Address: | DYLAN HENDY 294254 US HWY 101 QUILCENE, WA 98376-9766 | % Ownership: | 100.0000000000% |
| | | Exemptions: | |
Pay Tax Due
There is currently No Amount Due on this property.
Taxes and Assessment Details
Property Tax Information as of
10/24/2025
Click on "Statement Details" to expand or collapse a tax statement.
* Please enter a valid date ** Please enter a valid date *
Statement Details |
| | TOTAL: | $0.00 | $0.00 | $0.00 | $0.00 | $0.00 | $0.00 |
|
| | $0.00 | $0.00 | $0.00 | $0.00 | $0.00 | $0.00 |
Values
| (+) Improvement Homesite Value: | + | $0 | |
| (+) Improvement Non-Homesite Value: | + | $119,720 | |
| (+) Land Homesite Value: | + | $0 | |
| (+) Land Non-Homesite Value: | + | $78,488 | |
| (+) Curr Use (HS): | + | $0 | $0 |
| (+) Curr Use (NHS): | + | $0 | $0 |
| | | -------------------------- | |
| (=) Market Value: | = | $198,208 | |
| (–) Productivity Loss: | – | $0 | |
| | | -------------------------- | |
| (=) Subtotal: | = | $198,208 | |
| (+) Senior Appraised Value: | + | $0 | |
| (+) Non-Senior Appraised Value: | + | $198,208 | |
| | | -------------------------- | |
| (=) Total Appraised Value: | = | $198,208 | |
| (–) Senior Exemption Loss: | – | $0 | |
| (–) Exemption Loss: | – | $0 | |
| | | -------------------------- | |
| (=) Taxable Value: | = | $198,208 | |
Taxing Jurisdiction
| Owner: | LAUREN REINERTSEN | | |
| % Ownership: | 100.0000000000% | | |
| Total Value: | N/A | | |
| Tax Area: | 0324 - 1-48F2E2H2C2L1Z3 |
| CE | COUNTY CURRENT EXPENSE | N/A | N/A | N/A | N/A | | |
| CNTYDD | DEVELOPMENTAL DISABILITIES | N/A | N/A | N/A | N/A | | |
| CNTYVET | VETERANS RELIEF | N/A | N/A | N/A | N/A | | |
| MENTAL | MENTAL HEALTH | N/A | N/A | N/A | N/A | | |
| ROADS | COUNTY ROADS | N/A | N/A | N/A | N/A | | |
| ROADSCU | COUNTY ROADS TO CUR EXP | N/A | N/A | N/A | N/A | | |
| HOSP2CASH | HOSP DIST #2 GENERAL | N/A | N/A | N/A | N/A | | |
| SCH48MO | SCHOOL DIST #48 EP & O | N/A | N/A | N/A | N/A | | |
| CEM2 | CEMETERY DIST #2 GENERAL | N/A | N/A | N/A | N/A | | |
| CONSERVE | CONSERVATION FUTURES | N/A | N/A | N/A | N/A | | |
| FD2 | FIRE DIST #2 GENERAL | N/A | N/A | N/A | N/A | | |
| LIB1 | LIBRARY DIST #1 GENERAL | N/A | N/A | N/A | N/A | | |
| PORTPT | PORT OF PT GENERAL | N/A | N/A | N/A | N/A | | |
| PORTPTIDD | PORT OF PT IDD 2019 | N/A | N/A | N/A | N/A | | |
| PUD1 | PUD #1 GENERAL | N/A | N/A | N/A | N/A | | |
| STATE | STATE SCHOOL PART 1 | N/A | N/A | N/A | N/A | | |
| STATE2 | STATE SCHOOL PART 2 | N/A | N/A | N/A | N/A | | |
| EMS2 | FIRE DIST #2 EMS | N/A | N/A | N/A | N/A | | |
| | Total Tax Rate: | N/A | | | | | |
| | | | | Taxes w/Current Exemptions: | N/A | | |
| | | | | Taxes w/o Exemptions: | N/A | | |
Improvement / Building
| Improvement #1: | Residential Bldg | State Code: | 11 | 722.0 sqft | Value: | $119,720 |
| Bathrooms (#): | 1 (FULL) | Bedrooms (#): | 2 | | Exterior Wall: | SI/ST | Fireplace: | WD ST-GOOD | | Floor Construction: | FRAME | Foundation: | CONPR | | Heating/Cooling: | ELBB | Inside Verify: | NO | | Roof Cover: | COMP |   |   |
|
| | Type | Description | Class CD | Sub Class CD | Year Built | Area |
| | MA | Main Area | 3 | 1S | 1930 | 722.0 |
| | CARPTF | Carport W/Floor | 4 | * | 1930 | 400.0 |
| | CARPTF | Carport W/Floor | 4 | * | 1930 | 300.0 |
| | GDET | Detached Garage | 4 | * | 1930 | 400.0 |
| | HCPOR | House Concrete Porch | 3 | 1S | 1930 | 48.0 |
Sketch
Property Image
Land
| 1 | 2530-1375S | Wooded/No View Sites Area 1+/- Acre | 0.0000 | 0.00 | 0.00 | 0.00 | 1.00 | $78,488 | $0 |
Roll Value History
| 2025 | N/A | N/A | N/A | N/A | N/A |
| 2024 | $114,732 | $75,075 | $0 | $189,807 | $189,807 |
| 2023 | $109,744 | $66,413 | $0 | $176,157 | $176,157 |
| 2022 | $99,767 | $58,250 | $0 | $158,017 | $158,017 |
| 2021 | $86,754 | $48,600 | $0 | $135,354 | $135,354 |
Deed and Sales History
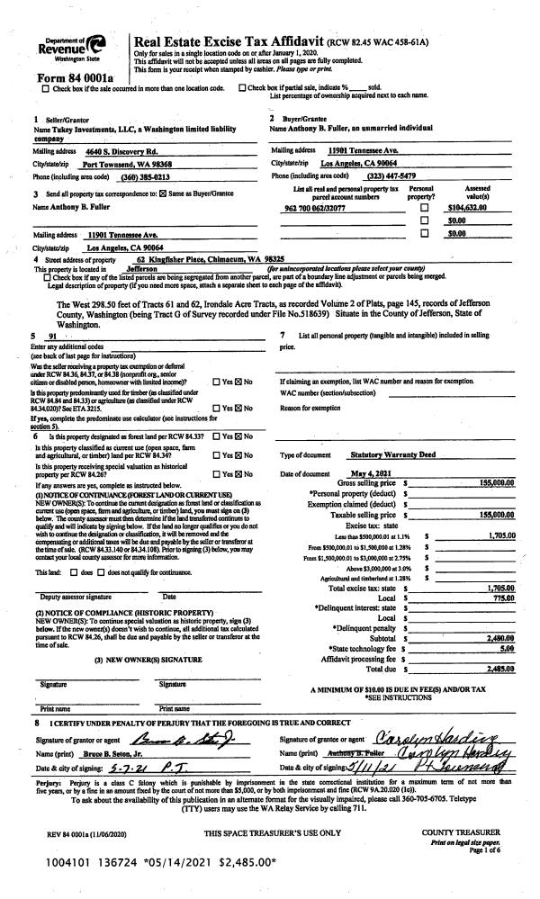
| 1 | 03/25/2024 | PRD | Personal Representatives Deed | CATHERINE HENDY | LAUREN REINERTSEN | | | | 142375 | |
| 2 | 01/30/2017 | SWD | Statutory Warranty Deed | JAMES R CORNING | CATHERINE HENDY | | | $106,000.00 | 127067 | |
Payout Agreement
| No payout information available.. |