Property
Account |
| Property ID: | 18339 | Abbreviated Legal Description: | S22 T27 R2W W1/2 E1/2 N1/2 NW SE |
| Parcel # / Geo ID: | 702224025 | Agent Code: | |
| Type: | Real | | |
| Tax Area: | 0303 - 1-48E2H2C2L1Z2 | Land Use Code | 95 |
| Open Space: | Y | DFL | N |
| Historic Property: | N | Remodel Property: | N |
| Multi-Family Redevelopment: | N | | |
| Township: | 27N | Section: | 22 |
| Range: | 2W |
Location |
| Address: | | Mapsco: | 162/052 |
| Neighborhood: | S19-22, S27-34 T27N R2W & RIVER VALLEY VIEW/JEFFCO/LOG CABIN | Map ID: | |
| Neighborhood CD: | 2590 |
Owner |
| Name: | JJC RESOURCES LLC | Owner ID: | 107611 |
| Mailing Address: | A WA LIMITED LIABILITY CO P O BOX 428 PORT ANGELES, WA 98362-0428 | % Ownership: | 100.0000000000% |
| | | Exemptions: | |
Pay Tax Due
There is currently No Amount Due on this property.
Taxes and Assessment Details
Property Tax Information as of
10/24/2025
Click on "Statement Details" to expand or collapse a tax statement.
* Please enter a valid date ** Please enter a valid date *
Statement Details |
| | TOTAL: | $0.00 | $0.00 | $0.00 | $0.00 | $0.00 | $0.00 |
|
| | $0.00 | $0.00 | $0.00 | $0.00 | $0.00 | $0.00 |
Values
| (+) Improvement Homesite Value: | + | $0 | |
| (+) Improvement Non-Homesite Value: | + | $0 | |
| (+) Land Homesite Value: | + | $0 | |
| (+) Land Non-Homesite Value: | + | $0 | |
| (+) Curr Use (HS): | + | $0 | $0 |
| (+) Curr Use (NHS): | + | $70,211 | $595 |
| | | -------------------------- | |
| (=) Market Value: | = | $70,211 | |
| (–) Productivity Loss: | – | $69,616 | |
| | | -------------------------- | |
| (=) Subtotal: | = | $595 | |
| (+) Senior Appraised Value: | + | $0 | |
| (+) Non-Senior Appraised Value: | + | $595 | |
| | | -------------------------- | |
| (=) Total Appraised Value: | = | $595 | |
| (–) Senior Exemption Loss: | – | $0 | |
| (–) Exemption Loss: | – | $0 | |
| | | -------------------------- | |
| (=) Taxable Value: | = | $595 | |
Taxing Jurisdiction
| Owner: | JJC RESOURCES LLC | | |
| % Ownership: | 100.0000000000% | | |
| Total Value: | N/A | | |
| Tax Area: | 0303 - 1-48E2H2C2L1Z2 |
| CE | COUNTY CURRENT EXPENSE | N/A | N/A | N/A | N/A | | |
| CNTYDD | DEVELOPMENTAL DISABILITIES | N/A | N/A | N/A | N/A | | |
| CNTYVET | VETERANS RELIEF | N/A | N/A | N/A | N/A | | |
| MENTAL | MENTAL HEALTH | N/A | N/A | N/A | N/A | | |
| ROADS | COUNTY ROADS | N/A | N/A | N/A | N/A | | |
| ROADSCU | COUNTY ROADS TO CUR EXP | N/A | N/A | N/A | N/A | | |
| HOSP2CASH | HOSP DIST #2 GENERAL | N/A | N/A | N/A | N/A | | |
| SCH48MO | SCHOOL DIST #48 EP & O | N/A | N/A | N/A | N/A | | |
| CEM2 | CEMETERY DIST #2 GENERAL | N/A | N/A | N/A | N/A | | |
| CONSERVE | CONSERVATION FUTURES | N/A | N/A | N/A | N/A | | |
| LIB1 | LIBRARY DIST #1 GENERAL | N/A | N/A | N/A | N/A | | |
| PORTPT | PORT OF PT GENERAL | N/A | N/A | N/A | N/A | | |
| PORTPTIDD | PORT OF PT IDD 2019 | N/A | N/A | N/A | N/A | | |
| PUD1 | PUD #1 GENERAL | N/A | N/A | N/A | N/A | | |
| STATE | STATE SCHOOL PART 1 | N/A | N/A | N/A | N/A | | |
| STATE2 | STATE SCHOOL PART 2 | N/A | N/A | N/A | N/A | | |
| EMS2 | FIRE DIST #2 EMS | N/A | N/A | N/A | N/A | | |
| | Total Tax Rate: | N/A | | | | | |
| | | | | Taxes w/Current Exemptions: | N/A | | |
| | | | | Taxes w/o Exemptions: | N/A | | |
Improvement / Building
Sketch
| No sketches available for this property. |
Property Image
Land
| 1 | 1577A | Terr/Mtn/No View <6 Acres | 0.1300 | 5662.80 | 0.00 | 0.00 | 0.00 | $785 | $19 |
| 2 | 1577A | Terr/Mtn/No View <6 Acres | 3.8800 | 169012.80 | 0.00 | 0.00 | 0.00 | $23,426 | $431 |
| 3 | 2590-1375S | Terr/Mtn/No View Sites 1+/- Acre | 1.0000 | 43560.00 | 0.00 | 0.00 | 1.00 | $46,000 | $145 |
Roll Value History
| 2025 | N/A | N/A | N/A | N/A | N/A |
| 2024 | $0 | $67,158 | $596 | $596 | $596 |
| 2023 | $0 | $62,527 | $586 | $586 | $586 |
| 2022 | $0 | $53,045 | $569 | $569 | $569 |
| 2021 | $0 | $40,836 | $569 | $569 | $569 |
Deed and Sales History
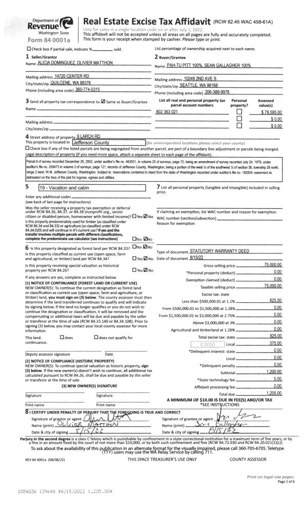
| 1 | 08/25/2022 | BSD | Bargain and Sale Deed | RICHARD A MAKI JR | JJC RESOURCES LLC | | | $137,448.00 | 139787 | |
|   | |
| 2 | 09/25/2000 | WD | Warranty Deed | MARTIN ESTATE, BERENICE E | MAKI JR, RICHARD | 0 | 0 | $0.00 | 91229 | 0 |
Payout Agreement
| No payout information available.. |