Property
Account |
| Property ID: | 18345 | Abbreviated Legal Description: | S23 T27 R2W TAX 19 LESS TAX 34(WITH EASE) |
| Parcel # / Geo ID: | 702231006 | Agent Code: | |
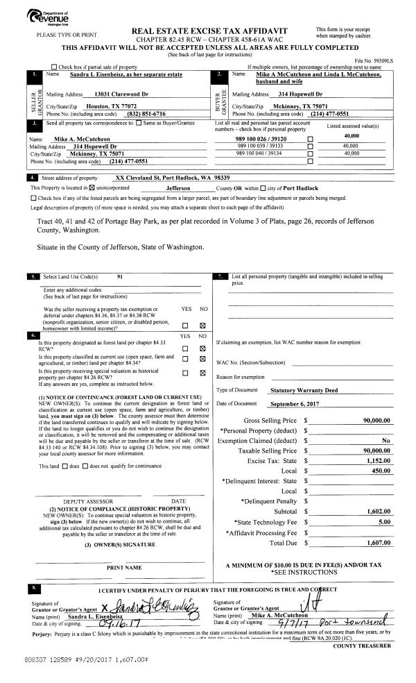
| Type: | Real | | |
| Tax Area: | 0320 - 1-48F2E2H2C2L1Z2 | Land Use Code | 11 |
| Open Space: | N | DFL | N |
| Historic Property: | N | Remodel Property: | N |
| Multi-Family Redevelopment: | N | | |
| Township: | 27N | Section: | 23 |
| Range: | 2W |
Location |
| Address: | 295547 HIGHWAY 101 QUILCENE, WA 98376 | Mapsco: | 163/038 |
| Neighborhood: | S23 T27N R2W & TRANQUILCENE & ANDERSON S.P. & JONES S.P. | Map ID: | |
| Neighborhood CD: | 2560 |
Owner |
| Name: | DAVID M LOVE | Owner ID: | 112154 |
| Mailing Address: | PO BOX 485 QUILCENE, WA 98376-0485 | % Ownership: | 100.0000000000% |
| | | Exemptions: | |
Pay Tax Due
There is currently No Amount Due on this property.
Taxes and Assessment Details
Property Tax Information as of
10/24/2025
Click on "Statement Details" to expand or collapse a tax statement.
* Please enter a valid date ** Please enter a valid date *
Statement Details |
| | TOTAL: | $0.00 | $0.00 | $0.00 | $0.00 | $0.00 | $0.00 |
|
| | $0.00 | $0.00 | $0.00 | $0.00 | $0.00 | $0.00 |
Values
| (+) Improvement Homesite Value: | + | $175,564 | |
| (+) Improvement Non-Homesite Value: | + | $0 | |
| (+) Land Homesite Value: | + | $125,350 | |
| (+) Land Non-Homesite Value: | + | $0 | |
| (+) Curr Use (HS): | + | $0 | $0 |
| (+) Curr Use (NHS): | + | $0 | $0 |
| | | -------------------------- | |
| (=) Market Value: | = | $300,914 | |
| (–) Productivity Loss: | – | $0 | |
| | | -------------------------- | |
| (=) Subtotal: | = | $300,914 | |
| (+) Senior Appraised Value: | + | $0 | |
| (+) Non-Senior Appraised Value: | + | $300,914 | |
| | | -------------------------- | |
| (=) Total Appraised Value: | = | $300,914 | |
| (–) Senior Exemption Loss: | – | $0 | |
| (–) Exemption Loss: | – | $0 | |
| | | -------------------------- | |
| (=) Taxable Value: | = | $300,914 | |
Taxing Jurisdiction
| Owner: | DAVID M LOVE | | |
| % Ownership: | 100.0000000000% | | |
| Total Value: | N/A | | |
| Tax Area: | 0320 - 1-48F2E2H2C2L1Z2 |
| CE | COUNTY CURRENT EXPENSE | N/A | N/A | N/A | N/A | | |
| CNTYDD | DEVELOPMENTAL DISABILITIES | N/A | N/A | N/A | N/A | | |
| CNTYVET | VETERANS RELIEF | N/A | N/A | N/A | N/A | | |
| MENTAL | MENTAL HEALTH | N/A | N/A | N/A | N/A | | |
| ROADS | COUNTY ROADS | N/A | N/A | N/A | N/A | | |
| ROADSCU | COUNTY ROADS TO CUR EXP | N/A | N/A | N/A | N/A | | |
| HOSP2CASH | HOSP DIST #2 GENERAL | N/A | N/A | N/A | N/A | | |
| SCH48MO | SCHOOL DIST #48 EP & O | N/A | N/A | N/A | N/A | | |
| CEM2 | CEMETERY DIST #2 GENERAL | N/A | N/A | N/A | N/A | | |
| CONSERVE | CONSERVATION FUTURES | N/A | N/A | N/A | N/A | | |
| FD2 | FIRE DIST #2 GENERAL | N/A | N/A | N/A | N/A | | |
| LIB1 | LIBRARY DIST #1 GENERAL | N/A | N/A | N/A | N/A | | |
| PORTPT | PORT OF PT GENERAL | N/A | N/A | N/A | N/A | | |
| PORTPTIDD | PORT OF PT IDD 2019 | N/A | N/A | N/A | N/A | | |
| PUD1 | PUD #1 GENERAL | N/A | N/A | N/A | N/A | | |
| STATE | STATE SCHOOL PART 1 | N/A | N/A | N/A | N/A | | |
| STATE2 | STATE SCHOOL PART 2 | N/A | N/A | N/A | N/A | | |
| EMS2 | FIRE DIST #2 EMS | N/A | N/A | N/A | N/A | | |
| | Total Tax Rate: | N/A | | | | | |
| | | | | Taxes w/Current Exemptions: | N/A | | |
| | | | | Taxes w/o Exemptions: | N/A | | |
Improvement / Building
| Improvement #1: | Residential Bldg | State Code: | 11 | 1248.0 sqft | Value: | $175,564 |
| Bathrooms (#): | 1 (FULL) | Bathrooms (#): | 1 (HALF) | | Bedrooms (#): | 3 | Exterior Wall: | PL/T1 | | Fireplace: | SIN 1-GOOD | Floor Construction: | FRAME | | Foundation: | CONPR | Heating/Cooling: | HPUMP | | Inside Verify: | YES | Roof Cover: | COMP |
|
| | Type | Description | Class CD | Sub Class CD | Year Built | Area |
| | MA | Main Area | 3- | 1S | 1976 | 1248.0 |
| | GATT | House Attached Garage | 3 | 1S | 1976 | 520.0 |
| | PATIO | House Patio | 2 | * | 1976 | 252.0 |
Sketch
Property Image
Land
| 1 | 1575A | Terr/Mtn/No View <6 Acres | 3.0000 | 130680.00 | 0.00 | 0.00 | 0.00 | $27,600 | $0 |
| 2 | 2560-1374S | Avg+ Terr/Mtn View Sites 1+/- Acre | 1.0000 | 43560.00 | 0.00 | 0.00 | 1.00 | $97,750 | $0 |
Roll Value History
| 2025 | N/A | N/A | N/A | N/A | N/A |
| 2024 | $160,933 | $119,900 | $0 | $280,833 | $41,488 |
| 2023 | $146,303 | $102,500 | $0 | $248,803 | $41,488 |
| 2022 | $146,303 | $85,250 | $0 | $231,553 | $41,488 |
| 2021 | $121,162 | $75,600 | $0 | $196,762 | $41,488 |
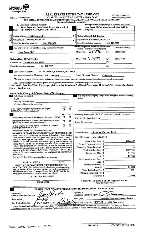
Deed and Sales History
| 1 | 01/17/2025 | DTH CERT | Death Certificate | SHELBY J COLYOTT LIFE ESTATE | | | | | 0 | 670114 |
| 2 | 06/15/2018 | QCD | Quit Claim Deed | SHELBY J COLYOTT LIFE ESTATE | DAVID M LOVE | | | | 134292 | |
| 3 | 06/15/2018 | QCD | Quit Claim Deed | SHELBY J COLYOTT LIFE ESTATE | DAVID M LOVE | | | | 130617 | |
| 4 | 06/15/2018 | QCD | Quit Claim Deed | SHELBY J COLYOTT LIFE ESTATE | DAVID M LOVE | | | | 130379 | |
Payout Agreement
| No payout information available.. |