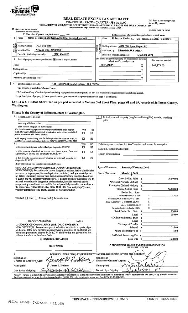
Property
Account |
| Property ID: | 18356 | Abbreviated Legal Description: | S23 T27 R2W TX 21 |
| Parcel # / Geo ID: | 702231019 | Agent Code: | |
| Type: | Real | | |
| Tax Area: | 0320 - 1-48F2E2H2C2L1Z2 | Land Use Code | 11 |
| Open Space: | N | DFL | N |
| Historic Property: | N | Remodel Property: | N |
| Multi-Family Redevelopment: | N | | |
| Township: | 27N | Section: | 23 |
| Range: | 2W |
Location |
| Address: | 295549 HIGHWAY 101 QUILCENE, WA 98376 | Mapsco: | 163/040 |
| Neighborhood: | S23 T27N R2W & TRANQUILCENE & ANDERSON S.P. & JONES S.P. | Map ID: | |
| Neighborhood CD: | 2560 |
Owner |
| Name: | JEFFREY W SIMON | Owner ID: | 27419 |
| Mailing Address: | PO BOX 760 QUILCENE, WA 98376-0760 | % Ownership: | 100.0000000000% |
| | | Exemptions: | |
Pay Tax Due
There is currently No Amount Due on this property.
Taxes and Assessment Details
Property Tax Information as of
10/24/2025
Click on "Statement Details" to expand or collapse a tax statement.
* Please enter a valid date ** Please enter a valid date *
Statement Details |
| | TOTAL: | $0.00 | $0.00 | $0.00 | $0.00 | $0.00 | $0.00 |
|
| | $0.00 | $0.00 | $0.00 | $0.00 | $0.00 | $0.00 |
Values
| (+) Improvement Homesite Value: | + | $0 | |
| (+) Improvement Non-Homesite Value: | + | $210,545 | |
| (+) Land Homesite Value: | + | $0 | |
| (+) Land Non-Homesite Value: | + | $144,348 | |
| (+) Curr Use (HS): | + | $0 | $0 |
| (+) Curr Use (NHS): | + | $0 | $0 |
| | | -------------------------- | |
| (=) Market Value: | = | $354,893 | |
| (–) Productivity Loss: | – | $0 | |
| | | -------------------------- | |
| (=) Subtotal: | = | $354,893 | |
| (+) Senior Appraised Value: | + | $0 | |
| (+) Non-Senior Appraised Value: | + | $354,893 | |
| | | -------------------------- | |
| (=) Total Appraised Value: | = | $354,893 | |
| (–) Senior Exemption Loss: | – | $0 | |
| (–) Exemption Loss: | – | $0 | |
| | | -------------------------- | |
| (=) Taxable Value: | = | $354,893 | |
Taxing Jurisdiction
| Owner: | JEFFREY W SIMON | | |
| % Ownership: | 100.0000000000% | | |
| Total Value: | N/A | | |
| Tax Area: | 0320 - 1-48F2E2H2C2L1Z2 |
| CE | COUNTY CURRENT EXPENSE | N/A | N/A | N/A | N/A | | |
| CNTYDD | DEVELOPMENTAL DISABILITIES | N/A | N/A | N/A | N/A | | |
| CNTYVET | VETERANS RELIEF | N/A | N/A | N/A | N/A | | |
| MENTAL | MENTAL HEALTH | N/A | N/A | N/A | N/A | | |
| ROADS | COUNTY ROADS | N/A | N/A | N/A | N/A | | |
| ROADSCU | COUNTY ROADS TO CUR EXP | N/A | N/A | N/A | N/A | | |
| HOSP2CASH | HOSP DIST #2 GENERAL | N/A | N/A | N/A | N/A | | |
| SCH48MO | SCHOOL DIST #48 EP & O | N/A | N/A | N/A | N/A | | |
| CEM2 | CEMETERY DIST #2 GENERAL | N/A | N/A | N/A | N/A | | |
| CONSERVE | CONSERVATION FUTURES | N/A | N/A | N/A | N/A | | |
| FD2 | FIRE DIST #2 GENERAL | N/A | N/A | N/A | N/A | | |
| LIB1 | LIBRARY DIST #1 GENERAL | N/A | N/A | N/A | N/A | | |
| PORTPT | PORT OF PT GENERAL | N/A | N/A | N/A | N/A | | |
| PORTPTIDD | PORT OF PT IDD 2019 | N/A | N/A | N/A | N/A | | |
| PUD1 | PUD #1 GENERAL | N/A | N/A | N/A | N/A | | |
| STATE | STATE SCHOOL PART 1 | N/A | N/A | N/A | N/A | | |
| STATE2 | STATE SCHOOL PART 2 | N/A | N/A | N/A | N/A | | |
| EMS2 | FIRE DIST #2 EMS | N/A | N/A | N/A | N/A | | |
| | Total Tax Rate: | N/A | | | | | |
| | | | | Taxes w/Current Exemptions: | N/A | | |
| | | | | Taxes w/o Exemptions: | N/A | | |
Improvement / Building
| Improvement #1: | Residential Bldg | State Code: | 11 | 1286.0 sqft | Value: | $210,545 |
| Bathrooms (#): | 1 (FULL) | Bedrooms (#): | 2 | | Exterior Wall: | SI/ST | Fireplace: | WD ST-GOOD | | Floor Construction: | FRAME | Foundation: | CONPR | | Heating/Cooling: | HPUMP | Inside Verify: | YES | | Roof Cover: | COMP |   |   |
|
| | Type | Description | Class CD | Sub Class CD | Year Built | Area |
| | MA | Main Area | 2+ | 1S | 1987 | 1286.0 |
| | HWPOR | House Wood Porch | 2 | * | 1987 | 50.0 |
| | HDECK | House Deck | 2 | * | 1987 | 96.0 |
| | HCPOR | House Concrete Porch | 2 | * | 1987 | 192.0 |
| | SHED | Shed (Table Not Dep) | 2 | * | 1987 | 60.0 |
| | GDET | Detached Garage | 3 | * | 1987 | 1152.0 |
Sketch
Property Image
Land
| 1 | 2560-1315S | Riverfront Bldg Sites 1+/- Acre | 1.0000 | 43560.00 | 0.00 | 0.00 | 1.00 | $103,500 | $0 |
| 2 | 1575A | Terr/Mtn/No View <6 Acres | 4.4400 | 193406.40 | 0.00 | 0.00 | 0.00 | $40,848 | $0 |
Roll Value History
| 2025 | N/A | N/A | N/A | N/A | N/A |
| 2024 | $192,999 | $138,072 | $0 | $331,071 | $331,071 |
| 2023 | $175,454 | $118,300 | $0 | $293,754 | $293,754 |
| 2022 | $175,454 | $109,970 | $0 | $285,424 | $285,424 |
| 2021 | $145,304 | $97,440 | $0 | $242,744 | $242,744 |
Deed and Sales History
| 1 | 07/21/2000 | SWD | Statutory Warranty Deed | MILLIGAN, DAVID M | SIMON, JEFFREY W | 0 | 0 | $151,500.00 | 90171 | 0 |
| 2 | 07/21/2000 | QCD | Quit Claim Deed | AKINS, JUDY | SIMON, JEFFREY W | 0 | 0 | $0.00 | 90172 | 0 |
| 3 | 04/08/2000 | SWD | Statutory Warranty Deed | KLINE, TODD A | MILLIGAN, DAVID M | 0 | 0 | $0.00 | 89374 | 0 |
| 4 | 09/19/1996 | SWD | Statutory Warranty Deed | MILLIGAN, DAVID M | KLINE, TODD A | 0 | 0 | $200,000.00 | 80399 | 0 |
| 5 | 09/19/1996 | SWD | Statutory Warranty Deed | MILLIGAN, DAVID M | KLINE, TODD A | 0 | 0 | $0.00 | 81518 | 0 |
| 6 | 09/19/1996 | SWD | Statutory Warranty Deed | MILLIGAN, DAVID M | KLINE, TODD A | 0 | 0 | $0.00 | 86355 | 0 |
Payout Agreement
| No payout information available.. |