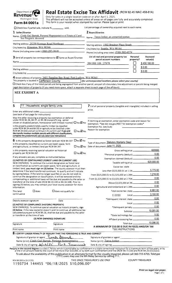
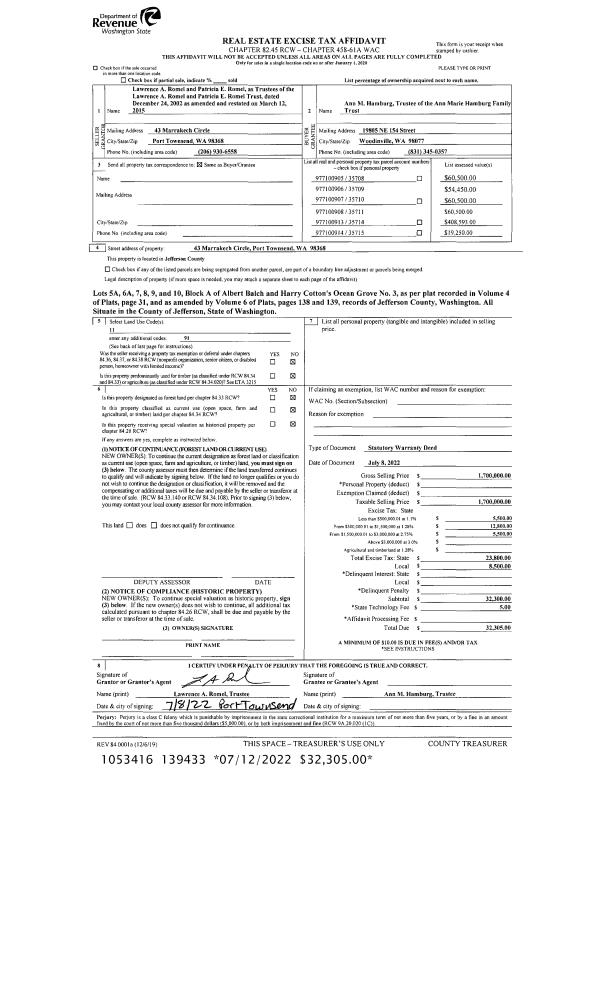
Property
Account |
| Property ID: | 18370 | Abbreviated Legal Description: | S23 T27 R2W SE NW (W 300' S OF HWY) W/EASE |
| Parcel # / Geo ID: | 702232004 | Agent Code: | |
| Type: | Real | | |
| Tax Area: | 0320 - 1-48F2E2H2C2L1Z2 | Land Use Code | 11 |
| Open Space: | N | DFL | N |
| Historic Property: | N | Remodel Property: | N |
| Multi-Family Redevelopment: | N | | |
| Township: | 27N | Section: | 23 |
| Range: | 2W |
Location |
| Address: | 295905 HIGHWAY 101 QUILCENE, WA 98376 | Mapsco: | 163/005 |
| Neighborhood: | S23 T27N R2W & TRANQUILCENE & ANDERSON S.P. & JONES S.P. | Map ID: | |
| Neighborhood CD: | 2560 |
Owner |
| Name: | MIKE D HUGHES | Owner ID: | 18639 |
| Mailing Address: | 130 GLEN LOGIE RD QUILCENE, WA 98376-8565 | % Ownership: | 100.0000000000% |
| | | Exemptions: | |
Pay Tax Due
There is currently No Amount Due on this property.
Taxes and Assessment Details
Property Tax Information as of
10/24/2025
Click on "Statement Details" to expand or collapse a tax statement.
* Please enter a valid date ** Please enter a valid date *
Statement Details |
| | TOTAL: | $0.00 | $0.00 | $0.00 | $0.00 | $0.00 | $0.00 |
|
| | $0.00 | $0.00 | $0.00 | $0.00 | $0.00 | $0.00 |
Values
| (+) Improvement Homesite Value: | + | $0 | |
| (+) Improvement Non-Homesite Value: | + | $257,688 | |
| (+) Land Homesite Value: | + | $0 | |
| (+) Land Non-Homesite Value: | + | $158,194 | |
| (+) Curr Use (HS): | + | $0 | $0 |
| (+) Curr Use (NHS): | + | $0 | $0 |
| | | -------------------------- | |
| (=) Market Value: | = | $415,882 | |
| (–) Productivity Loss: | – | $0 | |
| | | -------------------------- | |
| (=) Subtotal: | = | $415,882 | |
| (+) Senior Appraised Value: | + | $0 | |
| (+) Non-Senior Appraised Value: | + | $415,882 | |
| | | -------------------------- | |
| (=) Total Appraised Value: | = | $415,882 | |
| (–) Senior Exemption Loss: | – | $0 | |
| (–) Exemption Loss: | – | $0 | |
| | | -------------------------- | |
| (=) Taxable Value: | = | $415,882 | |
Taxing Jurisdiction
| Owner: | MIKE D HUGHES | | |
| % Ownership: | 100.0000000000% | | |
| Total Value: | N/A | | |
| Tax Area: | 0320 - 1-48F2E2H2C2L1Z2 |
| CE | COUNTY CURRENT EXPENSE | N/A | N/A | N/A | N/A | | |
| CNTYDD | DEVELOPMENTAL DISABILITIES | N/A | N/A | N/A | N/A | | |
| CNTYVET | VETERANS RELIEF | N/A | N/A | N/A | N/A | | |
| MENTAL | MENTAL HEALTH | N/A | N/A | N/A | N/A | | |
| ROADS | COUNTY ROADS | N/A | N/A | N/A | N/A | | |
| ROADSCU | COUNTY ROADS TO CUR EXP | N/A | N/A | N/A | N/A | | |
| HOSP2CASH | HOSP DIST #2 GENERAL | N/A | N/A | N/A | N/A | | |
| SCH48MO | SCHOOL DIST #48 EP & O | N/A | N/A | N/A | N/A | | |
| CEM2 | CEMETERY DIST #2 GENERAL | N/A | N/A | N/A | N/A | | |
| CONSERVE | CONSERVATION FUTURES | N/A | N/A | N/A | N/A | | |
| FD2 | FIRE DIST #2 GENERAL | N/A | N/A | N/A | N/A | | |
| LIB1 | LIBRARY DIST #1 GENERAL | N/A | N/A | N/A | N/A | | |
| PORTPT | PORT OF PT GENERAL | N/A | N/A | N/A | N/A | | |
| PORTPTIDD | PORT OF PT IDD 2019 | N/A | N/A | N/A | N/A | | |
| PUD1 | PUD #1 GENERAL | N/A | N/A | N/A | N/A | | |
| STATE | STATE SCHOOL PART 1 | N/A | N/A | N/A | N/A | | |
| STATE2 | STATE SCHOOL PART 2 | N/A | N/A | N/A | N/A | | |
| EMS2 | FIRE DIST #2 EMS | N/A | N/A | N/A | N/A | | |
| | Total Tax Rate: | N/A | | | | | |
| | | | | Taxes w/Current Exemptions: | N/A | | |
| | | | | Taxes w/o Exemptions: | N/A | | |
Improvement / Building
| Improvement #1: | Residential Bldg | State Code: | 11 | 962.0 sqft | Value: | $158,082 |
| Bathrooms (#): | 1 (FULL) | Bathrooms (#): | 1 (FULL) | | Bedrooms (#): | 2 | Exterior Wall: | PL/T1 | | Floor Construction: | FRAME | Foundation: | CONPR | | Heating/Cooling: | ELBB | Inside Verify: | NO | | Roof Cover: | METAL |   |   |
|
| | Type | Description | Class CD | Sub Class CD | Year Built | Area |
| | MA | Main Area | 2- | 1S | 1956 | 962.0 |
| | BSMTU | House basement unfinished | 2 | * | 1956 | 861.0 |
| | HCPOR | House Concrete Porch | 2 | * | 1956 | 105.0 |
| | HDECK | House Deck | 3 | * | 1956 | 836.0 |
| | CARPTF | Carport W/Floor | 1 | * | 1956 | 864.0 |
| | CARPTF | Carport W/Floor | 1 | * | 1956 | 360.0 |
| | ASPHD | Asphalt Drive | 2 | * | 1956 | 1500.0 |
| Improvement #2: | Residential Bldg | State Code: | 11 | 1225.0 sqft | Value: | $99,606 |
| Bathrooms (#): | 2 (FULL) | Bedrooms (#): | 2 | | Exterior Wall: | SI/ST | Floor Construction: | FRAME | | Foundation: | CONPR | Heating/Cooling: | ELBB | | Inside Verify: | NO | Roof Cover: | METAL |
|
| | Type | Description | Class CD | Sub Class CD | Year Built | Area |
| | MA | Main Area | 3+ | 15SF | 2009 | 745.0 |
| | MA2 | Second Floor Main Area | 3+ | 15SF | 2009 | 480.0 |
| | HBAL | House Balcony | 4 | * | 2009 | 96.0 |
| | HWPOR | House Wood Porch | 4 | * | 2009 | 574.0 |
Sketch
Property Image
Land
| 1 | 2560-1374S | Avg+ Terr/Mtn View Sites 1+/- Acre | 1.0000 | 43560.00 | 0.00 | 0.00 | 1.00 | $132,250 | $0 |
| 2 | 1575A | Terr/Mtn/No View <6 Acres | 2.8200 | 122839.20 | 0.00 | 0.00 | 0.00 | $25,944 | $0 |
Roll Value History
| 2025 | N/A | N/A | N/A | N/A | N/A |
| 2024 | $236,215 | $151,316 | $0 | $387,531 | $387,531 |
| 2023 | $214,740 | $126,150 | $0 | $340,890 | $340,890 |
| 2022 | $214,740 | $104,035 | $0 | $318,775 | $318,775 |
| 2021 | $177,838 | $92,520 | $0 | $270,358 | $270,358 |
Deed and Sales History
| 1 | 03/11/2004 | QCD | Quit Claim Deed | HUGHES, CONNIE J | HUGHES, MIKE D | 0 | 0 | $0.00 | 99892 | 0 |
| 2 | 03/11/2004 | QCD | Quit Claim Deed | HUGHES, ANGIE S | HUGHES, MIKE D | 0 | 0 | $0.00 | 99893 | 0 |
| 3 | 12/16/2003 | QCD | Quit Claim Deed | HUGHES, RICHARD F | HUGHES, MIKE D | 0 | 0 | $68,475.00 | 99064 | 0 |
Payout Agreement
| No payout information available.. |