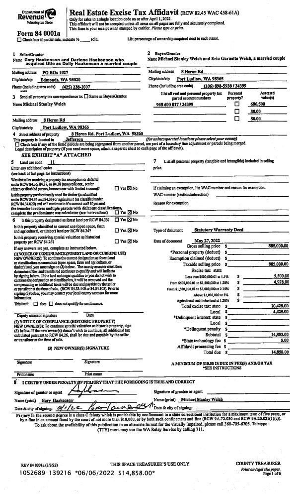
Property
Account |
| Property ID: | 18392 | Abbreviated Legal Description: | S23 T27 R2W W1/2 SW (LS TAX 33 & LESS PTN TAX 40) BND TGTH THRU BLA#107099 |
| Parcel # / Geo ID: | 702233005 | Agent Code: | |
| Type: | Real | | |
| Tax Area: | 0320 - 1-48F2E2H2C2L1Z2 | Land Use Code | 88 |
| Open Space: | N | DFL | Y |
| Historic Property: | N | Remodel Property: | N |
| Multi-Family Redevelopment: | N | | |
| Township: | 27N | Section: | 23 |
| Range: | 2W |
Location |
| Address: | 160 GLEN LOGIE RD QUILCENE, WA 98376 | Mapsco: | 163/014 |
| Neighborhood: | S23 T27N R2W & TRANQUILCENE & ANDERSON S.P. & JONES S.P. | Map ID: | |
| Neighborhood CD: | 2560 |
Owner |
| Name: | MARK BACLAWSKI | Owner ID: | 10777 |
| Mailing Address: | 857 57TH ST PORT TOWNSEND, WA 98368-1202 | % Ownership: | 100.0000000000% |
| | | Exemptions: | |
Pay Tax Due
There is currently No Amount Due on this property.
Taxes and Assessment Details
Property Tax Information as of
10/24/2025
Click on "Statement Details" to expand or collapse a tax statement.
* Please enter a valid date ** Please enter a valid date *
Statement Details |
| | TOTAL: | $0.00 | $0.00 | $0.00 | $0.00 | $0.00 | $0.00 |
|
| | $0.00 | $0.00 | $0.00 | $0.00 | $0.00 | $0.00 |
Values
| (+) Improvement Homesite Value: | + | $0 | |
| (+) Improvement Non-Homesite Value: | + | $28,568 | |
| (+) Land Homesite Value: | + | $0 | |
| (+) Land Non-Homesite Value: | + | $102,169 | |
| (+) Curr Use (HS): | + | $0 | $0 |
| (+) Curr Use (NHS): | + | $73,382 | $3,412 |
| | | -------------------------- | |
| (=) Market Value: | = | $204,119 | |
| (–) Productivity Loss: | – | $69,970 | |
| | | -------------------------- | |
| (=) Subtotal: | = | $134,149 | |
| (+) Senior Appraised Value: | + | $0 | |
| (+) Non-Senior Appraised Value: | + | $134,149 | |
| | | -------------------------- | |
| (=) Total Appraised Value: | = | $134,149 | |
| (–) Senior Exemption Loss: | – | $0 | |
| (–) Exemption Loss: | – | $0 | |
| | | -------------------------- | |
| (=) Taxable Value: | = | $134,149 | |
Taxing Jurisdiction
| Owner: | MARK BACLAWSKI | | |
| % Ownership: | 100.0000000000% | | |
| Total Value: | N/A | | |
| Tax Area: | 0320 - 1-48F2E2H2C2L1Z2 |
| CE | COUNTY CURRENT EXPENSE | N/A | N/A | N/A | N/A | | |
| CNTYDD | DEVELOPMENTAL DISABILITIES | N/A | N/A | N/A | N/A | | |
| CNTYVET | VETERANS RELIEF | N/A | N/A | N/A | N/A | | |
| MENTAL | MENTAL HEALTH | N/A | N/A | N/A | N/A | | |
| ROADS | COUNTY ROADS | N/A | N/A | N/A | N/A | | |
| ROADSCU | COUNTY ROADS TO CUR EXP | N/A | N/A | N/A | N/A | | |
| HOSP2CASH | HOSP DIST #2 GENERAL | N/A | N/A | N/A | N/A | | |
| SCH48MO | SCHOOL DIST #48 EP & O | N/A | N/A | N/A | N/A | | |
| CEM2 | CEMETERY DIST #2 GENERAL | N/A | N/A | N/A | N/A | | |
| CONSERVE | CONSERVATION FUTURES | N/A | N/A | N/A | N/A | | |
| FD2 | FIRE DIST #2 GENERAL | N/A | N/A | N/A | N/A | | |
| LIB1 | LIBRARY DIST #1 GENERAL | N/A | N/A | N/A | N/A | | |
| PORTPT | PORT OF PT GENERAL | N/A | N/A | N/A | N/A | | |
| PORTPTIDD | PORT OF PT IDD 2019 | N/A | N/A | N/A | N/A | | |
| PUD1 | PUD #1 GENERAL | N/A | N/A | N/A | N/A | | |
| STATE | STATE SCHOOL PART 1 | N/A | N/A | N/A | N/A | | |
| STATE2 | STATE SCHOOL PART 2 | N/A | N/A | N/A | N/A | | |
| EMS2 | FIRE DIST #2 EMS | N/A | N/A | N/A | N/A | | |
| | Total Tax Rate: | N/A | | | | | |
| | | | | Taxes w/Current Exemptions: | N/A | | |
| | | | | Taxes w/o Exemptions: | N/A | | |
Improvement / Building
| Improvement #1: | Residential Bldg | State Code: | 19 | 196.0 sqft | Value: | $28,568 |
| Bedrooms (#): | 1 | Exterior Wall: | PL/T1 | | Fireplace: | WD ST-GOOD | Floor Construction: | FRAME | | Foundation: | PO&BL | Heating/Cooling: | WD/NO | | Inside Verify: | NO | Interior Finish: | FIN | | Roof Cover: | COMP |   |   |
|
| | Type | Description | Class CD | Sub Class CD | Year Built | Area |
| | MA | Main Area | 3 | C15F | 2009 | 196.0 |
| | CLOFT | Cabin Loft | 3 | C15F | 2009 | 84.0 |
| | CRPO | Cabin Roof Porch | 3 | * | 2009 | 56.0 |
| | SHED | Shed (Table Not Dep) | 3 | * | 2009 | 576.0 |
Sketch
Property Image
Land
| 1 | 1977A | Terr/Mtn/No View >40 Acres | 6.6800 | 290980.80 | 0.00 | 0.00 | 0.00 | $23,046 | $1,242 |
| 2 | 1977A | Terr/Mtn/No View >40 Acres | 13.9200 | 606355.20 | 0.00 | 0.00 | 0.00 | $48,024 | $2,074 |
| 3 | 1977A | Terr/Mtn/No View >40 Acres | 0.6700 | 29185.20 | 0.00 | 0.00 | 0.00 | $2,312 | $96 |
| 4 | 1977A | Terr/Mtn/No View >40 Acres | 15.9300 | 693910.80 | 0.00 | 0.00 | 0.00 | $41,219 | $0 |
| 5 | 2560-1375S | Quilcene Bldg Sites >1 Acre | 1.0000 | 43560.00 | 0.00 | 0.00 | 1.00 | $60,950 | $0 |
Roll Value History
| 2025 | N/A | N/A | N/A | N/A | N/A |
| 2024 | $26,188 | $167,918 | $3,433 | $127,348 | $127,348 |
| 2023 | $23,807 | $149,653 | $3,384 | $113,034 | $113,034 |
| 2022 | $23,807 | $124,044 | $3,292 | $97,968 | $97,968 |
| 2021 | $20,702 | $110,922 | $3,292 | $83,868 | $83,868 |
Deed and Sales History
| 1 | 07/22/2021 | BLA | Boundary Line Adjustment | MARK BACLAWSKI | MARK BACLAWSKI | | | | 137207 | |
| 2 | 07/24/2006 | SWD | Statutory Warranty Deed | BACKLAWSKI, MARK | SKOKOMISH INDIAN TRIBE | | | $50,000.00 | 107203 | 0 |
| 3 | 06/23/2006 | BLA | Boundary Line Adjustment | BACLAWSKI, MARK | SKOKOMISH INDIAN TRIBE | | | $0.00 | 107099 | 0 |
| 4 | 08/30/2000 | SWD | Statutory Warranty Deed | ROSE, NORMAN J/FAMILY TRU | BACLAWSKI, MARK | 0 | 0 | $0.00 | 90514 | 0 |
| 5 | 08/09/2000 | SWD | Statutory Warranty Deed | ROSE, NORMAN J | ROSE, NORMAN J/FAMILY TRUST | 0 | 0 | $0.00 | 90403 | 0 |
Payout Agreement
| No payout information available.. |