Property
Account |
| Property ID: | 18559 | Abbreviated Legal Description: | S27 T27 R2W TAX 7 |
| Parcel # / Geo ID: | 702273009 | Agent Code: | |
| Type: | Real | | |
| Tax Area: | 0320 - 1-48F2E2H2C2L1Z2 | Land Use Code | 19 |
| Open Space: | N | DFL | N |
| Historic Property: | N | Remodel Property: | N |
| Multi-Family Redevelopment: | N | | |
| Township: | 27N | Section: | 27 |
| Range: | 2W |
Location |
| Address: | 113 STAGECOACH LN QUILCENE, WA 98376 | Mapsco: | 166/024 |
| Neighborhood: | S19-22, S27-34 T27N R2W & RIVER VALLEY VIEW/JEFFCO/LOG CABIN | Map ID: | |
| Neighborhood CD: | 2590 |
Owner |
| Name: | CHRISTINE M CREASMAN | Owner ID: | 13847 |
| Mailing Address: | PO BOX 880 QUILCENE, WA 98376-0880 | % Ownership: | 100.0000000000% |
| | | Exemptions: | |
Pay Tax Due
There is currently No Amount Due on this property.
Taxes and Assessment Details
Property Tax Information as of
10/24/2025
Click on "Statement Details" to expand or collapse a tax statement.
* Please enter a valid date ** Please enter a valid date *
Statement Details |
| | TOTAL: | $0.00 | $0.00 | $0.00 | $0.00 | $0.00 | $0.00 |
|
| | $0.00 | $0.00 | $0.00 | $0.00 | $0.00 | $0.00 |
Values
| (+) Improvement Homesite Value: | + | $0 | |
| (+) Improvement Non-Homesite Value: | + | $120,098 | |
| (+) Land Homesite Value: | + | $0 | |
| (+) Land Non-Homesite Value: | + | $78,775 | |
| (+) Curr Use (HS): | + | $0 | $0 |
| (+) Curr Use (NHS): | + | $0 | $0 |
| | | -------------------------- | |
| (=) Market Value: | = | $198,873 | |
| (–) Productivity Loss: | – | $0 | |
| | | -------------------------- | |
| (=) Subtotal: | = | $198,873 | |
| (+) Senior Appraised Value: | + | $0 | |
| (+) Non-Senior Appraised Value: | + | $198,873 | |
| | | -------------------------- | |
| (=) Total Appraised Value: | = | $198,873 | |
| (–) Senior Exemption Loss: | – | $0 | |
| (–) Exemption Loss: | – | $0 | |
| | | -------------------------- | |
| (=) Taxable Value: | = | $198,873 | |
Taxing Jurisdiction
| Owner: | CHRISTINE M CREASMAN | | |
| % Ownership: | 100.0000000000% | | |
| Total Value: | N/A | | |
| Tax Area: | 0320 - 1-48F2E2H2C2L1Z2 |
| CE | COUNTY CURRENT EXPENSE | N/A | N/A | N/A | N/A | | |
| CNTYDD | DEVELOPMENTAL DISABILITIES | N/A | N/A | N/A | N/A | | |
| CNTYVET | VETERANS RELIEF | N/A | N/A | N/A | N/A | | |
| MENTAL | MENTAL HEALTH | N/A | N/A | N/A | N/A | | |
| ROADS | COUNTY ROADS | N/A | N/A | N/A | N/A | | |
| ROADSCU | COUNTY ROADS TO CUR EXP | N/A | N/A | N/A | N/A | | |
| HOSP2CASH | HOSP DIST #2 GENERAL | N/A | N/A | N/A | N/A | | |
| SCH48MO | SCHOOL DIST #48 EP & O | N/A | N/A | N/A | N/A | | |
| CEM2 | CEMETERY DIST #2 GENERAL | N/A | N/A | N/A | N/A | | |
| CONSERVE | CONSERVATION FUTURES | N/A | N/A | N/A | N/A | | |
| FD2 | FIRE DIST #2 GENERAL | N/A | N/A | N/A | N/A | | |
| LIB1 | LIBRARY DIST #1 GENERAL | N/A | N/A | N/A | N/A | | |
| PORTPT | PORT OF PT GENERAL | N/A | N/A | N/A | N/A | | |
| PORTPTIDD | PORT OF PT IDD 2019 | N/A | N/A | N/A | N/A | | |
| PUD1 | PUD #1 GENERAL | N/A | N/A | N/A | N/A | | |
| STATE | STATE SCHOOL PART 1 | N/A | N/A | N/A | N/A | | |
| STATE2 | STATE SCHOOL PART 2 | N/A | N/A | N/A | N/A | | |
| EMS2 | FIRE DIST #2 EMS | N/A | N/A | N/A | N/A | | |
| | Total Tax Rate: | N/A | | | | | |
| | | | | Taxes w/Current Exemptions: | N/A | | |
| | | | | Taxes w/o Exemptions: | N/A | | |
Improvement / Building
| Improvement #1: | Residential Bldg | State Code: | 19 | 312.0 sqft | Value: | $120,098 |
| Bathrooms (#): | 1 (FULL) | Bedrooms (#): | 1 | | Exterior Wall: | SI/ST | Fireplace: | PROPS-GOOD | | Floor Construction: | FRAME | Foundation: | PO&BL | | Heating/Cooling: | ELBB | Inside Verify: | NO | | Roof Cover: | METAL |   |   |
|
| | Type | Description | Class CD | Sub Class CD | Year Built | Area |
| | MA | Main Area | 4 | MSG | 2010 | 312.0 |
| | HWPOR | House Wood Porch | 3 | MSG | 2010 | 84.0 |
| | GDET | Detached Garage | 3 | * | 1996 | 527.0 |
| | ADDN | Addition (Table Not Dep) | 2 | * | 1996 | 400.0 |
| | GDET | Detached Garage | 3 | * | 2010 | 576.0 |
| | SHED | Shed (Table Not Dep) | 3 | * | 1996 | 96.0 |
| | SHED | Shed (Table Not Dep) | 4 | * | 2020 | 160.0 |
| | DECK | Deck (Table Not Dep) | 3 | * | 2020 | 100.0 |
Sketch
Property Image
Land
| 1 | 2590-1374S | Avg+ Terr/Mtn View Sites 1+/- Acre | 0.0000 | 0.00 | 0.00 | 0.00 | 1.00 | $78,775 | $0 |
Roll Value History
| 2025 | N/A | N/A | N/A | N/A | N/A |
| 2024 | $115,094 | $75,350 | $0 | $190,444 | $190,444 |
| 2023 | $110,090 | $66,675 | $0 | $176,765 | $176,765 |
| 2022 | $100,082 | $55,000 | $0 | $155,082 | $155,082 |
| 2021 | $82,884 | $45,720 | $0 | $128,604 | $128,604 |
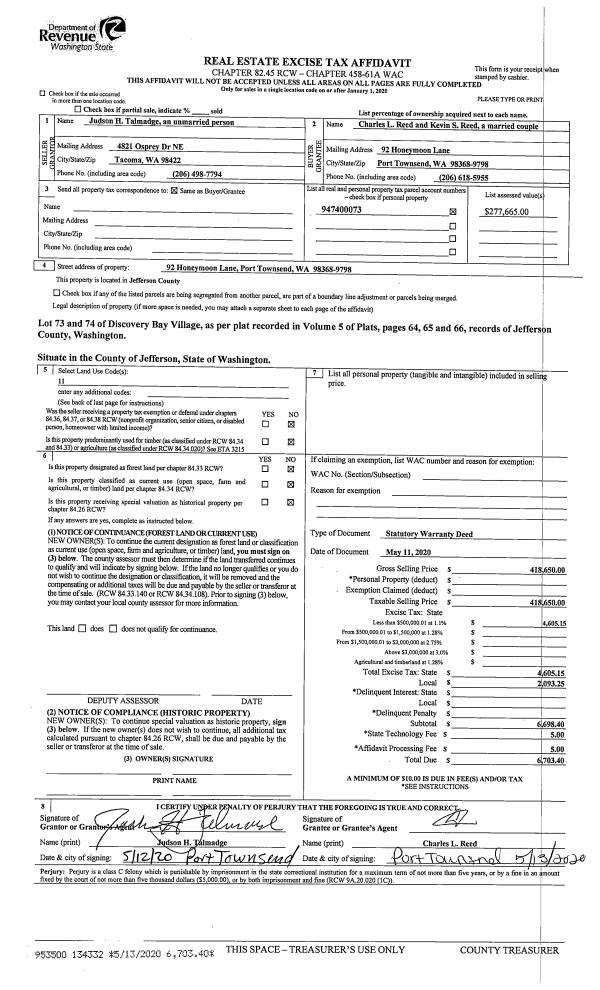
Deed and Sales History
| 1 | 09/22/1995 | REC | Real Estate Contract | SMITH, WILLIAM E/MARDELLE | CREASMAN, LARRY E/CHRISTINE M | 0 | 0 | $20,000.00 | 77856 | 0 |
Payout Agreement
| No payout information available.. |