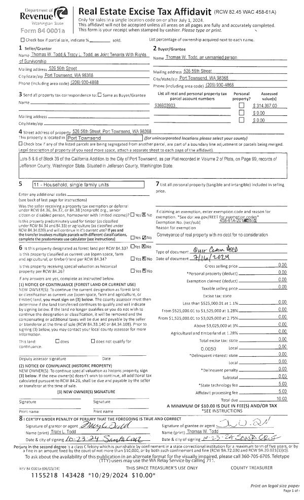
Property
Account |
| Property ID: | 18638 | Abbreviated Legal Description: | S31 T27 R10W TAX 73(LESS TAX 40) |
| Parcel # / Geo ID: | 710312018 | Agent Code: | |
| Type: | Real | | |
| Tax Area: | 0601 - 1-402H1L1 | Land Use Code | 91 |
| Open Space: | N | DFL | N |
| Historic Property: | N | Remodel Property: | N |
| Multi-Family Redevelopment: | N | | |
| Township: | 27N | Section: | 31 |
| Range: | 10W |
Location |
| Address: | | Mapsco: | 912/050 |
| Neighborhood: | ALL SECTIONS T27N R10W (UPPER HOH,BRANDEBERRY EST, RAIN FOR) | Map ID: | |
| Neighborhood CD: | 1730 |
Owner |
| Name: | NANCY CLAUSON | Owner ID: | 108510 |
| Mailing Address: | CAROL LEWIS PO BOX 622 SELAH, WA 98942-0622 | % Ownership: | 100.0000000000% |
| | | Exemptions: | |
Pay Tax Due
There is currently No Amount Due on this property.
Taxes and Assessment Details
Property Tax Information as of
10/24/2025
Click on "Statement Details" to expand or collapse a tax statement.
* Please enter a valid date ** Please enter a valid date *
Statement Details |
| | TOTAL: | $0.00 | $0.00 | $0.00 | $0.00 | $0.00 | $0.00 |
|
| | $0.00 | $0.00 | $0.00 | $0.00 | $0.00 | $0.00 |
Values
| (+) Improvement Homesite Value: | + | $0 | |
| (+) Improvement Non-Homesite Value: | + | $0 | |
| (+) Land Homesite Value: | + | $0 | |
| (+) Land Non-Homesite Value: | + | $18,780 | |
| (+) Curr Use (HS): | + | $0 | $0 |
| (+) Curr Use (NHS): | + | $0 | $0 |
| | | -------------------------- | |
| (=) Market Value: | = | $18,780 | |
| (–) Productivity Loss: | – | $0 | |
| | | -------------------------- | |
| (=) Subtotal: | = | $18,780 | |
| (+) Senior Appraised Value: | + | $0 | |
| (+) Non-Senior Appraised Value: | + | $18,780 | |
| | | -------------------------- | |
| (=) Total Appraised Value: | = | $18,780 | |
| (–) Senior Exemption Loss: | – | $0 | |
| (–) Exemption Loss: | – | $0 | |
| | | -------------------------- | |
| (=) Taxable Value: | = | $18,780 | |
Taxing Jurisdiction
| Owner: | NANCY CLAUSON | | |
| % Ownership: | 100.0000000000% | | |
| Total Value: | N/A | | |
| Tax Area: | 0601 - 1-402H1L1 |
| CE | COUNTY CURRENT EXPENSE | N/A | N/A | N/A | N/A | | |
| CNTYDD | DEVELOPMENTAL DISABILITIES | N/A | N/A | N/A | N/A | | |
| CNTYVET | VETERANS RELIEF | N/A | N/A | N/A | N/A | | |
| MENTAL | MENTAL HEALTH | N/A | N/A | N/A | N/A | | |
| ROADS | COUNTY ROADS | N/A | N/A | N/A | N/A | | |
| ROADSCU | COUNTY ROADS TO CUR EXP | N/A | N/A | N/A | N/A | | |
| HOS1GEN | HOSP DIST #1 GENERAL | N/A | N/A | N/A | N/A | | |
| SCH402BOND | SCHOOL DIST #402 BOND | N/A | N/A | N/A | N/A | | |
| SCH402MO | SCHOOL DIST #402 EP & O | N/A | N/A | N/A | N/A | | |
| CONSERVE | CONSERVATION FUTURES | N/A | N/A | N/A | N/A | | |
| LIB1 | LIBRARY DIST #1 GENERAL | N/A | N/A | N/A | N/A | | |
| PORTPT | PORT OF PT GENERAL | N/A | N/A | N/A | N/A | | |
| PORTPTIDD | PORT OF PT IDD 2019 | N/A | N/A | N/A | N/A | | |
| PUD1 | PUD #1 GENERAL | N/A | N/A | N/A | N/A | | |
| STATE | STATE SCHOOL PART 1 | N/A | N/A | N/A | N/A | | |
| STATE2 | STATE SCHOOL PART 2 | N/A | N/A | N/A | N/A | | |
| | Total Tax Rate: | N/A | | | | | |
| | | | | Taxes w/Current Exemptions: | N/A | | |
| | | | | Taxes w/o Exemptions: | N/A | | |
Improvement / Building
Sketch
| No sketches available for this property. |
Property Image
Land
| 1 | WEST-1685A | No/Limited Terr View Acre 6-15 Ac | 6.2600 | 272685.60 | 0.00 | 0.00 | 0.00 | $18,780 | $0 |
Roll Value History
| 2025 | N/A | N/A | N/A | N/A | N/A |
| 2024 | $0 | $18,780 | $0 | $18,780 | $18,780 |
| 2023 | $0 | $17,215 | $0 | $17,215 | $17,215 |
| 2022 | $0 | $17,215 | $0 | $17,215 | $17,215 |
| 2021 | $0 | $11,268 | $0 | $11,268 | $11,268 |
Deed and Sales History
| 1 | 02/28/2023 | QCD | Quit Claim Deed | FLORENCE BRANDEBERRY | NANCY CLAUSON | | | | 143777 | RERCD 140640/143424 |
| 2 | 12/28/2009 | QCD | Quit Claim Deed | CLAUSON, NANCY A, LEWIS, | BRANDEBERRY, FLORENCE M | 0 | 0 | $0.00 | 113890 | 0 |
| 3 | 08/28/2006 | SWD | Statutory Warranty Deed | BRANDEBERRY, FLORENCE | CLAUSON, NANCY/LEWIS, CAROL/ | 0 | 0 | $0.00 | 107530 | 0 |
Payout Agreement
| No payout information available.. |