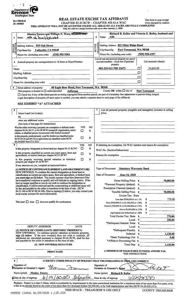
Property
Account |
| Property ID: | 18730 | Abbreviated Legal Description: | S29 T27 R11W TX 2 |
| Parcel # / Geo ID: | 711292010 | Agent Code: | |
| Type: | Real | | |
| Tax Area: | 0601 - 1-402H1L1 | Land Use Code | 11 |
| Open Space: | N | DFL | N |
| Historic Property: | N | Remodel Property: | N |
| Multi-Family Redevelopment: | N | | |
| Township: | 27N | Section: | 29 |
| Range: | 11W |
Location |
| Address: | 5692 UPPER HOH RD FORKS, WA 98331 | Mapsco: | 914/043 |
| Neighborhood: | S14 - S36 T27N R11W (UPPER HOH - RESORT/FARMS,FLETCHER RCH) | Map ID: | |
| Neighborhood CD: | 1735 |
Owner |
| Name: | RAYMOND & CATHY FORTIN | Owner ID: | 98145 |
| Mailing Address: | 5692 UPPER HOH RD FORKS, WA 98331-9454 | % Ownership: | 100.0000000000% |
| | | Exemptions: | |
Pay Tax Due
There is currently No Amount Due on this property.
Taxes and Assessment Details
Property Tax Information as of
10/24/2025
Click on "Statement Details" to expand or collapse a tax statement.
* Please enter a valid date ** Please enter a valid date *
Statement Details |
| | TOTAL: | $0.00 | $0.00 | $0.00 | $0.00 | $0.00 | $0.00 |
|
| | $0.00 | $0.00 | $0.00 | $0.00 | $0.00 | $0.00 |
Values
| (+) Improvement Homesite Value: | + | $72,090 | |
| (+) Improvement Non-Homesite Value: | + | $0 | |
| (+) Land Homesite Value: | + | $42,260 | |
| (+) Land Non-Homesite Value: | + | $0 | |
| (+) Curr Use (HS): | + | $0 | $0 |
| (+) Curr Use (NHS): | + | $0 | $0 |
| | | -------------------------- | |
| (=) Market Value: | = | $114,350 | |
| (–) Productivity Loss: | – | $0 | |
| | | -------------------------- | |
| (=) Subtotal: | = | $114,350 | |
| (+) Senior Appraised Value: | + | $0 | |
| (+) Non-Senior Appraised Value: | + | $114,350 | |
| | | -------------------------- | |
| (=) Total Appraised Value: | = | $114,350 | |
| (–) Senior Exemption Loss: | – | $0 | |
| (–) Exemption Loss: | – | $0 | |
| | | -------------------------- | |
| (=) Taxable Value: | = | $114,350 | |
Taxing Jurisdiction
| Owner: | RAYMOND & CATHY FORTIN | | |
| % Ownership: | 100.0000000000% | | |
| Total Value: | N/A | | |
| Tax Area: | 0601 - 1-402H1L1 |
| CE | COUNTY CURRENT EXPENSE | N/A | N/A | N/A | N/A | | |
| CNTYDD | DEVELOPMENTAL DISABILITIES | N/A | N/A | N/A | N/A | | |
| CNTYVET | VETERANS RELIEF | N/A | N/A | N/A | N/A | | |
| MENTAL | MENTAL HEALTH | N/A | N/A | N/A | N/A | | |
| ROADS | COUNTY ROADS | N/A | N/A | N/A | N/A | | |
| ROADSCU | COUNTY ROADS TO CUR EXP | N/A | N/A | N/A | N/A | | |
| HOS1GEN | HOSP DIST #1 GENERAL | N/A | N/A | N/A | N/A | | |
| SCH402BOND | SCHOOL DIST #402 BOND | N/A | N/A | N/A | N/A | | |
| SCH402MO | SCHOOL DIST #402 EP & O | N/A | N/A | N/A | N/A | | |
| CONSERVE | CONSERVATION FUTURES | N/A | N/A | N/A | N/A | | |
| LIB1 | LIBRARY DIST #1 GENERAL | N/A | N/A | N/A | N/A | | |
| PORTPT | PORT OF PT GENERAL | N/A | N/A | N/A | N/A | | |
| PORTPTIDD | PORT OF PT IDD 2019 | N/A | N/A | N/A | N/A | | |
| PUD1 | PUD #1 GENERAL | N/A | N/A | N/A | N/A | | |
| STATE | STATE SCHOOL PART 1 | N/A | N/A | N/A | N/A | | |
| STATE2 | STATE SCHOOL PART 2 | N/A | N/A | N/A | N/A | | |
| | Total Tax Rate: | N/A | | | | | |
| | | | | Taxes w/Current Exemptions: | N/A | | |
| | | | | Taxes w/o Exemptions: | N/A | | |
Improvement / Building
| Improvement #1: | Residential Bldg | State Code: | 11 | 1940.0 sqft | Value: | $72,090 |
| Exterior Wall: | PL/T1 | Fireplace: | WD ST-GOOD | | Floor Construction: | FRAME | Foundation: | PO&BL | | Heating/Cooling: | OTHER | Inside Verify: | NO | | Roof Cover: | METAL |   |   |
|
| | Type | Description | Class CD | Sub Class CD | Year Built | Area |
| | MA | Main Area | 2 | 15SF | 1960 | 1490.0 |
| | MA2 | Second Floor Main Area | 2 | 15SF | 1960 | 450.0 |
| | HWPOR | House Wood Porch | 2 | * | 1960 | 147.0 |
| | SHED | Shed (Table Not Dep) | 1 | * | 1960 | 616.0 |
Sketch
Property Image
Land
| 1 | WEST-1325S | Riverfront Sites 1+/- Acre | 1.0000 | 43560.00 | 0.00 | 0.00 | 1.00 | $29,000 | $0 |
| 2 | WEST-1625A | Riverfront Acres Fair Access/Topo 6-15 Ac | 2.0400 | 88862.40 | 0.00 | 0.00 | 0.00 | $13,260 | $0 |
Roll Value History
| 2025 | N/A | N/A | N/A | N/A | N/A |
| 2024 | $72,090 | $42,260 | $0 | $114,350 | $114,350 |
| 2023 | $72,090 | $34,240 | $0 | $106,330 | $106,330 |
| 2022 | $72,090 | $34,240 | $0 | $106,330 | $106,330 |
| 2021 | $65,536 | $24,160 | $0 | $89,696 | $89,696 |
Deed and Sales History
| 1 | 10/16/2017 | BSD | Bargain and Sale Deed | QUALITY LOAN SERVICE CORP | RAYMOND & CATHY FORTIN | | | $82,000.00 | 128840 | |
| 2 | 12/28/2016 | TRED | Trustee Deed | JO SANDERS | QUALITY LOAN SERVICE CORP | | | $151,000.00 | 126897 | |
| 3 | 12/07/2005 | SWD | Statutory Warranty Deed | HOLLUM, DONALD & SHARI | SANDERS, JO | 0 | 0 | $208,000.00 | 105543 | 0 |
| 4 | 05/15/1996 | SWD | Statutory Warranty Deed | ROBINSON, JOHN C | HOLLUM, DONALD K/SHARI | 0 | 0 | $148,000.00 | 79677 | 0 |
|   | |
| 5 | 02/26/1993 | SWD | Statutory Warranty Deed | OWENS, GENE/MARY | ROBINSON, JOHN C | 0 | 0 | $132,275.00 | 70531 | 0 |
|   | |
Payout Agreement
| No payout information available.. |