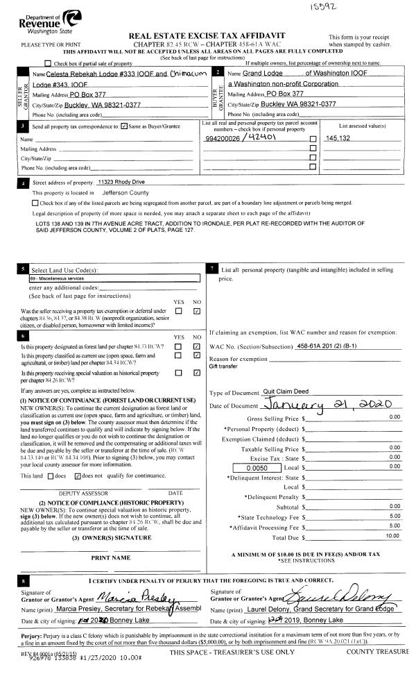
Property
Account |
| Property ID: | 18827 | Abbreviated Legal Description: | S6 T27 R12W TAX 30 W/EASE |
| Parcel # / Geo ID: | 712064021 | Agent Code: | |
| Type: | Real | | |
| Tax Area: | 0691 - 1-402F9H1L1 | Land Use Code | 19 |
| Open Space: | N | DFL | N |
| Historic Property: | N | Remodel Property: | N |
| Multi-Family Redevelopment: | N | | |
| Township: | 27N | Section: | 6 |
| Range: | 12W |
Location |
| Address: | 2533 DOWANS CREEK RD FORKS, WA 98331 | Mapsco: | 923/055 |
| Neighborhood: | S1 - S17 T27N R12W (END OF S. BOGACHIEL RD)/VVC,VANAUSDLE SP | Map ID: | |
| Neighborhood CD: | 1750 |
Owner |
| Name: | BRYAN ANDERSON | Owner ID: | 10367 |
| Mailing Address: | LAURIE ANDERSON 549 S MCCRORIE RD PORT ANGELES, WA 98362-7482 | % Ownership: | 100.0000000000% |
| | | Exemptions: | |
Pay Tax Due
There is currently No Amount Due on this property.
Taxes and Assessment Details
Property Tax Information as of
10/24/2025
Click on "Statement Details" to expand or collapse a tax statement.
* Please enter a valid date ** Please enter a valid date *
Statement Details |
| | TOTAL: | $0.00 | $0.00 | $0.00 | $0.00 | $0.00 | $0.00 |
|
| | $0.00 | $0.00 | $0.00 | $0.00 | $0.00 | $0.00 |
Values
| (+) Improvement Homesite Value: | + | $0 | |
| (+) Improvement Non-Homesite Value: | + | $11,090 | |
| (+) Land Homesite Value: | + | $0 | |
| (+) Land Non-Homesite Value: | + | $33,650 | |
| (+) Curr Use (HS): | + | $0 | $0 |
| (+) Curr Use (NHS): | + | $0 | $0 |
| | | -------------------------- | |
| (=) Market Value: | = | $44,740 | |
| (–) Productivity Loss: | – | $0 | |
| | | -------------------------- | |
| (=) Subtotal: | = | $44,740 | |
| (+) Senior Appraised Value: | + | $0 | |
| (+) Non-Senior Appraised Value: | + | $44,740 | |
| | | -------------------------- | |
| (=) Total Appraised Value: | = | $44,740 | |
| (–) Senior Exemption Loss: | – | $0 | |
| (–) Exemption Loss: | – | $0 | |
| | | -------------------------- | |
| (=) Taxable Value: | = | $44,740 | |
Taxing Jurisdiction
| Owner: | BRYAN ANDERSON | | |
| % Ownership: | 100.0000000000% | | |
| Total Value: | N/A | | |
| Tax Area: | 0691 - 1-402F9H1L1 |
| CE | COUNTY CURRENT EXPENSE | N/A | N/A | N/A | N/A | | |
| CNTYDD | DEVELOPMENTAL DISABILITIES | N/A | N/A | N/A | N/A | | |
| CNTYVET | VETERANS RELIEF | N/A | N/A | N/A | N/A | | |
| MENTAL | MENTAL HEALTH | N/A | N/A | N/A | N/A | | |
| ROADS | COUNTY ROADS | N/A | N/A | N/A | N/A | | |
| ROADSCU | COUNTY ROADS TO CUR EXP | N/A | N/A | N/A | N/A | | |
| HOS1GEN | HOSP DIST #1 GENERAL | N/A | N/A | N/A | N/A | | |
| SCH402BOND | SCHOOL DIST #402 BOND | N/A | N/A | N/A | N/A | | |
| SCH402MO | SCHOOL DIST #402 EP & O | N/A | N/A | N/A | N/A | | |
| CONSERVE | CONSERVATION FUTURES | N/A | N/A | N/A | N/A | | |
| FD9 | FIRE DIST #9 GENERAL | N/A | N/A | N/A | N/A | | |
| LIB1 | LIBRARY DIST #1 GENERAL | N/A | N/A | N/A | N/A | | |
| PORTPT | PORT OF PT GENERAL | N/A | N/A | N/A | N/A | | |
| PORTPTIDD | PORT OF PT IDD 2019 | N/A | N/A | N/A | N/A | | |
| PUD1 | PUD #1 GENERAL | N/A | N/A | N/A | N/A | | |
| STATE | STATE SCHOOL PART 1 | N/A | N/A | N/A | N/A | | |
| STATE2 | STATE SCHOOL PART 2 | N/A | N/A | N/A | N/A | | |
| | Total Tax Rate: | N/A | | | | | |
| | | | | Taxes w/Current Exemptions: | N/A | | |
| | | | | Taxes w/o Exemptions: | N/A | | |
Improvement / Building
| Improvement #1: | Residential Bldg | State Code: | 19 | 264.0 sqft | Value: | $11,090 |
| Exterior Wall: | SI/ST | Floor Construction: | FRAME | | Foundation: | PO&BL | Heating/Cooling: | WD/NO | | Interior Finish: | FIN | Roof Cover: | METAL |
|
| | Type | Description | Class CD | Sub Class CD | Year Built | Area |
| | MA | Main Area | 1 | C1S | 2010 | 264.0 |
| | OTHER | Other | * | * | 2010 | 0.0 |
| | CCARPTN | Cabin Carport W/O Floor | 1 | * | 2010 | 420.0 |
Sketch
Property Image
Land
| 1 | WEST-1528A | Riverfront Acres Limited Access/Topo <6 Ac | 2.3000 | 100188.00 | 0.00 | 0.00 | 0.00 | $12,650 | $0 |
| 2 | WEST-1325S | Riverfront Sites 1+/- Acre | 1.0000 | 43560.00 | 0.00 | 0.00 | 1.00 | $21,000 | $0 |
Roll Value History
| 2025 | N/A | N/A | N/A | N/A | N/A |
| 2024 | $11,090 | $33,650 | $0 | $44,740 | $44,740 |
| 2023 | $11,090 | $28,500 | $0 | $39,590 | $39,590 |
| 2022 | $11,090 | $28,500 | $0 | $39,590 | $39,590 |
| 2021 | $10,082 | $19,590 | $0 | $29,672 | $29,672 |
Deed and Sales History
| 1 | 12/18/2007 | SWD | Statutory Warranty Deed | CRITCHFIELD, GEORGIE | ANDERSON, BRYAN/LAURIE | 0 | 0 | $42,000.00 | 110716 | 0 |
Payout Agreement
| No payout information available.. |