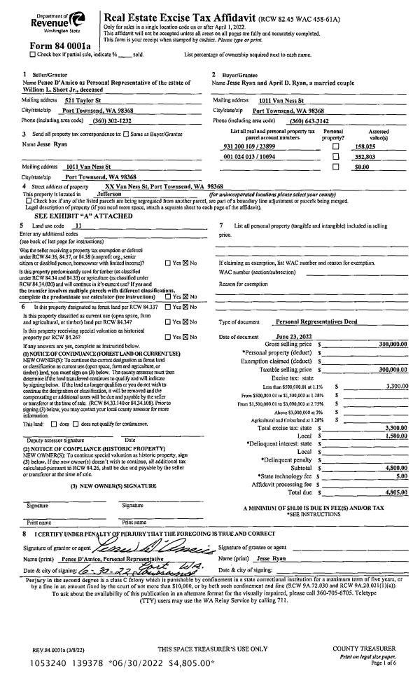
Property
Account |
| Property ID: | 19049 | Abbreviated Legal Description: | S3 T27 R1E TAX 22 BND THRU BLA#138499 |
| Parcel # / Geo ID: | 721031011 | Agent Code: | |
| Type: | Real | | |
| Tax Area: | 0213 - 1-49F1E1H2L1 | Land Use Code | 11 |
| Open Space: | N | DFL | N |
| Historic Property: | N | Remodel Property: | N |
| Multi-Family Redevelopment: | N | | |
| Township: | 27N | Section: | 3 |
| Range: | 1E |
Location |
| Address: | 162 LONGMIRE LN PORT LUDLOW, WA 98365 | Mapsco: | 146/036 |
| Neighborhood: | S2 & S3 T27N R1E; SQUAMISH HARBOR & LONGMIRE SHORT PLATS | Map ID: | |
| Neighborhood CD: | 3410 |
Owner |
| Name: | NELLIE ANDERSEN & | Owner ID: | 112228 |
| Mailing Address: | NEZAM TOOLOEE 162 LONGMIRE LN PORT LUDLOW, WA 98365-8246 | % Ownership: | 100.0000000000% |
| | | Exemptions: | |
Pay Tax Due
There is currently No Amount Due on this property.
Taxes and Assessment Details
Property Tax Information as of
10/24/2025
Click on "Statement Details" to expand or collapse a tax statement.
* Please enter a valid date ** Please enter a valid date *
Statement Details |
| | TOTAL: | $0.00 | $0.00 | $0.00 | $0.00 | $0.00 | $0.00 |
|
| | $0.00 | $0.00 | $0.00 | $0.00 | $0.00 | $0.00 |
Values
| (+) Improvement Homesite Value: | + | $0 | |
| (+) Improvement Non-Homesite Value: | + | $563,848 | |
| (+) Land Homesite Value: | + | $0 | |
| (+) Land Non-Homesite Value: | + | $413,347 | |
| (+) Curr Use (HS): | + | $0 | $0 |
| (+) Curr Use (NHS): | + | $0 | $0 |
| | | -------------------------- | |
| (=) Market Value: | = | $977,195 | |
| (–) Productivity Loss: | – | $0 | |
| | | -------------------------- | |
| (=) Subtotal: | = | $977,195 | |
| (+) Senior Appraised Value: | + | $0 | |
| (+) Non-Senior Appraised Value: | + | $977,195 | |
| | | -------------------------- | |
| (=) Total Appraised Value: | = | $977,195 | |
| (–) Senior Exemption Loss: | – | $0 | |
| (–) Exemption Loss: | – | $0 | |
| | | -------------------------- | |
| (=) Taxable Value: | = | $977,195 | |
Taxing Jurisdiction
| Owner: | NELLIE ANDERSEN & | | |
| % Ownership: | 100.0000000000% | | |
| Total Value: | N/A | | |
| Tax Area: | 0213 - 1-49F1E1H2L1 |
| CE | COUNTY CURRENT EXPENSE | N/A | N/A | N/A | N/A | | |
| CNTYDD | DEVELOPMENTAL DISABILITIES | N/A | N/A | N/A | N/A | | |
| CNTYVET | VETERANS RELIEF | N/A | N/A | N/A | N/A | | |
| MENTAL | MENTAL HEALTH | N/A | N/A | N/A | N/A | | |
| ROADS | COUNTY ROADS | N/A | N/A | N/A | N/A | | |
| ROADSCU | COUNTY ROADS TO CUR EXP | N/A | N/A | N/A | N/A | | |
| HOSP2CASH | HOSP DIST #2 GENERAL | N/A | N/A | N/A | N/A | | |
| SCH49CP | SCHOOL DIST #49 CAP PROJ | N/A | N/A | N/A | N/A | | |
| SCH49MO | SCHOOL DIST #49 EP & O | N/A | N/A | N/A | N/A | | |
| CONSERVE | CONSERVATION FUTURES | N/A | N/A | N/A | N/A | | |
| EMS1 | FIRE DIST #1 EMS | N/A | N/A | N/A | N/A | | |
| FD1 | FIRE DIST #1 GENERAL | N/A | N/A | N/A | N/A | | |
| LIB1 | LIBRARY DIST #1 GENERAL | N/A | N/A | N/A | N/A | | |
| PORTPT | PORT OF PT GENERAL | N/A | N/A | N/A | N/A | | |
| PORTPTIDD | PORT OF PT IDD 2019 | N/A | N/A | N/A | N/A | | |
| PUD1 | PUD #1 GENERAL | N/A | N/A | N/A | N/A | | |
| STATE | STATE SCHOOL PART 1 | N/A | N/A | N/A | N/A | | |
| STATE2 | STATE SCHOOL PART 2 | N/A | N/A | N/A | N/A | | |
| | Total Tax Rate: | N/A | | | | | |
| | | | | Taxes w/Current Exemptions: | N/A | | |
| | | | | Taxes w/o Exemptions: | N/A | | |
Improvement / Building
| Improvement #1: | Residential Bldg | State Code: | 11 | 2220.0 sqft | Value: | $563,848 |
| Bathrooms (#): | 2 (FULL) | Bedrooms (#): | 2 | | Exterior Wall: | PL/T1 | Fireplace: | WD ST-GOOD | | Floor Construction: | FRAME | Foundation: | CONPR | | Heating/Cooling: | HPUMP | Inside Verify: | NO | | Roof Cover: | METAL |   |   |
|
| | Type | Description | Class CD | Sub Class CD | Year Built | Area |
| | MA | Main Area | 4 | 2S | 1989 | 1292.0 |
| | MA2 | Second Floor Main Area | 4 | 2S | 1989 | 928.0 |
| | HWPOR | House Wood Porch | 4 | * | 1989 | 128.0 |
| | HBAL | House Balcony | 4 | * | 1989 | 24.0 |
| | HDECK | House Deck | 4 | * | 1989 | 1208.0 |
| | HENCL | House Enclosure | 4 | * | 1989 | 162.0 |
| | BSMTF | House basement finished | 4 | * | 1989 | 316.0 |
| | HLOFT | House Loft | 4 | * | 1989 | 110.0 |
| | BSMTU | House basement unfinished | 4 | * | 1989 | 316.0 |
Sketch
Property Image
Land
| 1 | 3410-1525F | Medium to High Bank Wtrfrt along Hood Canal | 0.0000 | 0.00 | 0.00 | 0.00 | 0.00 | $281,400 | $0 |
| 2 | 3410-1525F | Medium to High Bank Wtrfrt along Hood Canal | 0.0000 | 0.00 | 40.00 | 0.00 | 0.00 | $131,947 | $0 |
Roll Value History
| 2025 | N/A | N/A | N/A | N/A | N/A |
| 2024 | $538,218 | $393,664 | $0 | $931,882 | $931,882 |
| 2023 | $538,218 | $388,664 | $0 | $926,882 | $926,882 |
| 2022 | $538,218 | $383,664 | $0 | $921,882 | $921,882 |
| 2021 | $281,139 | $315,220 | $0 | $596,359 | $596,359 |
Deed and Sales History
| 1 | 03/04/2025 | QCD | Quit Claim Deed | NELLIE ANDERSEN | NELLIE ANDERSEN & | | | | 143945 | |
| 2 | 01/19/2022 | QCD | Quit Claim Deed | RICHARD D BALLARD TRSTE | NELLIE ANDERSEN | | | $10,000.00 | 138500 | |
| 3 | 01/19/2022 | BLA | Boundary Line Adjustment | RICHARD D BALLARD TRSTE | NELLIE ANDERSEN | | | | 138499 | |
| 4 | 09/11/2018 | SWD | Statutory Warranty Deed | RONALD A & RUTH E BERGER | NELLIE ANDERSEN | | | $575,000.00 | 130989 | |
| 5 | 05/07/2015 | SWD | Statutory Warranty Deed | FRED ANTROBUS TRUSTE | RONALD A & RUTH E BERGER | | | $350,000.00 | 123183 | |
| 6 | 04/18/2002 | QCD | Quit Claim Deed | ANTROBUS, FRED B/SHIRLEY | ANTROBUS TRUST | 0 | 0 | $0.00 | 94469 | 0 |
Payout Agreement
| No payout information available.. |