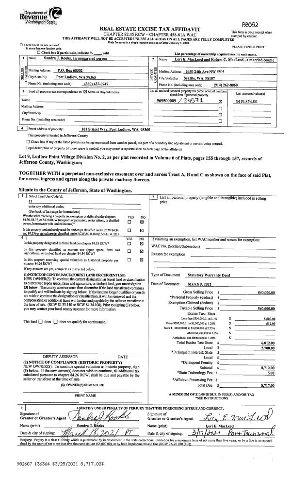
Property
Account |
| Property ID: | 19157 | Abbreviated Legal Description: | S16 T27 R1E TAX 18 W/TL TAX A-51 ADJ(TRACT C) SURVEY VOL 16/PAGE 109 |
| Parcel # / Geo ID: | 721162039 | Agent Code: | |
| Type: | Real | | |
| Tax Area: | 0213 - 1-49F1E1H2L1 | Land Use Code | 11 |
| Open Space: | N | DFL | N |
| Historic Property: | N | Remodel Property: | N |
| Multi-Family Redevelopment: | N | | |
| Township: | 27N | Section: | 16 |
| Range: | 1E |
Location |
| Address: | 241 SOUTH BEACH DR PORT LUDLOW, WA 98365 | Mapsco: | 147/154 |
| Neighborhood: | TRAILS END HOMESITES (ALL DIVISIONS) | Map ID: | |
| Neighborhood CD: | 3435 |
Owner |
| Name: | BRIAN S & ALYSA A THOMAS | Owner ID: | 82711 |
| Mailing Address: | 241 S BEACH DR PORT LUDLOW, WA 98365-9523 | % Ownership: | 100.0000000000% |
| | | Exemptions: | |
Pay Tax Due
There is currently No Amount Due on this property.
Taxes and Assessment Details
Property Tax Information as of
10/24/2025
Click on "Statement Details" to expand or collapse a tax statement.
* Please enter a valid date ** Please enter a valid date *
Statement Details |
| | TOTAL: | $0.00 | $0.00 | $0.00 | $0.00 | $0.00 | $0.00 |
|
| | $0.00 | $0.00 | $0.00 | $0.00 | $0.00 | $0.00 |
Values
| (+) Improvement Homesite Value: | + | $0 | |
| (+) Improvement Non-Homesite Value: | + | $487,615 | |
| (+) Land Homesite Value: | + | $0 | |
| (+) Land Non-Homesite Value: | + | $360,623 | |
| (+) Curr Use (HS): | + | $0 | $0 |
| (+) Curr Use (NHS): | + | $0 | $0 |
| | | -------------------------- | |
| (=) Market Value: | = | $848,238 | |
| (–) Productivity Loss: | – | $0 | |
| | | -------------------------- | |
| (=) Subtotal: | = | $848,238 | |
| (+) Senior Appraised Value: | + | $0 | |
| (+) Non-Senior Appraised Value: | + | $848,238 | |
| | | -------------------------- | |
| (=) Total Appraised Value: | = | $848,238 | |
| (–) Senior Exemption Loss: | – | $0 | |
| (–) Exemption Loss: | – | $0 | |
| | | -------------------------- | |
| (=) Taxable Value: | = | $848,238 | |
Taxing Jurisdiction
| Owner: | BRIAN S & ALYSA A THOMAS | | |
| % Ownership: | 100.0000000000% | | |
| Total Value: | N/A | | |
| Tax Area: | 0213 - 1-49F1E1H2L1 |
| CE | COUNTY CURRENT EXPENSE | N/A | N/A | N/A | N/A | | |
| CNTYDD | DEVELOPMENTAL DISABILITIES | N/A | N/A | N/A | N/A | | |
| CNTYVET | VETERANS RELIEF | N/A | N/A | N/A | N/A | | |
| MENTAL | MENTAL HEALTH | N/A | N/A | N/A | N/A | | |
| ROADS | COUNTY ROADS | N/A | N/A | N/A | N/A | | |
| ROADSCU | COUNTY ROADS TO CUR EXP | N/A | N/A | N/A | N/A | | |
| HOSP2CASH | HOSP DIST #2 GENERAL | N/A | N/A | N/A | N/A | | |
| SCH49CP | SCHOOL DIST #49 CAP PROJ | N/A | N/A | N/A | N/A | | |
| SCH49MO | SCHOOL DIST #49 EP & O | N/A | N/A | N/A | N/A | | |
| CONSERVE | CONSERVATION FUTURES | N/A | N/A | N/A | N/A | | |
| EMS1 | FIRE DIST #1 EMS | N/A | N/A | N/A | N/A | | |
| FD1 | FIRE DIST #1 GENERAL | N/A | N/A | N/A | N/A | | |
| LIB1 | LIBRARY DIST #1 GENERAL | N/A | N/A | N/A | N/A | | |
| PORTPT | PORT OF PT GENERAL | N/A | N/A | N/A | N/A | | |
| PORTPTIDD | PORT OF PT IDD 2019 | N/A | N/A | N/A | N/A | | |
| PUD1 | PUD #1 GENERAL | N/A | N/A | N/A | N/A | | |
| STATE | STATE SCHOOL PART 1 | N/A | N/A | N/A | N/A | | |
| STATE2 | STATE SCHOOL PART 2 | N/A | N/A | N/A | N/A | | |
| | Total Tax Rate: | N/A | | | | | |
| | | | | Taxes w/Current Exemptions: | N/A | | |
| | | | | Taxes w/o Exemptions: | N/A | | |
Improvement / Building
| Improvement #1: | Residential Bldg | State Code: | 11 | 2016.0 sqft | Value: | $417,671 |
| Bathrooms (#): | 4 (FULL) | Bedrooms (#): | 3 | | Exterior Wall: | SI/ST | Floor Construction: | CONCR | | Foundation: | CONPR | Heating/Cooling: | HPUMP | | Roof Cover: | METAL |   |   |
|
| | Type | Description | Class CD | Sub Class CD | Year Built | Area |
| | MA | Main Area | 4 | 2S | 2019 | 1008.0 |
| | MA2 | Second Floor Main Area | 4 | 2S | 2019 | 1008.0 |
| | PATIO | House Patio | 4 | * | 2019 | 1804.5 |
| Improvement #2: | Residential Bldg | State Code: | 11 | 0.0 sqft | Value: | $69,944 |
| | Type | Description | Class CD | Sub Class CD | Year Built | Area |
| | GDET | Detached Garage | 4 | * | 2018 | 1008.0 |
| | CONCD | Concrete Drive | 4 | * | 2018 | 144.0 |
Sketch
Property Image
Land
| 1 | 3435-1113L | Wtrfrt Res. Lots/Sites in Trails End | 0.0000 | 0.00 | 0.00 | 0.00 | 1.00 | $359,100 | $0 |
| 2 | 9301F | Tidelands | 0.0000 | 0.00 | 0.00 | 0.00 | 0.00 | $1,523 | $0 |
Roll Value History
| 2025 | N/A | N/A | N/A | N/A | N/A |
| 2024 | $465,450 | $343,450 | $0 | $808,900 | $808,900 |
| 2023 | $465,450 | $338,450 | $0 | $803,900 | $803,900 |
| 2022 | $465,450 | $333,450 | $0 | $798,900 | $798,900 |
| 2021 | $398,885 | $309,608 | $0 | $708,493 | $708,493 |
Deed and Sales History
| 1 | 07/31/2019 | QCD | Quit Claim Deed | BRIAN S & ALYSA A THOMAS | ALYSA A RUSSELL | | | | 132815 | |
| 2 | 07/19/2016 | QCD | Quit Claim Deed | BRIAN S THOMAS TRUSTEE | BRIAN S & ALYSA A THOMAS | | | | 125880 | |
| 3 | 07/25/2005 | QCD | Quit Claim Deed | THOMAS, BRIAN S/ELLEN LOU | THOMAS, BRIAN S/ELLEN L TRUSTE | | | $0.00 | 104303 | 0 |
| 4 | 10/21/1996 | SWD | Statutory Warranty Deed | BUCHMANN, RAY R/ET AL | THOMAS, BRIAN S/ELLEN L | 0 | 0 | $169,500.00 | 80777 | 0 |
Payout Agreement
| No payout information available.. |