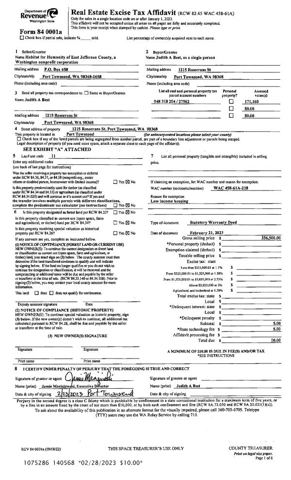
Property
Account |
| Property ID: | 19260 | Abbreviated Legal Description: | S2 T28 R1W GOV LOT 3(SW1/4) |
| Parcel # / Geo ID: | 801022002 | Agent Code: | |
| Type: | Real | | |
| Tax Area: | 0211 - 1-49F1E1H2L1 | Land Use Code | 11 |
| Open Space: | N | DFL | N |
| Historic Property: | N | Remodel Property: | N |
| Multi-Family Redevelopment: | N | | |
| Township: | 28N | Section: | 2 |
| Range: | 1W |
Location |
| Address: | 1468 EGG & I RD CHIMACUM, WA 98325 | Mapsco: | 191/072 |
| Neighborhood: | S2 T28N R1W; STEINKE SHT PLAT #2 | Map ID: | |
| Neighborhood CD: | 4310 |
Owner |
| Name: | TEDDY & MARIA ANDERSON LIVING TRUST | Owner ID: | 90542 |
| Mailing Address: | TEDDY ANDERSON TRUSTEE MARIA ANDERSON TRUSTEE PO BOX 65131 PORT LUDLOW, WA 98365-0131 | % Ownership: | 100.0000000000% |
| | | Exemptions: | |
Pay Tax Due
There is currently No Amount Due on this property.
Taxes and Assessment Details
Property Tax Information as of
10/24/2025
Click on "Statement Details" to expand or collapse a tax statement.
* Please enter a valid date ** Please enter a valid date *
Statement Details |
| | TOTAL: | $0.00 | $0.00 | $0.00 | $0.00 | $0.00 | $0.00 |
|
| | $0.00 | $0.00 | $0.00 | $0.00 | $0.00 | $0.00 |
Values
| (+) Improvement Homesite Value: | + | $0 | |
| (+) Improvement Non-Homesite Value: | + | $79,042 | |
| (+) Land Homesite Value: | + | $0 | |
| (+) Land Non-Homesite Value: | + | $172,527 | |
| (+) Curr Use (HS): | + | $0 | $0 |
| (+) Curr Use (NHS): | + | $0 | $0 |
| | | -------------------------- | |
| (=) Market Value: | = | $251,569 | |
| (–) Productivity Loss: | – | $0 | |
| | | -------------------------- | |
| (=) Subtotal: | = | $251,569 | |
| (+) Senior Appraised Value: | + | $0 | |
| (+) Non-Senior Appraised Value: | + | $251,569 | |
| | | -------------------------- | |
| (=) Total Appraised Value: | = | $251,569 | |
| (–) Senior Exemption Loss: | – | $0 | |
| (–) Exemption Loss: | – | $0 | |
| | | -------------------------- | |
| (=) Taxable Value: | = | $251,569 | |
Taxing Jurisdiction
| Owner: | TEDDY & MARIA ANDERSON LIVING TRUST | | |
| % Ownership: | 100.0000000000% | | |
| Total Value: | N/A | | |
| Tax Area: | 0211 - 1-49F1E1H2L1 |
| CE | COUNTY CURRENT EXPENSE | N/A | N/A | N/A | N/A | | |
| CNTYDD | DEVELOPMENTAL DISABILITIES | N/A | N/A | N/A | N/A | | |
| CNTYVET | VETERANS RELIEF | N/A | N/A | N/A | N/A | | |
| MENTAL | MENTAL HEALTH | N/A | N/A | N/A | N/A | | |
| ROADS | COUNTY ROADS | N/A | N/A | N/A | N/A | | |
| ROADSCU | COUNTY ROADS TO CUR EXP | N/A | N/A | N/A | N/A | | |
| HOSP2CASH | HOSP DIST #2 GENERAL | N/A | N/A | N/A | N/A | | |
| SCH49CP | SCHOOL DIST #49 CAP PROJ | N/A | N/A | N/A | N/A | | |
| SCH49MO | SCHOOL DIST #49 EP & O | N/A | N/A | N/A | N/A | | |
| CONSERVE | CONSERVATION FUTURES | N/A | N/A | N/A | N/A | | |
| EMS1 | FIRE DIST #1 EMS | N/A | N/A | N/A | N/A | | |
| FD1 | FIRE DIST #1 GENERAL | N/A | N/A | N/A | N/A | | |
| LIB1 | LIBRARY DIST #1 GENERAL | N/A | N/A | N/A | N/A | | |
| PORTPT | PORT OF PT GENERAL | N/A | N/A | N/A | N/A | | |
| PORTPTIDD | PORT OF PT IDD 2019 | N/A | N/A | N/A | N/A | | |
| PUD1 | PUD #1 GENERAL | N/A | N/A | N/A | N/A | | |
| STATE | STATE SCHOOL PART 1 | N/A | N/A | N/A | N/A | | |
| STATE2 | STATE SCHOOL PART 2 | N/A | N/A | N/A | N/A | | |
| | Total Tax Rate: | N/A | | | | | |
| | | | | Taxes w/Current Exemptions: | N/A | | |
| | | | | Taxes w/o Exemptions: | N/A | | |
Improvement / Building
| Improvement #1: | Manufactured Home | State Code: | 11 | 1440.0 sqft | Value: | $61,201 |
| Bathrooms (#): | 2 (FULL) | Bedrooms (#): | 3 | | Exterior Wall: | SI/ST | Fireplace: | WD ST-AVG | | Floor Construction: | FRAME | Foundation: | CONPR | | Heating/Cooling: | F/A | Roof Cover: | COMP |
|
| | Type | Description | Class CD | Sub Class CD | Year Built | Area |
| | MA | Main Area | 3 | MDBL | 1979 | 1440.0 |
| | MPATIO | MH Patio | 3 | * | 1979 | 1000.0 |
| | ADDN | Addition (Table Not Dep) | 3 | * | 1979 | 240.0 |
| | MRPO | MH Roof Porch | 3 | * | 1979 | 400.0 |
| Improvement #2: | Residential Bldg | State Code: | 11 | 392.0 sqft | Value: | $17,841 |
| Exterior Wall: | PL/T1 | Floor Construction: | FRAME | | Foundation: | CONBL | Heating/Cooling: | ELBB | | Interior Finish: | FIN | Roof Cover: | COMP |
|
| | Type | Description | Class CD | Sub Class CD | Year Built | Area |
| | MA | Main Area | 2 | C1S | 0 | 392.0 |
| | GARAG | Garage (Table Not Dep) | 1 | * | 1977 | 1000.0 |
Sketch
Property Image
Land
| 1 | 4310-1375S | Residential Sites 1+/- Ac SomeTerritorial Views | 1.0000 | 43560.00 | 0.00 | 0.00 | 1.00 | $93,500 | $0 |
| 2 | 1675A | Terr/Mtn/No View 6-15 Acres | 9.2700 | 403801.20 | 0.00 | 0.00 | 0.00 | $79,027 | $0 |
Roll Value History
| 2025 | N/A | N/A | N/A | N/A | N/A |
| 2024 | $75,605 | $164,685 | $0 | $240,290 | $240,290 |
| 2023 | $72,169 | $149,525 | $0 | $221,694 | $221,694 |
| 2022 | $68,816 | $139,890 | $0 | $208,706 | $208,706 |
| 2021 | $63,718 | $139,581 | $0 | $203,299 | $203,299 |
Deed and Sales History
| 1 | 01/23/2013 | QCD | Quit Claim Deed | | | | | | 119900 | |
| 2 | 01/23/2013 | QCD | Quit Claim Deed | MARIA A ANDERSON | TEDDY & MARIA ANDERSON LIVING TRUST | | | | 118731 | |
| 3 | 02/24/2011 | QCD | Quit Claim Deed | ANDERSON, TEDDY L | ANDERSON, MARIA A | 0 | 0 | $0.00 | 115605 | 0 |
Payout Agreement
| No payout information available.. |