Property
Account |
| Property ID: | 19319 | Abbreviated Legal Description: | JOHNSTON SHORT PLAT LOT 4(TAX 24) |
| Parcel # / Geo ID: | 801034018 | Agent Code: | |
| Type: | Real | | |
| Tax Area: | 0211 - 1-49F1E1H2L1 | Land Use Code | 19 |
| Open Space: | N | DFL | N |
| Historic Property: | N | Remodel Property: | N |
| Multi-Family Redevelopment: | N | | |
| Township: | 28N | Section: | 3 |
| Range: | 1W |
Location |
| Address: | 4619 CENTER RD CHIMACUM, WA 98325 | Mapsco: | 234/046 |
| Neighborhood: | S3 & S4 T28N R1W; COUNTRY RIDGE; MT TOWNSEND VISTA; SHT PTS | Map ID: | |
| Neighborhood CD: | 4320 |
Owner |
| Name: | BENJAMIN C KAHN | Owner ID: | 92123 |
| Mailing Address: | 4619 CENTER RD CHIMACUM, WA 98325 | % Ownership: | 100.0000000000% |
| | | Exemptions: | |
Pay Tax Due
There is currently No Amount Due on this property.
Taxes and Assessment Details
Property Tax Information as of
10/24/2025
Click on "Statement Details" to expand or collapse a tax statement.
* Please enter a valid date ** Please enter a valid date *
Statement Details |
| | TOTAL: | $0.00 | $0.00 | $0.00 | $0.00 | $0.00 | $0.00 |
|
| | $0.00 | $0.00 | $0.00 | $0.00 | $0.00 | $0.00 |
Values
| (+) Improvement Homesite Value: | + | $0 | |
| (+) Improvement Non-Homesite Value: | + | $90,553 | |
| (+) Land Homesite Value: | + | $0 | |
| (+) Land Non-Homesite Value: | + | $138,600 | |
| (+) Curr Use (HS): | + | $0 | $0 |
| (+) Curr Use (NHS): | + | $0 | $0 |
| | | -------------------------- | |
| (=) Market Value: | = | $229,153 | |
| (–) Productivity Loss: | – | $0 | |
| | | -------------------------- | |
| (=) Subtotal: | = | $229,153 | |
| (+) Senior Appraised Value: | + | $0 | |
| (+) Non-Senior Appraised Value: | + | $229,153 | |
| | | -------------------------- | |
| (=) Total Appraised Value: | = | $229,153 | |
| (–) Senior Exemption Loss: | – | $0 | |
| (–) Exemption Loss: | – | $0 | |
| | | -------------------------- | |
| (=) Taxable Value: | = | $229,153 | |
Taxing Jurisdiction
| Owner: | BENJAMIN C KAHN | | |
| % Ownership: | 100.0000000000% | | |
| Total Value: | N/A | | |
| Tax Area: | 0211 - 1-49F1E1H2L1 |
| CE | COUNTY CURRENT EXPENSE | N/A | N/A | N/A | N/A | | |
| CNTYDD | DEVELOPMENTAL DISABILITIES | N/A | N/A | N/A | N/A | | |
| CNTYVET | VETERANS RELIEF | N/A | N/A | N/A | N/A | | |
| MENTAL | MENTAL HEALTH | N/A | N/A | N/A | N/A | | |
| ROADS | COUNTY ROADS | N/A | N/A | N/A | N/A | | |
| ROADSCU | COUNTY ROADS TO CUR EXP | N/A | N/A | N/A | N/A | | |
| HOSP2CASH | HOSP DIST #2 GENERAL | N/A | N/A | N/A | N/A | | |
| SCH49CP | SCHOOL DIST #49 CAP PROJ | N/A | N/A | N/A | N/A | | |
| SCH49MO | SCHOOL DIST #49 EP & O | N/A | N/A | N/A | N/A | | |
| CONSERVE | CONSERVATION FUTURES | N/A | N/A | N/A | N/A | | |
| EMS1 | FIRE DIST #1 EMS | N/A | N/A | N/A | N/A | | |
| FD1 | FIRE DIST #1 GENERAL | N/A | N/A | N/A | N/A | | |
| LIB1 | LIBRARY DIST #1 GENERAL | N/A | N/A | N/A | N/A | | |
| PORTPT | PORT OF PT GENERAL | N/A | N/A | N/A | N/A | | |
| PORTPTIDD | PORT OF PT IDD 2019 | N/A | N/A | N/A | N/A | | |
| PUD1 | PUD #1 GENERAL | N/A | N/A | N/A | N/A | | |
| STATE | STATE SCHOOL PART 1 | N/A | N/A | N/A | N/A | | |
| STATE2 | STATE SCHOOL PART 2 | N/A | N/A | N/A | N/A | | |
| | Total Tax Rate: | N/A | | | | | |
| | | | | Taxes w/Current Exemptions: | N/A | | |
| | | | | Taxes w/o Exemptions: | N/A | | |
Improvement / Building
| Improvement #1: | Residential Bldg | State Code: | 19 | 640.0 sqft | Value: | $32,524 |
| Exterior Wall: | PL/T1 | Floor Construction: | FRAME | | Foundation: | PO&BL | Heating/Cooling: | WD/NO | | Roof Cover: | METAL |   |   |
|
| | Type | Description | Class CD | Sub Class CD | Year Built | Area |
| | MA | Main Area | 2- | C1S | 1981 | 640.0 |
| | OTHER | Other | 3 | * | 1981 | 0.0 |
| | CARPT | Carport (Table Not Dep) | 2 | * | 2016 | 288.0 |
| | SHED | Shed (Table Not Dep) | 3 | | 2020 | 96.0 |
| Improvement #2: | Residential Bldg | State Code: | 19 | 320.0 sqft | Value: | $58,029 |
| Bathrooms (#): | 1 (FULL) | Exterior Wall: | SI/ST | | Foundation: | CONPR | Heating/Cooling: | ELBB | | Interior Finish: | FIN | Roof Cover: | COMP |
|
Sketch
Property Image
Land
| 1 | 4320-1375S | Residential Sites 1+/- Ac SomeTerritorial Views | 1.0000 | 43560.00 | 0.00 | 0.00 | 1.00 | $104,500 | $0 |
| 2 | 1577A | Terr/Mtn/No View <6 Acres | 4.0000 | 174240.00 | 0.00 | 0.00 | 0.00 | $34,100 | $0 |
Roll Value History
| 2025 | N/A | N/A | N/A | N/A | N/A |
| 2024 | $86,616 | $132,300 | $0 | $218,916 | $218,916 |
| 2023 | $82,679 | $120,000 | $0 | $202,679 | $202,679 |
| 2022 | $28,282 | $108,000 | $0 | $136,282 | $136,282 |
| 2021 | $27,727 | $102,263 | $0 | $129,990 | $129,990 |
Deed and Sales History
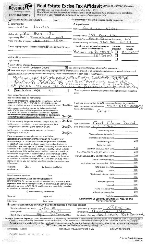
| 1 | 05/19/2014 | QCD | Quit Claim Deed | | | | | | 121439 | |
| 2 | 07/13/2006 | SWD | Statutory Warranty Deed | STONE, KENNETH | KAHN, PATRICIA & BEN | | | $0.00 | 107202 | 0 |
| 3 | 07/11/2006 | SWD | Statutory Warranty Deed | STONE, KENNETH H | KAHN, PATRICIA A/BEN | | | $120,000.00 | 107114 | 0 |
| 4 | 11/10/2000 | SWD | Statutory Warranty Deed | YETTER, DALLAS/TAMARA | STONE, KENNETH H | 0 | 0 | $99,000.00 | 91009 | 0 |
| 5 | 07/25/1994 | SWD | Statutory Warranty Deed | PRICE, HARVEY L/JR & ZELM | YETTER, DALLAS/TAMARA S | 0 | 0 | $0.00 | 76494 | 0 |
| 6 | 07/25/1994 | SWD | Statutory Warranty Deed | PRICE, HARVEY L/JR & ZELM | YETTER, DALLAS/TAMARA | 0 | 0 | $0.00 | 74752 | 0 |
Payout Agreement
| No payout information available.. |